賃貸や不動産はアットホーム-賃貸マンション・賃貸物件・不動産なら アットホーム

宮城県仙台市青葉区一番町2丁目(青葉通一番町駅)の貸事務所:物件詳細

  • 物件詳細
  • 情報の見方
  • 印刷用画面
交通
所在地
駅徒歩 賃料
管理費等
敷金/保証金
礼金
使用部分面積
坪数/坪単価
物件種目
築年月

仙台市東西線/青葉通一番町 新着

宮城県仙台市青葉区一番町2丁目

5分

49.973万円

6ヶ月 / なし

なし

150.18m²

45.42坪/1.1001万円

貸事務所

1993年4月(築32年8ヶ月)

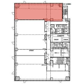
間取図

間取図

間取図

間取図

その他の画像
  • 室内
  • 玄関
  • 室内
  • 共有部分
  • 共有部分
    • お問い合わせ
    交通

    仙台市東西線 青葉通一番町駅 徒歩5分

    その他の交通

    JR仙石線 あおば通駅 徒歩13分

    JR仙石線 仙台駅 徒歩15分

    所在地 宮城県仙台市青葉区一番町2丁目
    物件種目 貸事務所
    賃料 49.973万円 管理費等
    敷金 / 保証金 6ヶ月 / なし 礼金 なし
    敷引 坪単価 1.1001万円
    保証金償却 権利金
    造作譲渡 その他一時金
    維持費等 保険等
    使用部分面積 150.18m² 坪数 45.42坪
    築年月 1993年4月(築32年8ヶ月) 階建 / 階 11階建 / 8階
    駐車場 バイク置き場
    駐輪場 土地面積
    接道状況 用途地域 商業地域
    間取り 建物構造 SRC
    建物名・部屋番号 仙台一番町ビル
    リフォーム履歴
    リノベーション履歴
    特記事項 24時間利用可、土日・祝日利用可、飲食店不可、24時間セキュリティー
    備考
    賃貸保証等:加入要(初回保証料(月額100%)、更新保証料(プランによる))
    管理形態/管理員の勤務形態:-/-
    主要採光面:南向き
    エネルギー消費性能
    断熱性能
    目安光熱費
    バス・トイレ 共用部分に男女別トイレあり
    キッチン
    設備・サービス 個別空調、防犯カメラ、光ファイバー
    その他 荷積みスペース、敷地内AED有、エレベーター2基以上、車寄せスペース、エレベーター
    契約期間 3年 条件等
    引渡可能時期 即時 現況
    更新料 物件番号 6988211819
    情報公開日 2025年10月31日 次回更新予定日 2025年11月14日
    ケータイ用バーコード

    QRコード

    スマートフォンでこの物件を見る
    スマートフォンからもこの物件をご覧になれます。
    ※「-」と表示されている項目については、情報提供会社にご確認ください。

    この物件の周辺情報

    周辺施設 セブンイレブン仙台晩翠草堂前店
    距離 67m
    周辺施設 藤崎本館
    距離 525m
    周辺施設 ファミリーマート一番町南町通店
    距離 341m
    周辺施設 なか卯仙台青葉通一番町店
    距離 308m
    周辺施設 ニッポンレンタカー仙台青葉通営業所
    距離 212m
    周辺施設 仙台中郵便局
    距離 360m

    クイックお問い合わせ

    ここから簡単にお問い合わせをすることができます。
    (SSLでの暗号化での送信を希望されるお客さまは こちら よりお問い合わせください)

    お問い合わせ内容(必須)
    物件のお問い合わせ理由(必須)
    お名前・ご担当者様名(必須) 姓  名 
    メールアドレス(必須)
    ※携帯電話のメールアドレスをご入力される方はこちらをご確認ください
    電話番号(必須)
    - -
    備考欄 希望条件、物件案内希望日、質問などがございましたらご記入ください。
    お問い合わせを行う前に「個人情報の取り扱いについて」を必ずお読みください。
    「個人情報の取り扱いについて」に同意いただいた場合は「上記にご同意の上 確認画面へ進む」のボタンをクリックしてください。

    個人情報の取り扱いについて

    皆さまが送付された個人情報はアットホーム(株)のサーバを経由し、お問い合わせ先の不動産会社にメールまたはFAXにて転送されるためアットホーム(株)にも保管されます。アットホーム(株)で保管された個人情報の取り扱いについては、【こちら】をご覧ください。
    また、本画面でご記入いただいた個人情報は、お問い合わせ先の不動産会社でも保管します。 お問い合わせ先の不動産会社が保管する個人情報の取り扱いについては、不動産会社に直接お問い合わせください。

    情報提供会社

    情報提供会社

    (株)アルディホーム

    宮城県知事免許(1)第7181号

    交通:
    仙台市南北線/泉中央駅 徒歩5分
    宮城県仙台市泉区泉中央1丁目34-6 アルファトムビル1F
    TEL:
    022-341-1256
    所属団体:
    (公社)宮城県宅地建物取引業協会会員
    東北地区不動産公正取引協議会加盟

    取引態様:仲介

    • 会社情報
    • 20007351
    スマートフォンで
    この不動産会社を見る
    QRコード
    • お問い合わせ
    • 提携サイト等より掲載されている物件情報につきましては、不動産会社詳細情報にリンクされていないものがあります。
    • 物件に関するお問合せは、物件詳細ページの「情報提供会社」に表示されている不動産会社へ直接お願いいたします。
    • 間取図は、現況を優先させていただきます。
    • 映像は物件の一部を撮影したものです。物件の契約にあたっての最終判断はご自身の判断に基づいて行ってください。
    • 仲介手数料について仲介手数料

    アットホームは物件情報の適正化に努めております。 内容に誤りがある場合にはこちらへご連絡ください。


    物件画像: