賃貸や不動産はアットホーム-賃貸マンション・賃貸物件・不動産なら アットホーム

愛知県名古屋市中区丸の内2丁目(丸の内駅)の貸事務所:物件詳細

  • 物件詳細
  • 情報の見方
  • 印刷用画面
交通
所在地
駅徒歩 賃料
管理費等
敷金/保証金
礼金
使用部分面積
坪数/坪単価
物件種目
築年月

名古屋市鶴舞線/丸の内

愛知県名古屋市中区丸の内2丁目

4分

11.55万円

なし / 4ヶ月

なし

51.00m²

15.42坪/0.7487万円

貸事務所

1978年10月(築47年3ヶ月)

おすすめコメント  スタッフ: 中村

丸の内駅徒歩4分、初期費用を抑えられるマンションタイプの事務所物件です。室内フルリニューアル済み、新規開業の方にお勧めです。

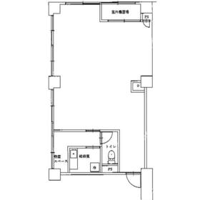
間取図

間取図

外観

外観

<
その他の画像
  • 外観
  • 案内図
  • 玄関
  • 共有部分
  • 設備
  • 共有部分
  • トイレ
  • トイレ
  • トイレ
  • その他
  • その他
  • その他
>
    • お問い合わせ
    交通

    名古屋市鶴舞線 丸の内駅 徒歩4分

    その他の交通

    名古屋市桜通線 丸の内駅 徒歩5分

    名古屋市東山線 伏見駅 徒歩11分

    所在地 愛知県名古屋市中区丸の内2丁目
    物件種目 貸事務所
    賃料 11.55万円 管理費等
    敷金 / 保証金 なし / 4ヶ月 礼金 なし
    敷引 坪単価 0.7487万円
    保証金償却 解約時2ヶ月 権利金
    造作譲渡 その他一時金
    維持費等 保険等
    使用部分面積 51.00m² 坪数 15.42坪
    築年月 1978年10月(築47年3ヶ月) 階建 / 階 地上8階地下1階建 / 5階
    駐車場 バイク置き場
    駐輪場 土地面積
    接道状況 用途地域
    間取り 建物構造 RC
    アピールポイント お問合せやご質問は、052-959-2888(株式会社オフィッコス)
    原則30分以内に確認をして資料をお送りさせていただきます。お気軽にお問合せくださいませ。
    建物名・部屋番号 リブラ丸の内6 5F 15.43坪
    リフォーム履歴
    リノベーション履歴
    特記事項 24時間利用可、土曜日利用可、土日・祝日利用可、24時間セキュリティー、IT重説対応物件
    備考
    管理形態/管理員の勤務形態:-/-
    IT重説対応物件
    エネルギー消費性能
    断熱性能
    目安光熱費
    バス・トイレ 共用部分にトイレあり
    キッチン
    設備・サービス 個別空調、エアコン、暖房、冷房、インターネット対応、光ファイバー
    その他 エレベーター
    契約期間 2033年1月14日まで 条件等 定期借家定期借家
    引渡可能時期 指定有り2026年3月1日 現況 使用中
    更新料 物件番号 6988172683
    情報公開日 2025年10月27日 次回更新予定日 2025年12月22日
    ケータイ用バーコード

    QRコード

    スマートフォンでこの物件を見る
    スマートフォンからもこの物件をご覧になれます。
    ※「-」と表示されている項目については、情報提供会社にご確認ください。

    この物件の周辺情報

    周辺施設 オリマチ
    距離 433m
    周辺施設 A-プライス名古屋店
    距離 690m
    周辺施設 名古屋インターシティ
    距離 870m
    周辺施設 ナゴヤキッチュエビオ
    距離 810m
    周辺施設 靴下屋ヨリマチFUSHIMI店
    距離 1011m
    周辺施設 ローソン丸の内二丁目店
    距離 106m
    周辺施設 セブンイレブン名古屋丸の内2丁目店
    距離 205m
    周辺施設 ローソン丸の内伏見通店
    距離 319m

    クイックお問い合わせ

    ここから簡単にお問い合わせをすることができます。
    (SSLでの暗号化での送信を希望されるお客さまは こちら よりお問い合わせください)

    お問い合わせ内容(必須)
    物件のお問い合わせ理由(必須)
    お名前・ご担当者様名(必須) 姓  名 
    メールアドレス(必須)
    ※携帯電話のメールアドレスをご入力される方はこちらをご確認ください
    電話番号(必須)
    - -
    備考欄 希望条件、物件案内希望日、質問などがございましたらご記入ください。
    お問い合わせを行う前に「個人情報の取り扱いについて」を必ずお読みください。
    「個人情報の取り扱いについて」に同意いただいた場合は「上記にご同意の上 確認画面へ進む」のボタンをクリックしてください。

    個人情報の取り扱いについて

    皆さまが送付された個人情報はアットホーム(株)のサーバを経由し、お問い合わせ先の不動産会社にメールまたはFAXにて転送されるためアットホーム(株)にも保管されます。アットホーム(株)で保管された個人情報の取り扱いについては、【こちら】をご覧ください。
    また、本画面でご記入いただいた個人情報は、お問い合わせ先の不動産会社でも保管します。 お問い合わせ先の不動産会社が保管する個人情報の取り扱いについては、不動産会社に直接お問い合わせください。

    情報提供会社

    情報提供会社

    (株)オフィッコス

    愛知県知事免許(3)第22161号

    交通:
    名古屋市名城線/久屋大通駅 徒歩2分
    愛知県名古屋市中区丸の内3丁目18-1 三晃丸の内ビル7F
    TEL:
    052-959-2888
    FAX:
    052-959-2890
    所属団体:
    (公社)全日本不動産協会会員
    東海不動産公正取引協議会加盟

    取引態様:仲介

    • 会社情報
    • 40403414
    スマートフォンで
    この不動産会社を見る
    QRコード
    • お問い合わせ
    • 提携サイト等より掲載されている物件情報につきましては、不動産会社詳細情報にリンクされていないものがあります。
    • 物件に関するお問合せは、物件詳細ページの「情報提供会社」に表示されている不動産会社へ直接お願いいたします。
    • 間取図は、現況を優先させていただきます。
    • 映像は物件の一部を撮影したものです。物件の契約にあたっての最終判断はご自身の判断に基づいて行ってください。
    • 仲介手数料について仲介手数料

    アットホームは物件情報の適正化に努めております。 内容に誤りがある場合にはこちらへご連絡ください。


    物件画像: