賃貸や不動産はアットホーム-賃貸マンション・賃貸物件・不動産なら アットホーム

福岡県久留米市東合川1丁目(宮の陣駅)の貸事務所:物件詳細

  • 物件詳細
  • 情報の見方
  • 印刷用画面
交通
所在地
駅徒歩 賃料
管理費等
敷金/保証金
礼金
使用部分面積
坪数/坪単価
物件種目
築年月

西鉄天神大牟田線/宮の陣

福岡県久留米市東合川1丁目

35分

4.62万円

11,000円

なし / なし

2ヶ月

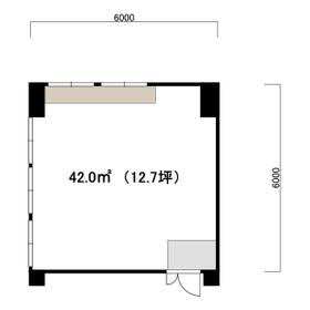
42.00m²

12.70坪/0.3637万円

貸事務所

1978年3月(築48年2ヶ月)

おすすめコメント

【問い合わせ先:久留米御井店 TEL 0942-44-7007】 久留米インター近く 交通アクセス良好

間取図

間取図

外観

外観

その他の画像
  • 外観
  • 室内
    • お問い合わせ
    交通

    西鉄天神大牟田線 宮の陣駅 徒歩35分

    その他の交通

    JR久大本線 久留米大学前駅 徒歩24分

    所在地 福岡県久留米市東合川1丁目
    物件種目 貸事務所
    賃料 4.62万円 管理費等 11,000円
    敷金 / 保証金 なし / なし 礼金 2ヶ月
    敷引 坪単価 0.3637万円
    保証金償却 権利金
    造作譲渡 その他一時金
    維持費等 保険等
    使用部分面積 42.00m² 坪数 12.70坪
    築年月 1978年3月(築48年2ヶ月) 階建 / 階 3階建 / 3階
    駐車場 有 5,500円/月 バイク置き場
    駐輪場 土地面積
    接道状況 用途地域
    間取り 建物構造 RC
    建物名・部屋番号 久留米貨物センター 3-B
    リフォーム履歴
    リノベーション履歴
    特記事項 最上階
    備考
    賃貸保証等:加入要(100%)
    管理形態/管理員の勤務形態:-/-
    ◆共用トイレあります
    ◆室内家具は撤去します
    ◆WiFi無料
    ◆共益費に水道料・電気料含みます
    エネルギー消費性能
    断熱性能
    目安光熱費
    バス・トイレ
    キッチン
    設備・サービス インターネット使用料無料
    その他
    契約期間 2年 条件等
    引渡可能時期 即時 現況
    更新料 物件番号 6988147011
    情報公開日 2025年10月25日 次回更新予定日 2026年4月24日
    ケータイ用バーコード

    QRコード

    スマートフォンでこの物件を見る
    スマートフォンからもこの物件をご覧になれます。
    ※「-」と表示されている項目については、情報提供会社にご確認ください。

    この物件の周辺情報

    周辺施設 ジョイント久留米店
    距離 787m
    周辺施設 明治屋ジャンボ市久留米インター店
    距離 746m
    周辺施設 A-プライス久留米店
    距離 615m
    周辺施設 ジーユー久留米合川店
    距離 733m
    周辺施設 ゆめタウン久留米
    距離 1501m
    周辺施設 ファミリーマート久留米東合川2丁目店
    距離 810m
    周辺施設 コメダ珈琲店久留米インター店
    距離 859m
    周辺施設 餃子の王将久留米インター店
    距離 510m

    クイックお問い合わせ

    ここから簡単にお問い合わせをすることができます。
    (SSLでの暗号化での送信を希望されるお客さまは こちら よりお問い合わせください)

    お問い合わせ内容(必須)
    物件のお問い合わせ理由(必須)
    お名前・ご担当者様名(必須) 姓  名 
    メールアドレス(必須)
    ※携帯電話のメールアドレスをご入力される方はこちらをご確認ください
    電話番号(必須)
    - -
    備考欄 希望条件、物件案内希望日、質問などがございましたらご記入ください。
    お問い合わせを行う前に「個人情報の取り扱いについて」を必ずお読みください。
    「個人情報の取り扱いについて」に同意いただいた場合は「上記にご同意の上 確認画面へ進む」のボタンをクリックしてください。

    個人情報の取り扱いについて

    皆さまが送付された個人情報はアットホーム(株)のサーバを経由し、お問い合わせ先の不動産会社にメールまたはFAXにて転送されるためアットホーム(株)にも保管されます。アットホーム(株)で保管された個人情報の取り扱いについては、【こちら】をご覧ください。
    また、本画面でご記入いただいた個人情報は、お問い合わせ先の不動産会社でも保管します。 お問い合わせ先の不動産会社が保管する個人情報の取り扱いについては、不動産会社に直接お問い合わせください。

    情報提供会社

    情報提供会社

    (株)コモハラ不動産 筑後店

    福岡県知事免許(5)第15372号

    交通:
    JR鹿児島本線/羽犬塚駅 徒歩15分
    福岡県筑後市大字徳久84-1 
    TEL:
    0942-51-7173
    FAX:
    0942-51-7176
    所属団体:
    (公社)福岡県宅地建物取引業協会会員
    (一社)九州不動産公正取引協議会加盟

    取引態様:仲介

    • 会社情報
    • 80004713
    スマートフォンで
    この不動産会社を見る
    QRコード
    • お問い合わせ
    • 提携サイト等より掲載されている物件情報につきましては、不動産会社詳細情報にリンクされていないものがあります。
    • 物件に関するお問合せは、物件詳細ページの「情報提供会社」に表示されている不動産会社へ直接お願いいたします。
    • 間取図は、現況を優先させていただきます。
    • 映像は物件の一部を撮影したものです。物件の契約にあたっての最終判断はご自身の判断に基づいて行ってください。
    • 仲介手数料について仲介手数料

    アットホームは物件情報の適正化に努めております。 内容に誤りがある場合にはこちらへご連絡ください。


    物件画像: