賃貸や不動産はアットホーム-賃貸マンション・賃貸物件・不動産なら アットホーム

東京都中央区日本橋人形町1丁目(人形町駅)の貸事務所:物件詳細

  • 物件詳細
  • 情報の見方
  • 印刷用画面
交通
所在地
駅徒歩 賃料
管理費等
敷金/保証金
礼金
使用部分面積
坪数/坪単価
物件種目
築年月

都営浅草線/人形町

東京都中央区日本橋人形町1丁目

1分

要確認

要確認

168.40m²

50.94坪/要確認

貸事務所

2023年6月(築2年6ヶ月)

おすすめコメント  スタッフ: 佐山

人形町駅交差点の好立地!新築物件です!!2024年3月末までにお申込みフーレント最大6ヶ月!業種・条件はお問い合わせください!

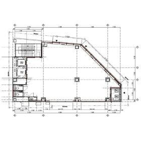
間取図

間取図

<
その他の画像
>
    • お問い合わせ
    交通

    都営浅草線 人形町駅 徒歩1分

    その他の交通

    東京メトロ日比谷線 人形町駅 徒歩1分

    東京メトロ半蔵門線 水天宮前駅 徒歩5分

    所在地 東京都中央区日本橋人形町1丁目
    物件種目 貸事務所
    賃料 要確認 管理費等 要確認
    敷金 / 保証金 要確認 礼金 要確認
    敷引 要確認 坪単価 要確認
    保証金償却 要確認 権利金
    造作譲渡 その他一時金
    維持費等 保険等
    使用部分面積 168.40m² 坪数 50.94坪
    築年月 2023年6月(築2年6ヶ月) 階建 / 階 10階建 / 9階
    駐車場 バイク置き場
    駐輪場 土地面積
    接道状況 用途地域
    間取り 建物構造 鉄骨造
    アピールポイント 人形町駅の交差点に立つランドマークビルです。
    クリニック、学習塾、美容サロンなど、店舗利用もご相談ください。
    天井高を生かした自由度の高いレイアウトが可能です。
    室内は事務所仕様ですが、水回りの造作はご相談ください。
    建物名・部屋番号 エムズクロス人形町 9階
    リフォーム履歴
    リノベーション履歴
    特記事項 24時間利用可、土曜日利用可、土日・祝日利用可、OAフロア、飲食店不可、1フロア1テナント、24時間セキュリティー、耐震構造(新耐震基準)、天井高2.5M以上
    備考
    管理形態/管理員の勤務形態:-/-
    【税率10%で算出しております。税率変動時はそれに準じます。】
    ※床仕様:タイルカーペット
    ※ガスなし
    ※清掃は指定業者と別途契約
    ※店舗利用可
    ※定期借家契約(期間はご相談になります)
    ※フーレント最大6ヶ月!詳細お問い合わせください
    エネルギー消費性能
    断熱性能
    目安光熱費
    バス・トイレ 専有部分に男女別トイレあり
    キッチン
    設備・サービス 個別空調、エアコン、暖房、冷房
    その他 エレベーター2基以上、エレベーター
    契約期間 3年 条件等 定期借家定期借家
    引渡可能時期 即時 現況
    仲介手数料 1ヶ月    
    更新料 要確認 物件番号 6988096527
    情報公開日 2025年10月22日 次回更新予定日 2025年11月5日
    ケータイ用バーコード

    QRコード

    スマートフォンでこの物件を見る
    スマートフォンからもこの物件をご覧になれます。
    ※「-」と表示されている項目については、情報提供会社にご確認ください。

    この物件の周辺情報

    周辺施設 マルエツプチ人形町駅前店
    距離 89m
    周辺施設 ローソン人形町駅前店
    距離 55m
    周辺施設 カフェ・ド・クリエ日本橋人形町店
    距離 55m
    周辺施設 中央区立日本橋小学校
    距離 207m
    周辺施設 アスク人形町駅前保育園
    距離 109m
    周辺施設 日本橋人形町郵便局
    距離 121m

    クイックお問い合わせ

    ここから簡単にお問い合わせをすることができます。
    (SSLでの暗号化での送信を希望されるお客さまは こちら よりお問い合わせください)

    お問い合わせ内容(必須)
    物件のお問い合わせ理由(必須)
    お名前・ご担当者様名(必須) 姓  名 
    メールアドレス(必須)
    ※携帯電話のメールアドレスをご入力される方はこちらをご確認ください
    電話番号(必須)
    - -
    備考欄 希望条件、物件案内希望日、質問などがございましたらご記入ください。
    お問い合わせを行う前に「個人情報の取り扱いについて」を必ずお読みください。
    「個人情報の取り扱いについて」に同意いただいた場合は「上記にご同意の上 確認画面へ進む」のボタンをクリックしてください。

    個人情報の取り扱いについて

    皆さまが送付された個人情報はアットホーム(株)のサーバを経由し、お問い合わせ先の不動産会社にメールまたはFAXにて転送されるためアットホーム(株)にも保管されます。アットホーム(株)で保管された個人情報の取り扱いについては、【こちら】をご覧ください。
    また、本画面でご記入いただいた個人情報は、お問い合わせ先の不動産会社でも保管します。 お問い合わせ先の不動産会社が保管する個人情報の取り扱いについては、不動産会社に直接お問い合わせください。

    情報提供会社

    情報提供会社

    (株)アースウィンド 日本橋店

    東京都知事免許(5)第79601号

    交通:
    東京メトロ日比谷線/小伝馬町駅 徒歩2分
    東京都中央区日本橋大伝馬町6-7 住長第二ビル1階
    TEL:
    03-5623-1666
    FAX:
    03-5623-1755
    所属団体:
    (公社)全日本不動産協会会員
    (公社)首都圏不動産公正取引協議会加盟

    取引態様:仲介

    • 会社情報
    • 00014230
    スマートフォンで
    この不動産会社を見る
    QRコード
    • お問い合わせ
    • 提携サイト等より掲載されている物件情報につきましては、不動産会社詳細情報にリンクされていないものがあります。
    • 物件に関するお問合せは、物件詳細ページの「情報提供会社」に表示されている不動産会社へ直接お願いいたします。
    • 間取図は、現況を優先させていただきます。
    • 映像は物件の一部を撮影したものです。物件の契約にあたっての最終判断はご自身の判断に基づいて行ってください。
    • 仲介手数料について仲介手数料

    アットホームは物件情報の適正化に努めております。 内容に誤りがある場合にはこちらへご連絡ください。


    物件画像: