賃貸や不動産はアットホーム-賃貸マンション・賃貸物件・不動産なら アットホーム

東京都文京区本郷3丁目(本郷三丁目駅)の貸事務所:物件詳細

  • 物件詳細
  • 情報の見方
  • 印刷用画面
交通
所在地
駅徒歩 賃料
管理費等
敷金/保証金
礼金
使用部分面積
坪数/坪単価
物件種目
築年月

東京メトロ丸ノ内線/本郷三丁目

東京都文京区本郷3丁目

6分

20.9万円

11,000円

なし / 4ヶ月

なし

71.89m²

21.74坪/0.9611万円

貸事務所

1982年10月(築43年2ヶ月)

おすすめコメント  スタッフ: 有吉

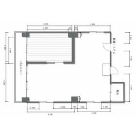
レイアウトしやすいシンプルな間取りです。仕切りがあるお部屋なので来客対応や会議室等にお使いいただけます。

間取図

間取図

その他の画像
  • 幼稚園、保育園
  • 図書館
  • 幼稚園、保育園
  • コンビニ
  • 郵便局
  • コンビニ
  • コンビニ
    • お問い合わせ
    交通

    東京メトロ丸ノ内線 本郷三丁目駅 徒歩6分

    その他の交通

    JR中央線 御茶ノ水駅 徒歩9分

    東京メトロ銀座線 末広町駅 徒歩11分

    所在地 東京都文京区本郷3丁目
    物件種目 貸事務所
    賃料 20.9万円 管理費等 11,000円
    敷金 / 保証金 なし / 4ヶ月 礼金 なし
    敷引 坪単価 0.9611万円
    保証金償却 解約時1ヶ月 権利金
    造作譲渡 その他一時金
    維持費等 保険等
    使用部分面積 71.89m² 坪数 21.74坪
    築年月 1982年10月(築43年2ヶ月) 階建 / 階 6階建 / 4階
    駐車場 バイク置き場
    駐輪場 土地面積
    接道状況 用途地域
    間取り 建物構造 RC
    建物名・部屋番号 三富ビル 4階
    リフォーム履歴
    リノベーション履歴
    特記事項
    備考
    管理形態/管理員の勤務形態:-/-
    保証会社加入必須
    火災保険加入必須
    エネルギー消費性能
    断熱性能
    目安光熱費
    バス・トイレ トイレ
    キッチン
    設備・サービス 個別空調、オートロック、エアコン
    その他 エレベーター
    契約期間 2年 条件等
    引渡可能時期 即時 現況
    仲介手数料 1ヶ月    
    更新料 新賃料 1ヶ月 物件番号 6988085554
    情報公開日 2025年10月21日 次回更新予定日 2025年11月18日
    ケータイ用バーコード

    QRコード

    スマートフォンでこの物件を見る
    スマートフォンからもこの物件をご覧になれます。
    ※「-」と表示されている項目については、情報提供会社にご確認ください。

    この物件の周辺情報

    周辺施設 文京区立湯島幼稚園
    距離 114m
    周辺施設 文京区立湯島図書館
    距離 114m
    周辺施設 たんぽぽ保育園分園
    距離 116m
    周辺施設 セブンイレブン文京本郷3丁目店
    距離 187m
    周辺施設 本郷三郵便局
    距離 128m
    周辺施設 セブンイレブン本郷店
    距離 187m
    周辺施設 ローソン文京サッカー通り店
    距離 145m
    周辺施設 アポロステーションセルフ本郷SS
    距離 239m

    クイックお問い合わせ

    ここから簡単にお問い合わせをすることができます。
    (SSLでの暗号化での送信を希望されるお客さまは こちら よりお問い合わせください)

    お問い合わせ内容(必須)
    物件のお問い合わせ理由(必須)
    お名前・ご担当者様名(必須) 姓  名 
    メールアドレス(必須)
    ※携帯電話のメールアドレスをご入力される方はこちらをご確認ください
    電話番号(必須)
    - -
    備考欄 希望条件、物件案内希望日、質問などがございましたらご記入ください。
    お問い合わせを行う前に「個人情報の取り扱いについて」を必ずお読みください。
    「個人情報の取り扱いについて」に同意いただいた場合は「上記にご同意の上 確認画面へ進む」のボタンをクリックしてください。

    個人情報の取り扱いについて

    皆さまが送付された個人情報はアットホーム(株)のサーバを経由し、お問い合わせ先の不動産会社にメールまたはFAXにて転送されるためアットホーム(株)にも保管されます。アットホーム(株)で保管された個人情報の取り扱いについては、【こちら】をご覧ください。
    また、本画面でご記入いただいた個人情報は、お問い合わせ先の不動産会社でも保管します。 お問い合わせ先の不動産会社が保管する個人情報の取り扱いについては、不動産会社に直接お問い合わせください。

    情報提供会社

    情報提供会社

    (株)アースウィンド 上野店

    東京都知事免許(5)第79601号

    交通:
    東京メトロ銀座線/上野広小路駅 徒歩1分
    東京都台東区上野3丁目17-4 尾上貿易上野ビル1F
    TEL:
    03-5807-5666
    FAX:
    03-5807-5665
    所属団体:
    (公社)全日本不動産協会会員
    (公社)首都圏不動産公正取引協議会加盟

    取引態様:仲介

    • 会社情報
    • 00012884
    スマートフォンで
    この不動産会社を見る
    QRコード
    • お問い合わせ
    • 提携サイト等より掲載されている物件情報につきましては、不動産会社詳細情報にリンクされていないものがあります。
    • 物件に関するお問合せは、物件詳細ページの「情報提供会社」に表示されている不動産会社へ直接お願いいたします。
    • 間取図は、現況を優先させていただきます。
    • 映像は物件の一部を撮影したものです。物件の契約にあたっての最終判断はご自身の判断に基づいて行ってください。
    • 仲介手数料について仲介手数料

    アットホームは物件情報の適正化に努めております。 内容に誤りがある場合にはこちらへご連絡ください。


    物件画像: