賃貸や不動産はアットホーム-賃貸マンション・賃貸物件・不動産なら アットホーム

宮城県仙台市青葉区一番町1丁目(仙台駅)の貸事務所:物件詳細

  • 物件詳細
  • 情報の見方
  • 印刷用画面
交通
所在地
駅徒歩 賃料
管理費等
敷金/保証金
礼金
使用部分面積
坪数/坪単価
物件種目
築年月

仙台市東西線/仙台

宮城県仙台市青葉区一番町1丁目

7分

10.07万円

33,577円

6ヶ月 / なし

なし

40.36m²

12.20坪/0.8249万円

貸事務所

1982年6月(築43年6ヶ月)

おすすめコメント

東二番丁通りに面したオフィスビルです。仙台駅から徒歩圏内。機械式駐車場および駐輪場を設けております。

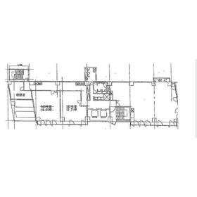
間取図

間取図

その他の画像
    • お問い合わせ
    交通

    仙台市東西線 仙台駅 徒歩7分

    その他の交通

    仙台市南北線 仙台駅 徒歩7分

    JR東北本線 仙台駅 徒歩10分

    所在地 宮城県仙台市青葉区一番町1丁目
    物件種目 貸事務所
    賃料 10.07万円 管理費等 33,577円
    敷金 / 保証金 6ヶ月 / なし 礼金 なし
    敷引 坪単価 0.8249万円
    保証金償却 権利金
    造作譲渡 その他一時金
    維持費等 保険等
    使用部分面積 40.36m² 坪数 12.20坪
    築年月 1982年6月(築43年6ヶ月) 階建 / 階 地上10階地下1階建 / 5階
    駐車場 有 36,300円/月 バイク置き場
    駐輪場 有 1,000円/月 土地面積
    接道状況 用途地域 商業地域
    間取り 建物構造 SRC
    建物名・部屋番号 青葉パークビル 502区画
    リフォーム履歴
    リノベーション履歴
    特記事項 24時間利用可、土日・祝日利用可、OAフロア、24時間セキュリティー
    備考
    管理形態/管理員の勤務形態:-/-
    主要採光面:南向き
    〇東二番丁通り沿いのオフィスビル 
    エネルギー消費性能
    断熱性能
    目安光熱費
    バス・トイレ 共用部分に男女別トイレあり
    キッチン
    設備・サービス 個別空調、動力あり、ビルトインエアコン、暖房、冷房、火災警報器(報知機)
    その他 エレベーター2基以上
    契約期間 2年 条件等
    引渡可能時期 2026年2月上旬予定 現況 使用中
    仲介手数料 1.1ヶ月    
    更新料 物件番号 6988024748
    情報公開日 2025年10月15日 次回更新予定日 2025年11月12日
    ケータイ用バーコード

    QRコード

    スマートフォンでこの物件を見る
    スマートフォンからもこの物件をご覧になれます。
    ※「-」と表示されている項目については、情報提供会社にご確認ください。

    クイックお問い合わせ

    ここから簡単にお問い合わせをすることができます。
    (SSLでの暗号化での送信を希望されるお客さまは こちら よりお問い合わせください)

    お問い合わせ内容(必須)
    物件のお問い合わせ理由(必須)
    お名前・ご担当者様名(必須) 姓  名 
    メールアドレス(必須)
    ※携帯電話のメールアドレスをご入力される方はこちらをご確認ください
    電話番号(必須)
    - -
    備考欄 希望条件、物件案内希望日、質問などがございましたらご記入ください。
    お問い合わせを行う前に「個人情報の取り扱いについて」を必ずお読みください。
    「個人情報の取り扱いについて」に同意いただいた場合は「上記にご同意の上 確認画面へ進む」のボタンをクリックしてください。

    個人情報の取り扱いについて

    皆さまが送付された個人情報はアットホーム(株)のサーバを経由し、お問い合わせ先の不動産会社にメールまたはFAXにて転送されるためアットホーム(株)にも保管されます。アットホーム(株)で保管された個人情報の取り扱いについては、【こちら】をご覧ください。
    また、本画面でご記入いただいた個人情報は、お問い合わせ先の不動産会社でも保管します。 お問い合わせ先の不動産会社が保管する個人情報の取り扱いについては、不動産会社に直接お問い合わせください。

    情報提供会社

    情報提供会社

    (株)オフィスメディア仙台店

    宮城県知事免許(10)第3000号

    交通:
    JR仙石線/あおば通駅 徒歩1分
    宮城県仙台市青葉区中央2丁目2-10 仙都会舘 2F
    TEL:
    022-265-0131
    FAX:
    022-265-0136
    所属団体:
    (公社)全日本不動産協会会員
    東北地区不動産公正取引協議会加盟

    取引態様:仲介

    • 会社情報
    • 20001394
    スマートフォンで
    この不動産会社を見る
    QRコード
    • お問い合わせ
    • 提携サイト等より掲載されている物件情報につきましては、不動産会社詳細情報にリンクされていないものがあります。
    • 物件に関するお問合せは、物件詳細ページの「情報提供会社」に表示されている不動産会社へ直接お願いいたします。
    • 間取図は、現況を優先させていただきます。
    • 映像は物件の一部を撮影したものです。物件の契約にあたっての最終判断はご自身の判断に基づいて行ってください。
    • 仲介手数料について仲介手数料

    アットホームは物件情報の適正化に努めております。 内容に誤りがある場合にはこちらへご連絡ください。


    物件画像: