賃貸や不動産はアットホーム-賃貸マンション・賃貸物件・不動産なら アットホーム

広島県広島市中区胡町(胡町駅)の貸事務所:物件詳細

  • 物件詳細
  • 情報の見方
  • 印刷用画面
交通
所在地
駅徒歩 賃料
管理費等
敷金/保証金
礼金
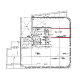
使用部分面積
坪数/坪単価
物件種目
築年月

広島電鉄本線/胡町

広島県広島市中区胡町

1分

要確認

要確認

107.74m²

32.59坪/要確認

貸事務所

1988年4月(築37年11ヶ月)

おすすめコメント  スタッフ: 猪川 未来

◆胡町電停から徒歩1分の好立地◆1階コンビニ入居で利便性の良いオフィス環境!エレベーターが4基、機械警備、OAフロア、個別空調設備有!

間取図

間取図

外観

外観

<
その他の画像
  • 玄関
  • エントランス
  • 共有部分
  • 共有部分
  • 共有部分
  • 室内
  • 室内
  • 室内
  • 室内
  • 眺望
  • キッチン
  • 洗面
  • トイレ
  • トイレ
  • ショッピング施設
  • コンビニ
  • コンビニ
  • コンビニ
  • 郵便局
  • 役所
  • 銀行
  • 銀行
>
    • お問い合わせ
    交通

    広島電鉄本線 胡町駅 徒歩1分

    その他の交通

    広島電鉄本線 八丁堀駅 徒歩2分

    広島電鉄本線 銀山町駅 徒歩3分

    所在地 広島県広島市中区胡町
    物件種目 貸事務所
    賃料 要確認 管理費等 要確認
    敷金 / 保証金 要確認 礼金 要確認
    敷引 要確認 坪単価 要確認
    保証金償却 要確認 権利金
    造作譲渡 その他一時金
    維持費等 保険等
    使用部分面積 107.74m² 坪数 32.59坪
    築年月 1988年4月(築37年11ヶ月) 階建 / 階 12階建 / 8階
    駐車場 有 35,200円/月
    敷金6ヶ月
    バイク置き場
    駐輪場 土地面積
    接道状況 用途地域
    間取り 建物構造 SRC
    アピールポイント ◆広島市中区中心部エリアは弊社にお任せください!◆
    広島電鉄・胡町電停から徒歩1分の好立地!
    相生通りに面しており、地上12階建ての重厚感のある茶色の外観が特徴的です。
    1階にはコンビニ、道路を挟んで百貨店があり、周辺には飲食店が充実しています。
    また、郵便局・銀行もあり便利です。
    広々とした明るいエントランスに、エレベーターが4基ある点も嬉しいです。
    広島で事務所をお探しでしたら是非一度お問い合わせください!
    建物名・部屋番号 朝日生命広島胡町ビル
    リフォーム履歴
    リノベーション履歴
    特記事項 24時間利用可、土曜日利用可、OAフロア、24時間セキュリティー、天井高2.5M以上
    備考
    管理形態/管理員の勤務形態:-/-
    エネルギー消費性能
    断熱性能
    目安光熱費
    バス・トイレ 共用部分に男女別トイレあり
    キッチン
    設備・サービス 個別空調、エアコン、インターネット対応、光ファイバー
    その他 エレベーター2基以上、エレベーター
    契約期間 要確認 条件等
    引渡可能時期 2026年3月予定 現況 使用中
    更新料 要確認 物件番号 6988024197
    情報公開日 2025年10月16日 次回更新予定日 2026年2月20日
    ケータイ用バーコード

    QRコード

    スマートフォンでこの物件を見る
    スマートフォンからもこの物件をご覧になれます。
    ※「-」と表示されている項目については、情報提供会社にご確認ください。

    この物件の周辺情報

    周辺施設 広島三越
    距離 79m
    周辺施設 セブンイレブン広島胡町店
    距離 117m
    周辺施設 ファミリーマート銀山町店
    距離 234m
    周辺施設 ローソン広島鉄砲町店
    距離 179m
    周辺施設 広島胡町郵便局
    距離 128m
    周辺施設 広島県庁
    距離 758m
    周辺施設 百十四銀行広島支店
    距離 45m
    周辺施設 もみじ銀行本店営業部
    距離 213m

    クイックお問い合わせ

    ここから簡単にお問い合わせをすることができます。
    (SSLでの暗号化での送信を希望されるお客さまは こちら よりお問い合わせください)

    お問い合わせ内容(必須)
    物件のお問い合わせ理由(必須)
    お名前・ご担当者様名(必須) 姓  名 
    メールアドレス(必須)
    ※携帯電話のメールアドレスをご入力される方はこちらをご確認ください
    電話番号(必須)
    - -
    備考欄 希望条件、物件案内希望日、質問などがございましたらご記入ください。
    お問い合わせを行う前に「個人情報の取り扱いについて」を必ずお読みください。
    「個人情報の取り扱いについて」に同意いただいた場合は「上記にご同意の上 確認画面へ進む」のボタンをクリックしてください。

    個人情報の取り扱いについて

    皆さまが送付された個人情報はアットホーム(株)のサーバを経由し、お問い合わせ先の不動産会社にメールまたはFAXにて転送されるためアットホーム(株)にも保管されます。アットホーム(株)で保管された個人情報の取り扱いについては、【こちら】をご覧ください。
    また、本画面でご記入いただいた個人情報は、お問い合わせ先の不動産会社でも保管します。 お問い合わせ先の不動産会社が保管する個人情報の取り扱いについては、不動産会社に直接お問い合わせください。

    情報提供会社

    情報提供会社

    (株)クイックコンサルティング 広島支店

    国土交通大臣免許(4)第7938号

    交通:
    広島電鉄本線/紙屋町東駅 徒歩3分
    広島県広島市中区立町2-23 野村不動産広島ビル6F
    TEL:
    082-242-6600
    FAX:
    082-242-6602
    所属団体:
    (公社)全日本不動産協会会員
    中国地区不動産公正取引協議会加盟

    取引態様:仲介

    • 会社情報
    • 50108329
    スマートフォンで
    この不動産会社を見る
    QRコード
    • お問い合わせ
    • 提携サイト等より掲載されている物件情報につきましては、不動産会社詳細情報にリンクされていないものがあります。
    • 物件に関するお問合せは、物件詳細ページの「情報提供会社」に表示されている不動産会社へ直接お願いいたします。
    • 間取図は、現況を優先させていただきます。
    • 映像は物件の一部を撮影したものです。物件の契約にあたっての最終判断はご自身の判断に基づいて行ってください。
    • 仲介手数料について仲介手数料

    アットホームは物件情報の適正化に努めております。 内容に誤りがある場合にはこちらへご連絡ください。


    物件画像: