賃貸や不動産はアットホーム-賃貸マンション・賃貸物件・不動産なら アットホーム

香川県高松市福岡町2丁目(松島二丁目駅)の貸事務所:物件詳細

  • 物件詳細
  • 情報の見方
  • 印刷用画面
交通
所在地
駅徒歩 賃料
管理費等
敷金/保証金
礼金
使用部分面積
坪数/坪単価
物件種目
築年月

高松琴平電鉄志度線/松島二丁目

香川県高松市福岡町2丁目

14分

45万円

3ヶ月 / なし

なし

474.72m²

143.60坪/0.3134万円

貸事務所(建物一括)

1983年1月(築42年11ヶ月)

おすすめコメント

立地がよくて駐車場も確保できています。広い倉庫に会議室、お風呂もついいるのでシャワーが必要な業者さんも助かりすね。キッチンもあるので飲食店もできますよ。(飲食店可)

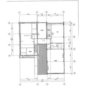
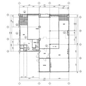
間取図

間取図

<
その他の画像
>
    • お問い合わせ
    交通

    高松琴平電鉄志度線 松島二丁目駅 徒歩14分

    その他の交通

    高松琴平電鉄志度線 今橋駅 徒歩12分

    所在地 香川県高松市福岡町2丁目
    物件種目 貸事務所(建物一括)
    賃料 45万円 管理費等
    敷金 / 保証金 3ヶ月 / なし 礼金 なし
    敷引 坪単価 0.3134万円
    保証金償却 権利金
    造作譲渡 その他一時金
    維持費等 保険等
    使用部分面積 474.72m² 坪数 143.60坪
    築年月 1983年1月(築42年11ヶ月) 階建 / 階 2階建
    駐車場 有 無料(空き9台) バイク置き場 有 無料
    駐輪場 有 無料 土地面積 557.00m²(公簿)
    接道状況 北 8.0m 公道 接面25.5m 用途地域 準工業
    間取り 建物構造 SRC
    アピールポイント 会費室や応接室もあります。ホテルが目の前なので県外に本支店がある会社さんは時間のロスがないですね。
    是非一度ご覧下さい。
    お問い合わせは真部不動産までお気軽に。
    建物名・部屋番号  
    リフォーム履歴
    リノベーション履歴
    特記事項 24時間利用可、土曜日利用可、土日・祝日利用可、飲食店可、駐車場2台分、駐車場3台分以上
    備考
    管理形態/管理員の勤務形態:-/-
    主要採光面:北向き
    施設内会議室あり:無料
    エネルギー消費性能
    断熱性能
    目安光熱費
    バス・トイレ バス・トイレ別、シャワー、共用部分に男女別トイレあり
    キッチン オープンキッチン
    設備・サービス 収納スペース、蓄電池付き
    その他
    契約期間 3年 条件等
    引渡可能時期 即時 現況
    更新料 物件番号 6987943448
    情報公開日 2025年10月16日 次回更新予定日 2025年11月8日
    ケータイ用バーコード

    QRコード

    スマートフォンでこの物件を見る
    スマートフォンからもこの物件をご覧になれます。
    ※「-」と表示されている項目については、情報提供会社にご確認ください。

    この物件の周辺情報

    周辺施設 香川県立武道館
    距離 232m
    周辺施設 ファミリーマート高松福岡町一丁目店
    距離 395m
    周辺施設 高松福岡町郵便局
    距離 524m

    クイックお問い合わせ

    ここから簡単にお問い合わせをすることができます。
    (SSLでの暗号化での送信を希望されるお客さまは こちら よりお問い合わせください)

    お問い合わせ内容(必須)
    物件のお問い合わせ理由(必須)
    お名前・ご担当者様名(必須) 姓  名 
    メールアドレス(必須)
    ※携帯電話のメールアドレスをご入力される方はこちらをご確認ください
    電話番号(必須)
    - -
    備考欄 希望条件、物件案内希望日、質問などがございましたらご記入ください。
    お問い合わせを行う前に「個人情報の取り扱いについて」を必ずお読みください。
    「個人情報の取り扱いについて」に同意いただいた場合は「上記にご同意の上 確認画面へ進む」のボタンをクリックしてください。

    個人情報の取り扱いについて

    皆さまが送付された個人情報はアットホーム(株)のサーバを経由し、お問い合わせ先の不動産会社にメールまたはFAXにて転送されるためアットホーム(株)にも保管されます。アットホーム(株)で保管された個人情報の取り扱いについては、【こちら】をご覧ください。
    また、本画面でご記入いただいた個人情報は、お問い合わせ先の不動産会社でも保管します。 お問い合わせ先の不動産会社が保管する個人情報の取り扱いについては、不動産会社に直接お問い合わせください。

    情報提供会社

    情報提供会社

    真部不動産(株)

    香川県知事免許(1)第4537号

    交通:
    高松琴平電鉄長尾線/元山駅 徒歩12分
    香川県高松市木太町4410-4 
    TEL:
    087-814-5012
    FAX:
    087-814-5018
    所属団体:
    (公社)全日本不動産協会会員
    四国地区不動産公正取引協議会加盟

    取引態様:仲介

    • 会社情報
    • 50109590
    スマートフォンで
    この不動産会社を見る
    QRコード
    • お問い合わせ
    • 提携サイト等より掲載されている物件情報につきましては、不動産会社詳細情報にリンクされていないものがあります。
    • 物件に関するお問合せは、物件詳細ページの「情報提供会社」に表示されている不動産会社へ直接お願いいたします。
    • 間取図は、現況を優先させていただきます。
    • 映像は物件の一部を撮影したものです。物件の契約にあたっての最終判断はご自身の判断に基づいて行ってください。
    • 仲介手数料について仲介手数料

    アットホームは物件情報の適正化に努めております。 内容に誤りがある場合にはこちらへご連絡ください。


    物件画像: