賃貸や不動産はアットホーム-賃貸マンション・賃貸物件・不動産なら アットホーム

愛媛県松山市大手町1丁目(西堀端駅)の貸事務所:物件詳細

  • 物件詳細
  • 情報の見方
  • 印刷用画面
交通
所在地
駅徒歩 賃料
管理費等
敷金/保証金
礼金
使用部分面積
坪数/坪単価
物件種目
築年月

伊予鉄道環状線/西堀端

愛媛県松山市大手町1丁目

1分

要確認

要確認

45.03m²

13.62坪/要確認

貸事務所

1986年7月(築39年6ヶ月)

おすすめコメント  スタッフ: 渡部 潤

西堀端電停目の前!大手町交差点の角地!オフィスビル3階です!

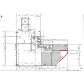
間取図

間取図

その他の画像
    • お問い合わせ
    交通

    伊予鉄道環状線 西堀端駅 徒歩1分

    その他の交通

    伊予鉄道本町線 本町一丁目駅 徒歩1分

    伊予鉄道高浜線 大手町駅 徒歩5分

    所在地 愛媛県松山市大手町1丁目
    物件種目 貸事務所
    賃料 要確認 管理費等 要確認
    敷金 / 保証金 要確認 礼金 要確認
    敷引 要確認 坪単価 要確認
    保証金償却 要確認 権利金
    造作譲渡 その他一時金
    維持費等 保険等
    使用部分面積 45.03m² 坪数 13.62坪
    築年月 1986年7月(築39年6ヶ月) 階建 / 階 6階建 / 3階
    駐車場 バイク置き場
    駐輪場 土地面積
    接道状況 用途地域 商業地域
    間取り 建物構造 RC
    アピールポイント 3沿線利用可の利便性の良い立地です!お気軽にお問い合わせください!
    建物名・部屋番号 愛媛新聞・愛媛電算ビル 3F(13.62坪)
    リフォーム履歴
    リノベーション履歴
    特記事項 24時間利用可
    備考
    賃貸保証等:加入要(家賃保証会社加入必須です)
    管理形態/管理員の勤務形態:-/-
    家賃保証会社への加入必須
    賃料・共益費・敷金等賃貸条件は応相談
    駐車場:機械式立体駐車場※賃料・空き状況は都度要確認
    袖看板:別途契約要・提出料5,500円/月
    正面玄関開閉時間:平日・土曜8:00-19:00、日曜閉鎖、祝日8:00-19:00
    ※管理事務所の所在時間は正面玄関開放時間と同じ
    清掃:清掃会社と別途契約可
    セキュリティ:無(機械警備はテナント負担で契約可)
    空調料金:検針請求
    空調加湿水道料:実費請求(月額数百円程度有)
    2年未満で解約の場合、違約金として敷金の50%を償却
    エネルギー消費性能
    断熱性能
    目安光熱費
    バス・トイレ 共用部分にトイレあり
    キッチン
    設備・サービス
    その他 エレベーター
    契約期間 要確認 条件等
    引渡可能時期 相談 現況
    更新料 要確認 物件番号 6987593664
    情報公開日 2025年9月8日 次回更新予定日 2025年12月29日
    ケータイ用バーコード

    QRコード

    スマートフォンでこの物件を見る
    スマートフォンからもこの物件をご覧になれます。
    ※「-」と表示されている項目については、情報提供会社にご確認ください。

    この物件の周辺情報

    周辺施設 いよてつ高島屋
    距離 957m
    周辺施設 ファミリーマート大手町店
    距離 1m
    周辺施設 ローソン松山味酒町店
    距離 371m
    周辺施設 ドトールコーヒーショップ松山市駅店
    距離 751m
    周辺施設 松山大手郵便局
    距離 206m
    周辺施設 高知銀行松山支店
    距離 146m
    周辺施設 南海放送本町会館
    距離 146m
    周辺施設 松山市民会館
    距離 460m

    クイックお問い合わせ

    ここから簡単にお問い合わせをすることができます。
    (SSLでの暗号化での送信を希望されるお客さまは こちら よりお問い合わせください)

    お問い合わせ内容(必須)
    物件のお問い合わせ理由(必須)
    お名前・ご担当者様名(必須) 姓  名 
    メールアドレス(必須)
    ※携帯電話のメールアドレスをご入力される方はこちらをご確認ください
    電話番号(必須)
    - -
    備考欄 希望条件、物件案内希望日、質問などがございましたらご記入ください。
    お問い合わせを行う前に「個人情報の取り扱いについて」を必ずお読みください。
    「個人情報の取り扱いについて」に同意いただいた場合は「上記にご同意の上 確認画面へ進む」のボタンをクリックしてください。

    個人情報の取り扱いについて

    皆さまが送付された個人情報はアットホーム(株)のサーバを経由し、お問い合わせ先の不動産会社にメールまたはFAXにて転送されるためアットホーム(株)にも保管されます。アットホーム(株)で保管された個人情報の取り扱いについては、【こちら】をご覧ください。
    また、本画面でご記入いただいた個人情報は、お問い合わせ先の不動産会社でも保管します。 お問い合わせ先の不動産会社が保管する個人情報の取り扱いについては、不動産会社に直接お問い合わせください。

    情報提供会社

    情報提供会社

    (株)SANPUKUフューチャー

    愛媛県知事免許(1)第5644号

    交通:
    伊予鉄道横河原線/いよ立花駅 徒歩13分
    愛媛県松山市中村2丁目1-3 三福本社ビル1F
    TEL:
    0120-964-362
    FAX:
    089-913-2332
    所属団体:
    (公社)全日本不動産協会会員
    四国地区不動産公正取引協議会加盟

    取引態様:仲介

    • 会社情報
    • 50105998
    スマートフォンで
    この不動産会社を見る
    QRコード
    • お問い合わせ
    • 提携サイト等より掲載されている物件情報につきましては、不動産会社詳細情報にリンクされていないものがあります。
    • 物件に関するお問合せは、物件詳細ページの「情報提供会社」に表示されている不動産会社へ直接お願いいたします。
    • 間取図は、現況を優先させていただきます。
    • 映像は物件の一部を撮影したものです。物件の契約にあたっての最終判断はご自身の判断に基づいて行ってください。
    • 仲介手数料について仲介手数料

    アットホームは物件情報の適正化に努めております。 内容に誤りがある場合にはこちらへご連絡ください。


    物件画像: