賃貸や不動産はアットホーム-賃貸マンション・賃貸物件・不動産なら アットホーム

東京都港区海岸3丁目(芝浦ふ頭駅)の貸事務所:物件詳細

  • 物件詳細
  • 情報の見方
  • 印刷用画面
交通
所在地
駅徒歩 賃料
管理費等
敷金/保証金
礼金
使用部分面積
坪数/坪単価
物件種目
築年月

新交通ゆりかもめ/芝浦ふ頭

東京都港区海岸3丁目

6分

要確認

要確認

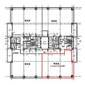
216.66m²

65.53坪/要確認

貸事務所

1994年7月(築31年10ヶ月)

おすすめコメント  スタッフ: 中島

芝浦・海岸エリアの大型ハイスペックビルです!高層階からは東京湾・レインボーブリッジ・東京タワーが見渡せます。JR田町駅から直通通勤バスを運行。敷地内にコンビニ、レストラン併設。

間取図

間取図

外観

外観

<
その他の画像
  • 室内
  • 駐車場
  • コンビニ
  • コンビニ
  • ショッピング施設
  • コンビニ
  • 飲食店
  • 飲食店
  • 飲食店
  • 飲食店
>
    • お問い合わせ
    交通

    新交通ゆりかもめ 芝浦ふ頭駅 徒歩6分

    その他の交通

    新交通ゆりかもめ 日の出駅 徒歩8分

    都営三田線 三田駅 徒歩14分

    所在地 東京都港区海岸3丁目
    物件種目 貸事務所
    賃料 要確認 管理費等 要確認
    敷金 / 保証金 要確認 礼金 要確認
    敷引 要確認 坪単価 要確認
    保証金償却 要確認 権利金
    造作譲渡 その他一時金
    維持費等 保険等
    使用部分面積 216.66m² 坪数 65.53坪
    築年月 1994年7月(築31年10ヶ月) 階建 / 階 地上16階地下3階建 / 6階
    駐車場 バイク置き場
    駐輪場 土地面積
    接道状況 用途地域
    間取り 建物構造 SRC
    アピールポイント 芝浦・海岸エリアの大型ハイスペックビルです!
    高層階からは東京湾・レインボーブリッジ・東京タワーが見渡せます。
    JR田町駅から直通通勤バスを運行。
    敷地内にコンビニ、レストラン併設。
    駐車場あります。※空き要確認。
    建物名・部屋番号 ピアシティ芝浦ビル 6階南西側
    リフォーム履歴
    リノベーション履歴
    特記事項 24時間利用可、有人警備、OAフロア、角部屋、24時間セキュリティー、耐震構造(新耐震基準)、天井高2.5M以上
    備考
    賃貸保証等:加入要(別途)
    管理形態/管理員の勤務形態:-/-
    芝浦・海岸エリアの大型ハイスペックビルです!
    高層階からは東京湾・レインボーブリッジ・東京タワーが見渡せます。
    JR田町駅から直通通勤バスを運行。
    敷地内にコンビニ、レストラン併設。
    駐車場あります。※空き要確認。

    ■有人+開会警備あり
    ■OAフロア(150mm)
    ■天井高:2,700mm
    エネルギー消費性能
    断熱性能
    目安光熱費
    バス・トイレ トイレ2ヶ所、共用部分に男女別トイレあり
    キッチン
    設備・サービス 個別空調、給湯、エアコン、セントラル、暖房、冷房
    その他 エレベーター2基以上、人荷用エレベーター、エレベーター
    契約期間 要確認 条件等
    引渡可能時期 即時 現況
    仲介手数料 1ヶ月    
    更新料 要確認 物件番号 6987525046
    情報公開日 2025年9月2日 次回更新予定日 2026年4月22日
    ケータイ用バーコード

    QRコード

    スマートフォンでこの物件を見る
    スマートフォンからもこの物件をご覧になれます。
    ※「-」と表示されている項目については、情報提供会社にご確認ください。

    この物件の周辺情報

    周辺施設 ローソン芝浦埠頭店
    距離 5m
    周辺施設 ファミリーマート海岸三丁目店
    距離 182m
    周辺施設 まいばすけっと海岸3丁目店
    距離 256m
    周辺施設 セブンイレブン芝浦ベイワード店
    距離 404m
    周辺施設 キッチンオリジン芝浦店
    距離 301m
    周辺施設 なか卯芝浦店
    距離 376m
    周辺施設 ケンタッキーフライドチキンピーコックストア芝浦アイランド店
    距離 786m
    周辺施設 マクドナルド芝浦シーバンス店
    距離 812m

    クイックお問い合わせ

    ここから簡単にお問い合わせをすることができます。
    (SSLでの暗号化での送信を希望されるお客さまは こちら よりお問い合わせください)

    お問い合わせ内容(必須)
    物件のお問い合わせ理由(必須)
    お名前・ご担当者様名(必須) 姓  名 
    メールアドレス(必須)
    ※携帯電話のメールアドレスをご入力される方はこちらをご確認ください
    電話番号(必須)
    - -
    備考欄 希望条件、物件案内希望日、質問などがございましたらご記入ください。
    お問い合わせを行う前に「個人情報の取り扱いについて」を必ずお読みください。
    「個人情報の取り扱いについて」に同意いただいた場合は「上記にご同意の上 確認画面へ進む」のボタンをクリックしてください。

    個人情報の取り扱いについて

    皆さまが送付された個人情報はアットホーム(株)のサーバを経由し、お問い合わせ先の不動産会社にメールまたはFAXにて転送されるためアットホーム(株)にも保管されます。アットホーム(株)で保管された個人情報の取り扱いについては、【こちら】をご覧ください。
    また、本画面でご記入いただいた個人情報は、お問い合わせ先の不動産会社でも保管します。 お問い合わせ先の不動産会社が保管する個人情報の取り扱いについては、不動産会社に直接お問い合わせください。

    情報提供会社

    情報提供会社

    (株)アースウィンド 浜松町店

    東京都知事免許(5)第79601号

    交通:
    都営浅草線/大門駅 徒歩1分
    東京都港区芝大門1丁目15-7 芝大門ABC館ビル7F
    TEL:
    03-3434-9666
    FAX:
    03-3434-9665
    所属団体:
    (公社)全日本不動産協会会員
    (一社)不動産協会会員
    (公社)首都圏不動産公正取引協議会加盟

    取引態様:仲介

    • 会社情報
    • 00160639
    スマートフォンで
    この不動産会社を見る
    QRコード
    • お問い合わせ
    • 提携サイト等より掲載されている物件情報につきましては、不動産会社詳細情報にリンクされていないものがあります。
    • 物件に関するお問合せは、物件詳細ページの「情報提供会社」に表示されている不動産会社へ直接お願いいたします。
    • 間取図は、現況を優先させていただきます。
    • 映像は物件の一部を撮影したものです。物件の契約にあたっての最終判断はご自身の判断に基づいて行ってください。
    • 仲介手数料について仲介手数料

    アットホームは物件情報の適正化に努めております。 内容に誤りがある場合にはこちらへご連絡ください。


    物件画像: