賃貸や不動産はアットホーム-賃貸マンション・賃貸物件・不動産なら アットホーム

群馬県前橋市三俣町3丁目(三俣駅)の貸事務所:物件詳細

  • 物件詳細
  • 情報の見方
  • 印刷用画面
交通
所在地
駅徒歩 賃料
管理費等
敷金/保証金
礼金
使用部分面積
坪数/坪単価
物件種目
築年月

上毛電鉄/三俣

群馬県前橋市三俣町3丁目

17分

60.5万円

なし

3ヶ月 / なし

1ヶ月

289.17m²

87.47坪/0.6917万円

貸事務所(建物一括)

1989年3月(築36年9ヶ月)

おすすめコメント

東部バイパス沿線 倉庫付き事務所!

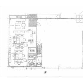
間取図

間取図

<
その他の画像
>
    • お問い合わせ
    交通

    上毛電鉄 三俣駅 徒歩17分

    所在地 群馬県前橋市三俣町3丁目
    物件種目 貸事務所(建物一括)
    賃料 60.5万円 管理費等 なし
    敷金 / 保証金 3ヶ月 / なし 礼金 1ヶ月
    敷引 坪単価 0.6917万円
    保証金償却 権利金
    造作譲渡 その他一時金
    維持費等 フォークリフト:55,000円/月 保険等
    使用部分面積 289.17m² 坪数 87.47坪
    築年月 1989年3月(築36年9ヶ月) 階建 / 階 2階建
    駐車場 有 無料(空き14台) バイク置き場
    駐輪場 土地面積 543.00m²(公簿)
    接道状況 西 20.0m ・ 北 6.0m ・ 東 4.0m ・ 三方道路 用途地域 準工業
    間取り 建物構造 鉄骨造
    建物名・部屋番号 三俣町貸事務所倉庫
    リフォーム履歴
    リノベーション履歴
    特記事項
    備考
    賃貸保証等:加入要(月総支払額の1ヶ月分)
    管理形態/管理員の勤務形態:-/-
    現在使用中です。1F事務所部分の写真はありません。
    1F事務所69㎡、2F事務所69㎡、1F倉庫115㎡ 2F倉庫36㎡

    倉庫内にフォークリフトがあります。
    シャッター内寸 幅3280mm 高さ2600mm ※現地計測による
    エネルギー消費性能
    断熱性能
    目安光熱費
    バス・トイレ 専有部分にトイレあり
    キッチン
    設備・サービス
    その他
    契約期間 3年 条件等
    引渡可能時期 相談 現況 使用中
    仲介手数料 1ヶ月 適格請求書発行
    更新料 新賃料 1ヶ月 物件番号 6987450726
    情報公開日 2025年8月27日 次回更新予定日 2025年11月5日
    ケータイ用バーコード

    QRコード

    スマートフォンでこの物件を見る
    スマートフォンからもこの物件をご覧になれます。
    ※「-」と表示されている項目については、情報提供会社にご確認ください。

    この物件の周辺情報

    周辺施設 セブンイレブン前橋三俣3丁目店
    距離 601m
    周辺施設 群馬県立県民健康科学大学
    距離 1570m
    周辺施設 群馬大学医学部
    距離 2414m
    周辺施設 群馬大学医学部附属病院
    距離 2479m
    周辺施設 前橋三俣郵便局
    距離 1048m
    周辺施設 東和銀行前橋東支店
    距離 1145m
    周辺施設 群馬県庁
    距離 2838m
    周辺施設 前橋市消防局
    距離 2440m

    クイックお問い合わせ

    ここから簡単にお問い合わせをすることができます。
    (SSLでの暗号化での送信を希望されるお客さまは こちら よりお問い合わせください)

    お問い合わせ内容(必須)
    物件のお問い合わせ理由(必須)
    お名前・ご担当者様名(必須) 姓  名 
    メールアドレス(必須)
    ※携帯電話のメールアドレスをご入力される方はこちらをご確認ください
    電話番号(必須)
    - -
    備考欄 希望条件、物件案内希望日、質問などがございましたらご記入ください。
    お問い合わせを行う前に「個人情報の取り扱いについて」を必ずお読みください。
    「個人情報の取り扱いについて」に同意いただいた場合は「上記にご同意の上 確認画面へ進む」のボタンをクリックしてください。

    個人情報の取り扱いについて

    皆さまが送付された個人情報はアットホーム(株)のサーバを経由し、お問い合わせ先の不動産会社にメールまたはFAXにて転送されるためアットホーム(株)にも保管されます。アットホーム(株)で保管された個人情報の取り扱いについては、【こちら】をご覧ください。
    また、本画面でご記入いただいた個人情報は、お問い合わせ先の不動産会社でも保管します。 お問い合わせ先の不動産会社が保管する個人情報の取り扱いについては、不動産会社に直接お問い合わせください。

    情報提供会社

    情報提供会社

    (株)エム・クラスター

    群馬県知事免許(2)第7357号

    交通:
    JR両毛線/前橋駅 徒歩13分
    群馬県前橋市本町1丁目13-14 
    TEL:
    027-289-3648
    FAX:
    027-289-3649
    所属団体:
    (一社)群馬県宅地建物取引業協会会員
    (公社)首都圏不動産公正取引協議会加盟

    取引態様:仲介

    • 会社情報
    • 00260354
    スマートフォンで
    この不動産会社を見る
    QRコード
    • お問い合わせ
    • 提携サイト等より掲載されている物件情報につきましては、不動産会社詳細情報にリンクされていないものがあります。
    • 物件に関するお問合せは、物件詳細ページの「情報提供会社」に表示されている不動産会社へ直接お願いいたします。
    • 間取図は、現況を優先させていただきます。
    • 映像は物件の一部を撮影したものです。物件の契約にあたっての最終判断はご自身の判断に基づいて行ってください。
    • 仲介手数料について仲介手数料

    アットホームは物件情報の適正化に努めております。 内容に誤りがある場合にはこちらへご連絡ください。


    物件画像: