賃貸や不動産はアットホーム-賃貸マンション・賃貸物件・不動産なら アットホーム

福岡県福岡市博多区博多駅前3丁目(博多駅)の貸事務所:物件詳細

  • 物件詳細
  • 情報の見方
  • 印刷用画面
交通
所在地
駅徒歩 賃料
管理費等
敷金/保証金
礼金
使用部分面積
坪数/坪単価
物件種目
築年月

JR鹿児島本線/博多 新着

福岡県福岡市博多区博多駅前3丁目

6分

29.7万円

89,100円

12ヶ月 / なし

なし

89.26m²

27.00坪/1.10万円

貸事務所

1974年4月(築51年8ヶ月)

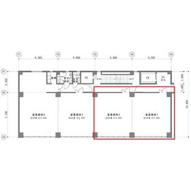
間取図

間取図

外観

外観

<
その他の画像
  • 共有部分
  • 共有部分
  • 共有部分
  • 共有部分
  • 共有部分
  • 共有部分
  • 共有部分
  • 共有部分
  • 共有部分
  • 室内
  • 室内
  • 室内
  • 室内
  • 室内
>
    • お問い合わせ
    交通

    JR鹿児島本線 博多駅 徒歩6分

    その他の交通

    地下鉄空港線 博多駅 徒歩8分

    地下鉄七隈線 博多駅 徒歩3分

    所在地 福岡県福岡市博多区博多駅前3丁目
    物件種目 貸事務所
    賃料 29.7万円 管理費等 89,100円
    敷金 / 保証金 12ヶ月 / なし 礼金 なし
    敷引 坪単価 1.10万円
    保証金償却 権利金
    造作譲渡 その他一時金
    維持費等 保険等
    使用部分面積 89.26m² 坪数 27.00坪
    築年月 1974年4月(築51年8ヶ月) 階建 / 階 地上9階地下1階建 / 4階
    駐車場 バイク置き場
    駐輪場 土地面積
    接道状況 用途地域 商業地域
    間取り 建物構造 SRC
    アピールポイント 博多駅徒歩圏内。博多駅前通りそば。店舗業種・深夜営業・24時間営業・365日営業不可。2035年までの定期建物賃貸借契約。
    建物名・部屋番号 Mビル1号館 401・402
    リフォーム履歴
    リノベーション履歴
    特記事項 飲食店不可、1フロア1テナント
    備考
    管理形態/管理員の勤務形態:-/-
    エネルギー消費性能
    断熱性能
    目安光熱費
    バス・トイレ 共用部分に男女別トイレあり
    キッチン
    設備・サービス エアコン
    その他 エレベーター
    契約期間 10年 条件等 定期借家定期借家
    引渡可能時期 相談 現況
    仲介手数料 1ヶ月 適格請求書発行
    更新料 物件番号 6987224453
    情報公開日 2025年10月31日 次回更新予定日 2025年11月14日
    ケータイ用バーコード

    QRコード

    スマートフォンでこの物件を見る
    スマートフォンからもこの物件をご覧になれます。
    ※「-」と表示されている項目については、情報提供会社にご確認ください。

    クイックお問い合わせ

    ここから簡単にお問い合わせをすることができます。
    (SSLでの暗号化での送信を希望されるお客さまは こちら よりお問い合わせください)

    お問い合わせ内容(必須)
    物件のお問い合わせ理由(必須)
    お名前・ご担当者様名(必須) 姓  名 
    メールアドレス(必須)
    ※携帯電話のメールアドレスをご入力される方はこちらをご確認ください
    電話番号(必須)
    - -
    備考欄 希望条件、物件案内希望日、質問などがございましたらご記入ください。
    お問い合わせを行う前に「個人情報の取り扱いについて」を必ずお読みください。
    「個人情報の取り扱いについて」に同意いただいた場合は「上記にご同意の上 確認画面へ進む」のボタンをクリックしてください。

    個人情報の取り扱いについて

    皆さまが送付された個人情報はアットホーム(株)のサーバを経由し、お問い合わせ先の不動産会社にメールまたはFAXにて転送されるためアットホーム(株)にも保管されます。アットホーム(株)で保管された個人情報の取り扱いについては、【こちら】をご覧ください。
    また、本画面でご記入いただいた個人情報は、お問い合わせ先の不動産会社でも保管します。 お問い合わせ先の不動産会社が保管する個人情報の取り扱いについては、不動産会社に直接お問い合わせください。

    情報提供会社

    情報提供会社

    野仲ビル(株)

    福岡県知事免許(12)第7039号

    交通:
    西鉄貝塚線/西鉄香椎駅 徒歩1分 【バス】 香椎 停歩1分
    福岡県福岡市東区香椎駅前2丁目13-11 
    TEL:
    092-662-7711
    FAX:
    092-662-7791
    所属団体:
    (公社)福岡県宅地建物取引業協会会員
    (一社)九州不動産公正取引協議会加盟

    取引態様:仲介

    • 会社情報
    • 80005433
    スマートフォンで
    この不動産会社を見る
    QRコード
    • お問い合わせ
    • 提携サイト等より掲載されている物件情報につきましては、不動産会社詳細情報にリンクされていないものがあります。
    • 物件に関するお問合せは、物件詳細ページの「情報提供会社」に表示されている不動産会社へ直接お願いいたします。
    • 間取図は、現況を優先させていただきます。
    • 映像は物件の一部を撮影したものです。物件の契約にあたっての最終判断はご自身の判断に基づいて行ってください。
    • 仲介手数料について仲介手数料

    アットホームは物件情報の適正化に努めております。 内容に誤りがある場合にはこちらへご連絡ください。


    物件画像: