賃貸や不動産はアットホーム-賃貸マンション・賃貸物件・不動産なら アットホーム

愛媛県喜多郡内子町知清(内子駅)の貸事務所:物件詳細

  • 物件詳細
  • 情報の見方
  • 印刷用画面
交通
所在地
駅徒歩 賃料
管理費等
敷金/保証金
礼金
使用部分面積
坪数/坪単価
物件種目
築年月

JR予讃線/内子

愛媛県喜多郡内子町知清

17分

10万円

なし

2ヶ月 / なし

2ヶ月

50.71m²

15.33坪/0.652万円

貸事務所(建物一括)

2006年3月(築19年10ヶ月)

おすすめコメント

敷地面積100坪。駐車場広い貸事務所です。国道56号近く、前面道路も11mと広いので大型車両も出入り可能です。資材置き場としての利用も可能

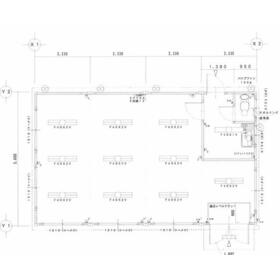
間取図

間取図

その他の画像
    • お問い合わせ
    交通

    JR予讃線 内子駅 徒歩17分

    所在地 愛媛県喜多郡内子町知清
    物件種目 貸事務所(建物一括)
    賃料 10万円 管理費等 なし
    敷金 / 保証金 2ヶ月 / なし 礼金 2ヶ月
    敷引 坪単価 0.652万円
    保証金償却 権利金
    造作譲渡 その他一時金
    維持費等 保険等
    使用部分面積 50.71m² 坪数 15.33坪
    築年月 2006年3月(築19年10ヶ月) 階建 / 階 1階建
    駐車場 有 無料 バイク置き場
    駐輪場 土地面積 339.15m²(公簿)
    接道状況 東 11.3m 公道 接面15.0m 用途地域 無指定
    間取り 建物構造 軽量鉄骨造
    アピールポイント 敷地面積100坪。駐車場広い貸事務所です。国道56号近く、前面道路も11mと広いので大型車両も出入り可能です。資材置き場としての利用も可能
    建物名・部屋番号  
    リフォーム履歴
    リノベーション履歴
    特記事項 スケルトン、駐車場3台分以上、都道府県道沿いに面する
    備考
    管理形態/管理員の勤務形態:-/-
    主要採光面:東向き
    敷地面積100坪。駐車場広い貸事務所です。国道56号近く、前面道路も11mと広いので大型車両も出入り可能です。資材置き場としての利用も可能。
    エネルギー消費性能
    断熱性能
    目安光熱費
    バス・トイレ トイレ
    キッチン
    設備・サービス 給湯、エアコン
    その他
    契約期間 2年 条件等
    引渡可能時期 即時 現況
    更新料 物件番号 6986888448
    情報公開日 2025年9月26日 次回更新予定日 2026年1月2日
    ケータイ用バーコード

    QRコード

    スマートフォンでこの物件を見る
    スマートフォンからもこの物件をご覧になれます。
    ※「-」と表示されている項目については、情報提供会社にご確認ください。

    この物件の周辺情報

    周辺施設 フジ内子店
    距離 1005m
    周辺施設 ファミリーマート内子店
    距離 577m
    周辺施設 JA-SS内子
    距離 538m
    周辺施設 内子郵便局
    距離 594m
    周辺施設 内子消防署
    距離 1057m

    クイックお問い合わせ

    ここから簡単にお問い合わせをすることができます。
    (SSLでの暗号化での送信を希望されるお客さまは こちら よりお問い合わせください)

    お問い合わせ内容(必須)
    物件のお問い合わせ理由(必須)
    お名前・ご担当者様名(必須) 姓  名 
    メールアドレス(必須)
    ※携帯電話のメールアドレスをご入力される方はこちらをご確認ください
    電話番号(必須)
    - -
    備考欄 希望条件、物件案内希望日、質問などがございましたらご記入ください。
    お問い合わせを行う前に「個人情報の取り扱いについて」を必ずお読みください。
    「個人情報の取り扱いについて」に同意いただいた場合は「上記にご同意の上 確認画面へ進む」のボタンをクリックしてください。

    個人情報の取り扱いについて

    皆さまが送付された個人情報はアットホーム(株)のサーバを経由し、お問い合わせ先の不動産会社にメールまたはFAXにて転送されるためアットホーム(株)にも保管されます。アットホーム(株)で保管された個人情報の取り扱いについては、【こちら】をご覧ください。
    また、本画面でご記入いただいた個人情報は、お問い合わせ先の不動産会社でも保管します。 お問い合わせ先の不動産会社が保管する個人情報の取り扱いについては、不動産会社に直接お問い合わせください。

    情報提供会社

    情報提供会社

    田舎の不動産屋さん 四国賃貸住宅(株)

    愛媛県知事免許(1)第5637号

    交通:
    JR内子線/内子駅 徒歩2分
    愛媛県喜多郡内子町内子264番地 
    TEL:
    0893-57-6300
    FAX:
    0893-57-6305
    所属団体:
    (公社)愛媛県宅地建物取引業協会会員
    四国地区不動産公正取引協議会加盟

    取引態様:仲介

    • 会社情報
    • 50105924
    スマートフォンで
    この不動産会社を見る
    QRコード
    • お問い合わせ
    • 提携サイト等より掲載されている物件情報につきましては、不動産会社詳細情報にリンクされていないものがあります。
    • 物件に関するお問合せは、物件詳細ページの「情報提供会社」に表示されている不動産会社へ直接お願いいたします。
    • 間取図は、現況を優先させていただきます。
    • 映像は物件の一部を撮影したものです。物件の契約にあたっての最終判断はご自身の判断に基づいて行ってください。
    • 仲介手数料について仲介手数料

    アットホームは物件情報の適正化に努めております。 内容に誤りがある場合にはこちらへご連絡ください。


    物件画像: