賃貸や不動産はアットホーム-賃貸マンション・賃貸物件・不動産なら アットホーム

新潟県新潟市中央区網川原1丁目の貸事務所:物件詳細

  • 物件詳細
  • 情報の見方
  • 印刷用画面
交通
所在地
駅徒歩 賃料
管理費等
敷金/保証金
礼金
使用部分面積
坪数/坪単価
物件種目
築年月

【バス】出来島変電所 停歩2分

新潟県新潟市中央区網川原1丁目


8.8万円

6ヶ月 / なし

1ヶ月

47.78m²

14.45坪/0.6089万円

貸事務所

1995年9月(築30年4ヶ月)

おすすめコメント

月額80,000円(税別)!約14坪の2階貸事務所です。駐車場1台付き♪

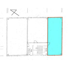
間取図

間取図

2階図面

外観

外観

その他の画像
  • 室内
  • キッチン
  • 室内
  • 設備
  • 設備
    • お問い合わせ
    交通

    【バス】 出来島変電所 停歩2分

    所在地 新潟県新潟市中央区網川原1丁目
    物件種目 貸事務所
    賃料 8.8万円 管理費等
    敷金 / 保証金 6ヶ月 / なし 礼金 1ヶ月
    敷引 坪単価 0.6089万円
    保証金償却 権利金
    造作譲渡 その他一時金
    維持費等 光熱費(税別):27,000円/月 保険等
    使用部分面積 47.78m² 坪数 14.45坪
    築年月 1995年9月(築30年4ヶ月) 階建 / 階 2階建 / 2階
    駐車場 有 無料(空き1台)
    1台分は賃料に含まれています。
    バイク置き場
    駐輪場 土地面積
    接道状況 用途地域 1種住居
    間取り 建物構造 鉄骨造
    アピールポイント ◆契約期間は要相談です。
    ◆2025年8月以降入居可能です。
    ◆住宅街にありますが、2階で解放感のあるお部屋です。
    ◆新潟バイパス「女池IC」まで車で約6分です。
    ◆共用部にトイレ(男女別)
    ◆専有部には給湯(電気)・コンロ(電気)、機械警備と空調機がございます。
    建物名・部屋番号 エヌシーイー株式会社第1分館 2階1号室
    リフォーム履歴
    リノベーション履歴
    特記事項 角部屋、24時間セキュリティー、耐震構造(新耐震基準)
    備考
    管理形態/管理員の勤務形態:-/-
    ※当社指定の家賃保証会社にご加入頂く場合がございます。
    エネルギー消費性能
    断熱性能
    目安光熱費
    バス・トイレ 共用部分に男女別トイレあり
    キッチン
    設備・サービス 給湯、エアコン
    その他
    契約期間 2035年5月16日まで 条件等 定期借家定期借家
    引渡可能時期 即時 現況
    仲介手数料 1ヶ月    
    更新料 物件番号 6986316159
    情報公開日 2025年5月15日 次回更新予定日 2025年12月23日
    ケータイ用バーコード

    QRコード

    スマートフォンでこの物件を見る
    スマートフォンからもこの物件をご覧になれます。
    ※「-」と表示されている項目については、情報提供会社にご確認ください。

    クイックお問い合わせ

    ここから簡単にお問い合わせをすることができます。
    (SSLでの暗号化での送信を希望されるお客さまは こちら よりお問い合わせください)

    お問い合わせ内容(必須)
    物件のお問い合わせ理由(必須)
    お名前・ご担当者様名(必須) 姓  名 
    メールアドレス(必須)
    ※携帯電話のメールアドレスをご入力される方はこちらをご確認ください
    電話番号(必須)
    - -
    備考欄 希望条件、物件案内希望日、質問などがございましたらご記入ください。
    お問い合わせを行う前に「個人情報の取り扱いについて」を必ずお読みください。
    「個人情報の取り扱いについて」に同意いただいた場合は「上記にご同意の上 確認画面へ進む」のボタンをクリックしてください。

    個人情報の取り扱いについて

    皆さまが送付された個人情報はアットホーム(株)のサーバを経由し、お問い合わせ先の不動産会社にメールまたはFAXにて転送されるためアットホーム(株)にも保管されます。アットホーム(株)で保管された個人情報の取り扱いについては、【こちら】をご覧ください。
    また、本画面でご記入いただいた個人情報は、お問い合わせ先の不動産会社でも保管します。 お問い合わせ先の不動産会社が保管する個人情報の取り扱いについては、不動産会社に直接お問い合わせください。

    情報提供会社

    情報提供会社

    日生不動産(株)

    新潟県知事免許(8)第3758号

    交通:
    JR信越本線/新潟駅 【バス】10分 上近江
    新潟県新潟市中央区上近江4丁目1-3 日生不動産本社ビル
    TEL:
    025-285-1090
    FAX:
    025-285-1099
    所属団体:
    (公社)新潟県宅地建物取引業協会会員
    (公社)首都圏不動産公正取引協議会加盟

    取引態様:仲介

    • 会社情報
    • 00422213
    スマートフォンで
    この不動産会社を見る
    QRコード
    • お問い合わせ
    • 提携サイト等より掲載されている物件情報につきましては、不動産会社詳細情報にリンクされていないものがあります。
    • 物件に関するお問合せは、物件詳細ページの「情報提供会社」に表示されている不動産会社へ直接お願いいたします。
    • 間取図は、現況を優先させていただきます。
    • 映像は物件の一部を撮影したものです。物件の契約にあたっての最終判断はご自身の判断に基づいて行ってください。
    • 仲介手数料について仲介手数料

    アットホームは物件情報の適正化に努めております。 内容に誤りがある場合にはこちらへご連絡ください。


    物件画像: