賃貸や不動産はアットホーム-賃貸マンション・賃貸物件・不動産なら アットホーム

宮城県仙台市青葉区一番町1丁目(仙台駅)の貸事務所:物件詳細

  • 物件詳細
  • 情報の見方
  • 印刷用画面
交通
所在地
駅徒歩 賃料
管理費等
敷金/保証金
礼金
使用部分面積
坪数/坪単価
物件種目
築年月

JR東北本線/仙台

宮城県仙台市青葉区一番町1丁目

10分

42.5799万円

5ヶ月 / なし

なし

150.54m²

45.53坪/0.9351万円

貸事務所

1991年2月(築34年10ヶ月)

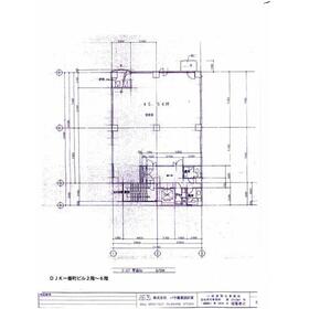
間取図

間取図

<
その他の画像
>
    • お問い合わせ
    交通

    JR東北本線 仙台駅 徒歩10分

    所在地 宮城県仙台市青葉区一番町1丁目
    物件種目 貸事務所
    賃料 42.5799万円 管理費等
    敷金 / 保証金 5ヶ月 / なし 礼金 なし
    敷引 坪単価 0.9351万円
    保証金償却 権利金
    造作譲渡 その他一時金
    維持費等 保険等
    使用部分面積 150.54m² 坪数 45.53坪
    築年月 1991年2月(築34年10ヶ月) 階建 / 階 6階建 / 6階
    駐車場 有 33,000円/月
    空き無し。敷金1ヶ月
    バイク置き場
    駐輪場 土地面積
    接道状況 用途地域
    間取り 建物構造 鉄骨造
    建物名・部屋番号 DJK一番町ビル 6階
    リフォーム履歴
    リノベーション履歴
    特記事項 土日・祝日利用可、OAフロア、飲食店不可、1フロア1テナント、最上階
    備考
    賃貸保証等:加入要(初回賃料、駐車料の1ヶ月分かかります。更新時は10%かかります。)
    管理形態/管理員の勤務形態:-/-
    一番町1丁目の落ち着いた雰囲気のお洒落ビルです。諸条件ご相談下さい。室内の写真は違う階の写真です。(イメージとして)
    エネルギー消費性能
    断熱性能
    目安光熱費
    バス・トイレ 共用部分に男女別トイレあり
    キッチン
    設備・サービス エアコン
    その他 エレベーター
    契約期間 2年 条件等
    引渡可能時期 相談 現況 使用中
    更新料 物件番号 6986012321
    情報公開日 2025年4月18日 次回更新予定日 2025年11月13日
    ケータイ用バーコード

    QRコード

    スマートフォンでこの物件を見る
    スマートフォンからもこの物件をご覧になれます。
    ※「-」と表示されている項目については、情報提供会社にご確認ください。

    クイックお問い合わせ

    ここから簡単にお問い合わせをすることができます。
    (SSLでの暗号化での送信を希望されるお客さまは こちら よりお問い合わせください)

    お問い合わせ内容(必須)
    物件のお問い合わせ理由(必須)
    お名前・ご担当者様名(必須) 姓  名 
    メールアドレス(必須)
    ※携帯電話のメールアドレスをご入力される方はこちらをご確認ください
    電話番号(必須)
    - -
    備考欄 希望条件、物件案内希望日、質問などがございましたらご記入ください。
    お問い合わせを行う前に「個人情報の取り扱いについて」を必ずお読みください。
    「個人情報の取り扱いについて」に同意いただいた場合は「上記にご同意の上 確認画面へ進む」のボタンをクリックしてください。

    個人情報の取り扱いについて

    皆さまが送付された個人情報はアットホーム(株)のサーバを経由し、お問い合わせ先の不動産会社にメールまたはFAXにて転送されるためアットホーム(株)にも保管されます。アットホーム(株)で保管された個人情報の取り扱いについては、【こちら】をご覧ください。
    また、本画面でご記入いただいた個人情報は、お問い合わせ先の不動産会社でも保管します。 お問い合わせ先の不動産会社が保管する個人情報の取り扱いについては、不動産会社に直接お問い合わせください。

    情報提供会社

    情報提供会社

    (株)旭比野

    宮城県知事免許(7)第4165号

    交通:
    仙台市南北線/仙台駅 徒歩7分
    宮城県仙台市青葉区一番町2丁目2-11 TKビル 1階
    TEL:
    022-267-5571
    FAX:
    022-267-5582
    所属団体:
    (公社)全日本不動産協会会員
    東北地区不動産公正取引協議会加盟

    取引態様:仲介

    • 会社情報
    • 20001189
    スマートフォンで
    この不動産会社を見る
    QRコード
    • お問い合わせ
    • 提携サイト等より掲載されている物件情報につきましては、不動産会社詳細情報にリンクされていないものがあります。
    • 物件に関するお問合せは、物件詳細ページの「情報提供会社」に表示されている不動産会社へ直接お願いいたします。
    • 間取図は、現況を優先させていただきます。
    • 映像は物件の一部を撮影したものです。物件の契約にあたっての最終判断はご自身の判断に基づいて行ってください。
    • 仲介手数料について仲介手数料

    アットホームは物件情報の適正化に努めております。 内容に誤りがある場合にはこちらへご連絡ください。


    物件画像: