賃貸や不動産はアットホーム-賃貸マンション・賃貸物件・不動産なら アットホーム

愛知県名古屋市中区栄1丁目(伏見駅)の貸事務所:物件詳細

  • 物件詳細
  • 情報の見方
  • 印刷用画面
交通
所在地
駅徒歩 賃料
管理費等
敷金/保証金
礼金
使用部分面積
坪数/坪単価
物件種目
築年月

名古屋市鶴舞線/伏見

愛知県名古屋市中区栄1丁目

7分

要確認

要確認

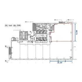
292.13m²

88.36坪/要確認

貸事務所

2013年5月(築12年10ヶ月)

おすすめコメント  スタッフ: 小川

伏見通沿いに位置するハイグレードオフィスビルで、ビル周辺には御園座や名古屋市科学館などの観光スポットがあります。

間取図

間取図

外観

外観

その他の画像
    • お問い合わせ
    交通

    名古屋市鶴舞線 伏見駅 徒歩7分

    その他の交通

    名古屋市鶴舞線 大須観音駅 徒歩7分

    名古屋市東山線 伏見駅 徒歩6分

    所在地 愛知県名古屋市中区栄1丁目
    物件種目 貸事務所
    賃料 要確認 管理費等 要確認
    敷金 / 保証金 要確認 礼金 要確認
    敷引 要確認 坪単価 要確認
    保証金償却 要確認 権利金
    造作譲渡 その他一時金
    維持費等 保険等
    使用部分面積 292.13m² 坪数 88.36坪
    築年月 2013年5月(築12年10ヶ月) 階建 / 階 地上14階地下1階建 / 10階
    駐車場 バイク置き場
    駐輪場 土地面積
    接道状況 用途地域
    間取り 建物構造 鉄骨造
    アピールポイント お問合せやご質問は、052-959-2888(株式会社オフィッコス)
    原則30分以内に確認をして資料をお送りさせていただきます。
    お気軽にお問合せくださいませ。
    建物名・部屋番号 富士フイルム名古屋ビル 10F 88.37坪
    リフォーム履歴
    リノベーション履歴
    特記事項 24時間利用可、土曜日利用可、土日・祝日利用可、OAフロア、24時間セキュリティー、天井高2.5M以上、IT重説対応物件
    備考
    管理形態/管理員の勤務形態:-/-
    IT重説対応物件
    募集条件については、ネット上では非公開となっておりますのでお気軽に弊社まで
    ご連絡ください
    エネルギー消費性能
    断熱性能
    目安光熱費
    バス・トイレ 共用部分にトイレあり
    キッチン
    設備・サービス 個別空調、エアコン、暖房、冷房、インターネット対応、光ファイバー
    その他 エレベーター2基以上
    契約期間 2年 条件等 定期借家定期借家
    引渡可能時期 即時 現況
    更新料 要確認 物件番号 6985713666
    情報公開日 2025年10月28日 次回更新予定日 2026年2月20日
    ケータイ用バーコード

    QRコード

    スマートフォンでこの物件を見る
    スマートフォンからもこの物件をご覧になれます。
    ※「-」と表示されている項目については、情報提供会社にご確認ください。

    この物件の周辺情報

    周辺施設 信金中央金庫名古屋支店
    距離 109m
    周辺施設 ファミリーマート栄一丁目店
    距離 126m
    周辺施設 中消防署
    距離 190m
    周辺施設 名古屋市中区中消防署本署
    距離 186m
    周辺施設 秋月パーキング
    距離 156m
    周辺施設 セブンイレブン名古屋栄1御園通店
    距離 408m
    周辺施設 ドコモショップ伏見店
    距離 160m
    周辺施設 名古屋商工会議所内郵便局
    距離 300m

    クイックお問い合わせ

    ここから簡単にお問い合わせをすることができます。
    (SSLでの暗号化での送信を希望されるお客さまは こちら よりお問い合わせください)

    お問い合わせ内容(必須)
    物件のお問い合わせ理由(必須)
    お名前・ご担当者様名(必須) 姓  名 
    メールアドレス(必須)
    ※携帯電話のメールアドレスをご入力される方はこちらをご確認ください
    電話番号(必須)
    - -
    備考欄 希望条件、物件案内希望日、質問などがございましたらご記入ください。
    お問い合わせを行う前に「個人情報の取り扱いについて」を必ずお読みください。
    「個人情報の取り扱いについて」に同意いただいた場合は「上記にご同意の上 確認画面へ進む」のボタンをクリックしてください。

    個人情報の取り扱いについて

    皆さまが送付された個人情報はアットホーム(株)のサーバを経由し、お問い合わせ先の不動産会社にメールまたはFAXにて転送されるためアットホーム(株)にも保管されます。アットホーム(株)で保管された個人情報の取り扱いについては、【こちら】をご覧ください。
    また、本画面でご記入いただいた個人情報は、お問い合わせ先の不動産会社でも保管します。 お問い合わせ先の不動産会社が保管する個人情報の取り扱いについては、不動産会社に直接お問い合わせください。

    情報提供会社

    情報提供会社

    (株)オフィッコス

    愛知県知事免許(3)第22161号

    交通:
    名古屋市名城線/久屋大通駅 徒歩2分
    愛知県名古屋市中区丸の内3丁目18-1 三晃丸の内ビル7F
    TEL:
    052-959-2888
    FAX:
    052-959-2890
    所属団体:
    (公社)全日本不動産協会会員
    東海不動産公正取引協議会加盟

    取引態様:仲介

    • 会社情報
    • 40403414
    スマートフォンで
    この不動産会社を見る
    QRコード
    • お問い合わせ
    • 提携サイト等より掲載されている物件情報につきましては、不動産会社詳細情報にリンクされていないものがあります。
    • 物件に関するお問合せは、物件詳細ページの「情報提供会社」に表示されている不動産会社へ直接お願いいたします。
    • 間取図は、現況を優先させていただきます。
    • 映像は物件の一部を撮影したものです。物件の契約にあたっての最終判断はご自身の判断に基づいて行ってください。
    • 仲介手数料について仲介手数料

    アットホームは物件情報の適正化に努めております。 内容に誤りがある場合にはこちらへご連絡ください。


    物件画像: