賃貸や不動産はアットホーム-賃貸マンション・賃貸物件・不動産なら アットホーム

岩手県盛岡市盛岡駅前通(盛岡駅)の貸事務所:物件詳細

  • 物件詳細
  • 情報の見方
  • 印刷用画面
交通
所在地
駅徒歩 賃料
管理費等
敷金/保証金
礼金
使用部分面積
坪数/坪単価
物件種目
築年月

東北新幹線/盛岡

岩手県盛岡市盛岡駅前通

3分

7.7万円

7,700円

2ヶ月 / なし

1ヶ月

37.84m²

11.44坪/0.6727万円

貸事務所

1994年9月(築31年8ヶ月)

おすすめコメント

セコム導入費用オーナー負担!盛岡駅目の前の好立地!テナント利用相談可!

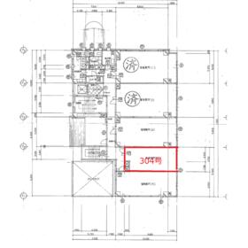
間取図

間取図

外観

外観

その他の画像
    • お問い合わせ
    交通

    東北新幹線 盛岡駅 徒歩3分

    所在地 岩手県盛岡市盛岡駅前通
    物件種目 貸事務所
    賃料 7.7万円 管理費等 7,700円
    敷金 / 保証金 2ヶ月 / なし 礼金 1ヶ月
    敷引 坪単価 0.6727万円
    保証金償却 権利金
    造作譲渡 その他一時金 なし
    維持費等 保険等
    使用部分面積 37.84m² 坪数 11.44坪
    築年月 1994年9月(築31年8ヶ月) 階建 / 階 8階建 / 3階
    駐車場 有 22,000円/月 バイク置き場
    駐輪場 土地面積
    接道状況 用途地域
    間取り 建物構造 RC
    アピールポイント セコム導入済みオフィス!
    建物名・部屋番号 第六甚ビル 3F 304
    リフォーム履歴
    リノベーション履歴
    特記事項 スケルトン、24時間利用可、土曜日利用可、土日・祝日利用可、飲食店不可、駐車場2台分、駐車場3台分以上、24時間セキュリティー
    備考
    管理形態/管理員の勤務形態:-/-
    トイレ(男女別)、給湯室(台所)は共用となります。駐輪場あり。
    駐車場機械式 高さ制限等あり。テナント利用相談可。

    エネルギー消費性能
    断熱性能
    目安光熱費
    バス・トイレ 共用部分にトイレあり
    キッチン
    設備・サービス 個別空調、電動シャッター、給湯、都市ガス、暖房、冷房、火災警報器(報知機)、光ファイバー、ケーブルTV
    その他 車寄せスペース、エレベーター
    契約期間 2年 条件等
    引渡可能時期 即時 現況
    更新料 なし 物件番号 6984564875
    情報公開日 2025年5月28日 次回更新予定日 2026年4月16日
    ケータイ用バーコード

    QRコード

    スマートフォンでこの物件を見る
    スマートフォンからもこの物件をご覧になれます。
    ※「-」と表示されている項目については、情報提供会社にご確認ください。

    この物件の周辺情報

    周辺施設 セブンイレブン盛岡駅前通店
    距離 87m
    周辺施設 駅前郵便局
    距離 133m
    周辺施設 フェザン
    距離 296m
    周辺施設 市立桜城小学校
    距離 600m
    周辺施設 クロステラス盛岡
    距離 459m
    周辺施設 岩手銀行
    距離 579m
    周辺施設 七十七銀行
    距離 557m
    周辺施設 MOSS
    距離 657m

    クイックお問い合わせ

    ここから簡単にお問い合わせをすることができます。
    (SSLでの暗号化での送信を希望されるお客さまは こちら よりお問い合わせください)

    お問い合わせ内容(必須)
    物件のお問い合わせ理由(必須)
    お名前・ご担当者様名(必須) 姓  名 
    メールアドレス(必須)
    ※携帯電話のメールアドレスをご入力される方はこちらをご確認ください
    電話番号(必須)
    - -
    備考欄 希望条件、物件案内希望日、質問などがございましたらご記入ください。
    お問い合わせを行う前に「個人情報の取り扱いについて」を必ずお読みください。
    「個人情報の取り扱いについて」に同意いただいた場合は「上記にご同意の上 確認画面へ進む」のボタンをクリックしてください。

    個人情報の取り扱いについて

    皆さまが送付された個人情報はアットホーム(株)のサーバを経由し、お問い合わせ先の不動産会社にメールまたはFAXにて転送されるためアットホーム(株)にも保管されます。アットホーム(株)で保管された個人情報の取り扱いについては、【こちら】をご覧ください。
    また、本画面でご記入いただいた個人情報は、お問い合わせ先の不動産会社でも保管します。 お問い合わせ先の不動産会社が保管する個人情報の取り扱いについては、不動産会社に直接お問い合わせください。

    情報提供会社

    情報提供会社

    昭和土地建物(株)

    岩手県知事免許(12)第1107号

    交通:
    JR東北本線/盛岡駅 徒歩3分
    岩手県盛岡市盛岡駅前通3-53 
    TEL:
    019-622-2034
    FAX:
    019-622-5600
    所属団体:
    (一社)岩手県宅地建物取引業協会会員
    東北地区不動産公正取引協議会加盟

    取引態様:貸主

    • 会社情報
    • 20003028
    スマートフォンで
    この不動産会社を見る
    QRコード
    • お問い合わせ
    • 提携サイト等より掲載されている物件情報につきましては、不動産会社詳細情報にリンクされていないものがあります。
    • 物件に関するお問合せは、物件詳細ページの「情報提供会社」に表示されている不動産会社へ直接お願いいたします。
    • 間取図は、現況を優先させていただきます。
    • 映像は物件の一部を撮影したものです。物件の契約にあたっての最終判断はご自身の判断に基づいて行ってください。
    • 仲介手数料について仲介手数料

    アットホームは物件情報の適正化に努めております。 内容に誤りがある場合にはこちらへご連絡ください。


    物件画像: