賃貸や不動産はアットホーム-賃貸マンション・賃貸物件・不動産なら アットホーム

香川県高松市伏石町(伏石駅)の貸事務所:物件詳細

  • 物件詳細
  • 情報の見方
  • 印刷用画面
交通
所在地
駅徒歩 賃料
管理費等
敷金/保証金
礼金
使用部分面積
坪数/坪単価
物件種目
築年月

高松琴平電鉄琴平線/伏石

香川県高松市伏石町

11分

26.27万円

36,775円

6ヶ月 / なし

1ヶ月

157.88m²

47.75坪/0.5501万円

貸事務所

2003年9月(築22年3ヶ月)

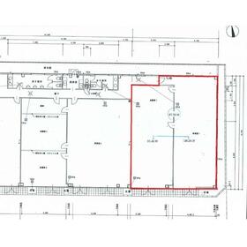
間取図

間取図

外観

外観

その他の画像
    • お問い合わせ
    交通

    高松琴平電鉄琴平線 伏石駅 徒歩11分

    所在地 香川県高松市伏石町
    物件種目 貸事務所
    賃料 26.27万円 管理費等 36,775円
    敷金 / 保証金 6ヶ月 / なし 礼金 1ヶ月
    敷引 坪単価 0.5501万円
    保証金償却 権利金
    造作譲渡 その他一時金 なし
    維持費等 冷暖房設備費:52,536円/月 保険等 要 借家人賠償保険
    使用部分面積 157.88m² 坪数 47.75坪
    築年月 2003年9月(築22年3ヶ月) 階建 / 階 1階建 / 1階
    駐車場 有 49,500円/月(空き9台)
    駐車場は9台契約必須となります。
    バイク置き場 有 無料
    駐輪場 有 無料 土地面積
    接道状況 南 7.0m 公道 ・ 東 4.0m 公道 ・ 二方道路 用途地域 2種中高
    間取り 建物構造 鉄骨造
    アピールポイント サンフラワー通りより車で約1分。国道11号線も至近。事務所をお探しの方いかがでしょうか。
    建物名・部屋番号 丸忠第Ⅴビル 01号室
    リフォーム履歴
    リノベーション履歴
    特記事項 24時間利用可、土日・祝日利用可、駐車場3台分以上
    備考
    管理形態/管理員の勤務形態:-/-
    主要採光面:南向き
    共益費には共用部の電気代及び防犯灯代。トイレットペーパーの補充及びトイレ清掃が含まれます。冷暖房設備費として毎月52,536円必要となります。
    エネルギー消費性能
    断熱性能
    目安光熱費
    バス・トイレ 共用部分に男女別トイレあり
    キッチン
    設備・サービス エアコン2台以上、給湯、プロパンガス、ビルトインエアコン、インターネット対応
    その他
    契約期間 2年 条件等
    引渡可能時期 相談 現況
    更新料 物件番号 6984239711
    情報公開日 2024年11月22日 次回更新予定日 2025年11月14日
    ケータイ用バーコード

    QRコード

    スマートフォンでこの物件を見る
    スマートフォンからもこの物件をご覧になれます。
    ※「-」と表示されている項目については、情報提供会社にご確認ください。

    この物件の周辺情報

    周辺施設 デイリーヤマザキ高松伏石町南店
    距離 259m
    周辺施設 Audi高松
    距離 328m

    クイックお問い合わせ

    ここから簡単にお問い合わせをすることができます。
    (SSLでの暗号化での送信を希望されるお客さまは こちら よりお問い合わせください)

    お問い合わせ内容(必須)
    物件のお問い合わせ理由(必須)
    お名前・ご担当者様名(必須) 姓  名 
    メールアドレス(必須)
    ※携帯電話のメールアドレスをご入力される方はこちらをご確認ください
    電話番号(必須)
    - -
    備考欄 希望条件、物件案内希望日、質問などがございましたらご記入ください。
    お問い合わせを行う前に「個人情報の取り扱いについて」を必ずお読みください。
    「個人情報の取り扱いについて」に同意いただいた場合は「上記にご同意の上 確認画面へ進む」のボタンをクリックしてください。

    個人情報の取り扱いについて

    皆さまが送付された個人情報はアットホーム(株)のサーバを経由し、お問い合わせ先の不動産会社にメールまたはFAXにて転送されるためアットホーム(株)にも保管されます。アットホーム(株)で保管された個人情報の取り扱いについては、【こちら】をご覧ください。
    また、本画面でご記入いただいた個人情報は、お問い合わせ先の不動産会社でも保管します。 お問い合わせ先の不動産会社が保管する個人情報の取り扱いについては、不動産会社に直接お問い合わせください。

    情報提供会社

    情報提供会社

    丸吉不動産(株)

    香川県知事免許(6)第3593号

    交通:
    【バス】 ことでんバスさこ
    香川県高松市林町2535番地14 
    TEL:
    087-869-3383
    FAX:
    087-869-0811
    所属団体:
    (公社)香川県宅地建物取引業協会会員
    四国地区不動産公正取引協議会加盟

    取引態様:仲介

    • 会社情報
    • 50800553
    スマートフォンで
    この不動産会社を見る
    QRコード
    • お問い合わせ
    • 提携サイト等より掲載されている物件情報につきましては、不動産会社詳細情報にリンクされていないものがあります。
    • 物件に関するお問合せは、物件詳細ページの「情報提供会社」に表示されている不動産会社へ直接お願いいたします。
    • 間取図は、現況を優先させていただきます。
    • 映像は物件の一部を撮影したものです。物件の契約にあたっての最終判断はご自身の判断に基づいて行ってください。
    • 仲介手数料について仲介手数料

    アットホームは物件情報の適正化に努めております。 内容に誤りがある場合にはこちらへご連絡ください。


    物件画像: