賃貸や不動産はアットホーム-賃貸マンション・賃貸物件・不動産なら アットホーム

秋田県秋田市中通4丁目(秋田駅)の貸事務所:物件詳細

  • 物件詳細
  • 情報の見方
  • 印刷用画面
交通
所在地
駅徒歩 賃料
管理費等
敷金/保証金
礼金
使用部分面積
坪数/坪単価
物件種目
築年月

JR奥羽本線/秋田

秋田県秋田市中通4丁目

13分

6.6万円

3ヶ月 / なし

なし

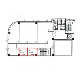
12.17m²

3.68坪/1.7928万円

貸事務所

1993年6月(築32年7ヶ月)

間取図

間取図

外観

外観

その他の画像
  • 外観
  • 共有部分
  • 共有部分
  • 共有部分
  • 共有部分
  • 共有部分
  • 共有部分
    • お問い合わせ
    交通

    JR奥羽本線 秋田駅 徒歩13分

    その他の交通

    秋田新幹線 秋田駅 徒歩13分

    所在地 秋田県秋田市中通4丁目
    物件種目 貸事務所
    賃料 6.6万円 管理費等
    敷金 / 保証金 3ヶ月 / なし 礼金 なし
    敷引 坪単価 1.7928万円
    保証金償却 権利金
    造作譲渡 その他一時金
    維持費等 保険等 要 火災
    使用部分面積 12.17m² 坪数 3.68坪
    築年月 1993年6月(築32年7ヶ月) 階建 / 階 地上6階地下1階建 / 5階
    駐車場 有 16,500円/月
    立体駐車場サイズ 全長5050mm、全幅1850mm、全高1550mm、重量2000kg
    バイク置き場
    駐輪場 土地面積
    接道状況 用途地域 商業地域
    間取り 建物構造 鉄骨造
    建物名・部屋番号 秋田スクエアビル 5G
    リフォーム履歴 ■共用部の大規模修繕工事:2015年6月
    共用部大規模改修工事済
    ※実施年月は最も古い履歴を表示
    リノベーション履歴
    特記事項 土日・祝日利用可、耐震構造(新耐震基準)、天井高2.5M以上
    備考
    管理形態/管理員の勤務形態:-/-
    エネルギー消費性能
    断熱性能
    目安光熱費
    バス・トイレ 共用部分に男女別トイレあり
    キッチン
    設備・サービス 給湯、ビルトインエアコン
    その他 施設内喫煙所、エレベーター
    契約期間 2年 条件等
    引渡可能時期 即時 現況
    更新料 物件番号 6982501048
    情報公開日 2025年9月18日 次回更新予定日 2025年12月30日
    ケータイ用バーコード

    QRコード

    スマートフォンでこの物件を見る
    スマートフォンからもこの物件をご覧になれます。
    ※「-」と表示されている項目については、情報提供会社にご確認ください。

    この物件の周辺情報

    周辺施設 セブンイレブン秋田仲小路店
    距離 182m
    周辺施設 エリアなかいち
    距離 128m
    周辺施設 トヨタレンタリース秋田秋田駅前店
    距離 290m
    周辺施設 社会医療法人明和会中通総合病院
    距離 744m
    周辺施設 ゆうちょ銀行秋田店
    距離 321m
    周辺施設 北都銀行秋田駅前支店
    距離 331m
    周辺施設 七十七銀行秋田支店
    距離 329m
    周辺施設 秋田中央警察署
    距離 576m

    クイックお問い合わせ

    ここから簡単にお問い合わせをすることができます。
    (SSLでの暗号化での送信を希望されるお客さまは こちら よりお問い合わせください)

    お問い合わせ内容(必須)
    物件のお問い合わせ理由(必須)
    お名前・ご担当者様名(必須) 姓  名 
    メールアドレス(必須)
    ※携帯電話のメールアドレスをご入力される方はこちらをご確認ください
    電話番号(必須)
    - -
    備考欄 希望条件、物件案内希望日、質問などがございましたらご記入ください。
    お問い合わせを行う前に「個人情報の取り扱いについて」を必ずお読みください。
    「個人情報の取り扱いについて」に同意いただいた場合は「上記にご同意の上 確認画面へ進む」のボタンをクリックしてください。

    個人情報の取り扱いについて

    皆さまが送付された個人情報はアットホーム(株)のサーバを経由し、お問い合わせ先の不動産会社にメールまたはFAXにて転送されるためアットホーム(株)にも保管されます。アットホーム(株)で保管された個人情報の取り扱いについては、【こちら】をご覧ください。
    また、本画面でご記入いただいた個人情報は、お問い合わせ先の不動産会社でも保管します。 お問い合わせ先の不動産会社が保管する個人情報の取り扱いについては、不動産会社に直接お問い合わせください。

    情報提供会社

    情報提供会社

    クレストシティホーム(株)

    秋田県知事免許(4)第2057号

    交通:
    JR奥羽本線/秋田駅 徒歩21分 【バス】10分 旭北栄町 停歩2分
    秋田県秋田市大町1丁目7-5 
    TEL:
    018-874-8454
    FAX:
    018-874-8464
    所属団体:
    (公社)秋田県宅地建物取引業協会会員
    東北地区不動産公正取引協議会加盟

    取引態様:仲介

    • 会社情報
    • 20002634
    スマートフォンで
    この不動産会社を見る
    QRコード
    • お問い合わせ
    • 提携サイト等より掲載されている物件情報につきましては、不動産会社詳細情報にリンクされていないものがあります。
    • 物件に関するお問合せは、物件詳細ページの「情報提供会社」に表示されている不動産会社へ直接お願いいたします。
    • 間取図は、現況を優先させていただきます。
    • 映像は物件の一部を撮影したものです。物件の契約にあたっての最終判断はご自身の判断に基づいて行ってください。
    • 仲介手数料について仲介手数料

    アットホームは物件情報の適正化に努めております。 内容に誤りがある場合にはこちらへご連絡ください。


    物件画像: