賃貸や不動産はアットホーム-賃貸マンション・賃貸物件・不動産なら アットホーム

大阪府大阪市中央区谷町1丁目(天満橋駅)の貸事務所:物件詳細

  • 物件詳細
  • 情報の見方
  • 印刷用画面
交通
所在地
駅徒歩 賃料
管理費等
敷金/保証金
礼金
使用部分面積
坪数/坪単価
物件種目
築年月

地下鉄谷町線/天満橋

大阪府大阪市中央区谷町1丁目

1分

要確認

要確認

151.59m²

45.85坪/要確認

貸事務所

1998年7月(築27年10ヶ月)

おすすめコメント  スタッフ: 慈幸 大志

近畿税理士会館・大同生命ビルは、天満橋駅から徒歩1分の賃貸オフィスビルです。地下鉄谷町線、天満橋駅の出入口直上です。谷町筋に面した角ビルで、重厚感ある造りで存在感があります。

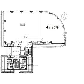
間取図

間取図

外観

外観

その他の画像
  • コンビニ
  • 郵便局
    • お問い合わせ
    交通

    地下鉄谷町線 天満橋駅 徒歩1分

    その他の交通

    京阪本線 天満橋駅 徒歩1分

    京阪中之島線 天満橋駅 徒歩1分

    所在地 大阪府大阪市中央区谷町1丁目
    物件種目 貸事務所
    賃料 要確認 管理費等 要確認
    敷金 / 保証金 要確認 礼金 要確認
    敷引 要確認 坪単価 要確認
    保証金償却 要確認 権利金
    造作譲渡 その他一時金
    維持費等 保険等
    使用部分面積 151.59m² 坪数 45.85坪
    築年月 1998年7月(築27年10ヶ月) 階建 / 階 地上11階地下1階建 / 9階
    駐車場 バイク置き場
    駐輪場 土地面積
    接道状況 用途地域
    間取り 建物構造 鉄骨造
    建物名・部屋番号 近畿税理士会館・大同生命ビル 9F 45.86坪
    リフォーム履歴
    リノベーション履歴
    特記事項 24時間利用可、耐震構造(新耐震基準)
    備考
    管理形態/管理員の勤務形態:-/-
    エネルギー消費性能
    断熱性能
    目安光熱費
    バス・トイレ 共用部分に男女別トイレあり
    キッチン
    設備・サービス 個別空調、暖房、冷房
    その他 エレベーター2基以上、エレベーター
    契約期間 要確認 条件等
    引渡可能時期 即時 現況
    更新料 要確認 物件番号 6981940306
    情報公開日 2025年12月8日 次回更新予定日 2026年4月10日
    ケータイ用バーコード

    QRコード

    スマートフォンでこの物件を見る
    スマートフォンからもこの物件をご覧になれます。
    ※「-」と表示されている項目については、情報提供会社にご確認ください。

    この物件の周辺情報

    周辺施設 タカキュー京阪シティモール店
    距離 243m
    周辺施設 無印良品天満橋京阪シティモール店
    距離 249m
    周辺施設 成城石井京阪シティモール店
    距離 249m
    周辺施設 京阪シティモール
    距離 321m
    周辺施設 ローソンOSL天満橋駅店
    距離 35m
    周辺施設 ココカラファイン天満橋店
    距離 195m
    周辺施設 (株)ジュンク堂書店天満橋店
    距離 243m
    周辺施設 マーチャンダイズビル内郵便局
    距離 334m

    クイックお問い合わせ

    ここから簡単にお問い合わせをすることができます。
    (SSLでの暗号化での送信を希望されるお客さまは こちら よりお問い合わせください)

    お問い合わせ内容(必須)
    物件のお問い合わせ理由(必須)
    お名前・ご担当者様名(必須) 姓  名 
    メールアドレス(必須)
    ※携帯電話のメールアドレスをご入力される方はこちらをご確認ください
    電話番号(必須)
    - -
    備考欄 希望条件、物件案内希望日、質問などがございましたらご記入ください。
    お問い合わせを行う前に「個人情報の取り扱いについて」を必ずお読みください。
    「個人情報の取り扱いについて」に同意いただいた場合は「上記にご同意の上 確認画面へ進む」のボタンをクリックしてください。

    個人情報の取り扱いについて

    皆さまが送付された個人情報はアットホーム(株)のサーバを経由し、お問い合わせ先の不動産会社にメールまたはFAXにて転送されるためアットホーム(株)にも保管されます。アットホーム(株)で保管された個人情報の取り扱いについては、【こちら】をご覧ください。
    また、本画面でご記入いただいた個人情報は、お問い合わせ先の不動産会社でも保管します。 お問い合わせ先の不動産会社が保管する個人情報の取り扱いについては、不動産会社に直接お問い合わせください。

    情報提供会社

    情報提供会社

    (株)クイックコンサルティング 大阪支店

    国土交通大臣免許(4)第7938号

    交通:
    地下鉄四つ橋線/本町駅 徒歩1分
    大阪府大阪市西区靱本町1丁目11-7 信濃橋三井ビル11F
    TEL:
    06-6147-9791
    FAX:
    06-6147-9792
    所属団体:
    (公社)全日本不動産協会会員
    (公社)近畿地区不動産公正取引協議会加盟

    取引態様:仲介

    • 会社情報
    • 50108170
    スマートフォンで
    この不動産会社を見る
    QRコード
    • お問い合わせ
    • 提携サイト等より掲載されている物件情報につきましては、不動産会社詳細情報にリンクされていないものがあります。
    • 物件に関するお問合せは、物件詳細ページの「情報提供会社」に表示されている不動産会社へ直接お願いいたします。
    • 間取図は、現況を優先させていただきます。
    • 映像は物件の一部を撮影したものです。物件の契約にあたっての最終判断はご自身の判断に基づいて行ってください。
    • 仲介手数料について仲介手数料

    アットホームは物件情報の適正化に努めております。 内容に誤りがある場合にはこちらへご連絡ください。


    物件画像: