賃貸や不動産はアットホーム-賃貸マンション・賃貸物件・不動産なら アットホーム

愛知県名古屋市中村区名駅南3丁目(大須観音駅)の貸事務所:物件詳細

  • 物件詳細
  • 情報の見方
  • 印刷用画面
交通
所在地
駅徒歩 賃料
管理費等
敷金/保証金
礼金
使用部分面積
坪数/坪単価
物件種目
築年月

名古屋市鶴舞線/大須観音

愛知県名古屋市中村区名駅南3丁目

11分

22.55万円

6ヶ月 / なし

なし

79.17m²

23.94坪/0.9416万円

貸事務所

1989年4月(築36年9ヶ月)

おすすめコメント

入居者様に限り、2階会議室を無料で提供しております。

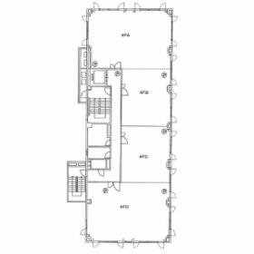
間取図

間取図

外観

外観

その他の画像
  • エントランス
  • 室内
  • その他
  • 設備
    • お問い合わせ
    交通

    名古屋市鶴舞線 大須観音駅 徒歩11分

    その他の交通

    東海道本線 名古屋駅 徒歩18分

    あおなみ線 ささしまライブ駅 徒歩12分

    所在地 愛知県名古屋市中村区名駅南3丁目
    物件種目 貸事務所
    賃料 22.55万円 管理費等
    敷金 / 保証金 6ヶ月 / なし 礼金 なし
    敷引 坪単価 0.9416万円
    保証金償却 権利金
    造作譲渡 その他一時金
    維持費等 保険等
    使用部分面積 79.17m² 坪数 23.94坪
    築年月 1989年4月(築36年9ヶ月) 階建 / 階 10階建 / 4階
    駐車場 近有 22,000円/月(空き1台) バイク置き場
    駐輪場 有 無料 土地面積
    接道状況 用途地域
    間取り 建物構造 鉄骨造
    アピールポイント 入居者様に限り、2階会議室を無料で提供しております。
    建物名・部屋番号 名駅ユタカビル
    リフォーム履歴
    リノベーション履歴
    特記事項 角部屋
    備考
    賃貸保証等:加入要(4c’s(フォーシーズ) 初回委託料賃料及び管理費1ヶ月相当分)
    管理形態/管理員の勤務形態:-/-
    施設内会議室あり(無料):入居者様に限り、2階会議室を無料で提供しております。
    エネルギー消費性能
    断熱性能
    目安光熱費
    バス・トイレ 共用部分に男女別トイレあり
    キッチン
    設備・サービス 個別空調、ビルトインエアコン、インターネット対応
    その他 エレベーター
    契約期間 2年 条件等
    引渡可能時期 相談 現況 居住中
    更新料 物件番号 6980681882
    情報公開日 2025年12月1日 次回更新予定日 2025年12月15日
    ケータイ用バーコード

    QRコード

    スマートフォンでこの物件を見る
    スマートフォンからもこの物件をご覧になれます。
    ※「-」と表示されている項目については、情報提供会社にご確認ください。

    この物件の周辺情報

    周辺施設 MEGAドン・キホーテUNY納屋橋店
    距離 804m
    周辺施設 ローソン中村水主町店
    距離 176m
    周辺施設 かっぱ寿司水主町店
    距離 668m
    周辺施設 和食さと水主町店
    距離 716m
    周辺施設 バーミヤン水主町店
    距離 710m
    周辺施設 エディオン名古屋本店
    距離 312m
    周辺施設 名古屋水主町郵便局
    距離 674m
    周辺施設 三菱UFJ銀行柳橋支店
    距離 819m

    クイックお問い合わせ

    ここから簡単にお問い合わせをすることができます。
    (SSLでの暗号化での送信を希望されるお客さまは こちら よりお問い合わせください)

    お問い合わせ内容(必須)
    物件のお問い合わせ理由(必須)
    お名前・ご担当者様名(必須) 姓  名 
    メールアドレス(必須)
    ※携帯電話のメールアドレスをご入力される方はこちらをご確認ください
    電話番号(必須)
    - -
    備考欄 希望条件、物件案内希望日、質問などがございましたらご記入ください。
    お問い合わせを行う前に「個人情報の取り扱いについて」を必ずお読みください。
    「個人情報の取り扱いについて」に同意いただいた場合は「上記にご同意の上 確認画面へ進む」のボタンをクリックしてください。

    個人情報の取り扱いについて

    皆さまが送付された個人情報はアットホーム(株)のサーバを経由し、お問い合わせ先の不動産会社にメールまたはFAXにて転送されるためアットホーム(株)にも保管されます。アットホーム(株)で保管された個人情報の取り扱いについては、【こちら】をご覧ください。
    また、本画面でご記入いただいた個人情報は、お問い合わせ先の不動産会社でも保管します。 お問い合わせ先の不動産会社が保管する個人情報の取り扱いについては、不動産会社に直接お問い合わせください。

    情報提供会社

    情報提供会社

    エイブルネットワーク大須店 野村商事(株)

    愛知県知事免許(1)第25541号

    交通:
    名古屋市鶴舞線/大須観音駅 徒歩1分
    愛知県名古屋市中区大須2丁目22-31 大須SHビル2F
    TEL:
    052-433-2088
    FAX:
    052-433-2336
    所属団体:
    (公社)愛知県宅地建物取引業協会会員
    東海不動産公正取引協議会加盟

    取引態様:仲介

    • 会社情報
    • 40411053
    スマートフォンで
    この不動産会社を見る
    QRコード
    • お問い合わせ
    • 提携サイト等より掲載されている物件情報につきましては、不動産会社詳細情報にリンクされていないものがあります。
    • 物件に関するお問合せは、物件詳細ページの「情報提供会社」に表示されている不動産会社へ直接お願いいたします。
    • 間取図は、現況を優先させていただきます。
    • 映像は物件の一部を撮影したものです。物件の契約にあたっての最終判断はご自身の判断に基づいて行ってください。
    • 仲介手数料について仲介手数料

    アットホームは物件情報の適正化に努めております。 内容に誤りがある場合にはこちらへご連絡ください。


    物件画像: