賃貸や不動産はアットホーム-賃貸マンション・賃貸物件・不動産なら アットホーム

秋田県秋田市御所野湯本5丁目(秋田駅)の貸事務所:物件詳細

  • 物件詳細
  • 情報の見方
  • 印刷用画面
交通
所在地
駅徒歩 賃料
管理費等
敷金/保証金
礼金
使用部分面積
坪数/坪単価
物件種目
築年月

JR奥羽本線/秋田
【バス】30分 御所野 停歩1400m

秋田県秋田市御所野湯本5丁目


47.2736万円

73,865円

1ヶ月 / なし

1ヶ月

177.60m²

53.72坪/0.88万円

貸事務所

2022年12月(築3年1ヶ月)

おすすめコメント

御所野の工業団地内の事務所物件です。秋田南インター・秋田空港インターが共に近く、交通・流通の利便性がとても高い場所です。建物内は綺麗に整備されており、共用部も気持ちよく利用できます。

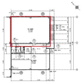
間取図

間取図

その他の画像
  • 室内
  • 室内
  • 室内
  • 共有部分
  • 共有部分
  • 共有部分
  • 共有部分
  • 共有部分
  • 共有部分
    • お問い合わせ
    交通

    JR奥羽本線 秋田駅
    【バス】 30分 御所野 停歩1400m

    所在地 秋田県秋田市御所野湯本5丁目
    物件種目 貸事務所
    賃料 47.2736万円 管理費等 73,865円
    敷金 / 保証金 1ヶ月 / なし 礼金 1ヶ月
    敷引 坪単価 0.88万円
    保証金償却 権利金
    造作譲渡 その他一時金 賃貸保証料[初回]:546,601円、仲介手数料:472,736円
    維持費等 賃貸保証料[年額]:54,660円/年 保険等
    使用部分面積 177.60m² 坪数 53.72坪
    築年月 2022年12月(築3年1ヶ月) 階建 / 階 2階建 / 2階
    駐車場 有 2,200円/月
    複数台可/普通車:2,200円、中型トラック:3,850円、大型トラック:6,600円
    バイク置き場
    駐輪場 土地面積 8,995.65m²(公簿)
    接道状況 用途地域 工業地域
    間取り 建物構造 鉄骨造
    アピールポイント 共用スペースに給湯室・男女別トイレ・会議室あり
    建物名・部屋番号 ヨコウンエステート秋田 B棟 2-1
    リフォーム履歴
    リノベーション履歴
    特記事項 24時間利用可、土日・祝日利用可、大型トラック搬入可、飲食店不可、角部屋、最上階、24時間換気システム
    備考
    賃貸保証等:加入要(アーク賃貸保証【保証料】初回:月額賃料総額×100%、年額:月額賃料総額×10%)
    管理形態/管理員の勤務形態:-/-
    施設内会議室あり:無料
    貸室面積:53.72坪 家賃:8,800円/坪、共益費:1,375円/坪(共用部の電気・ガス・水道・清掃代)、冬期割増:+5,500~6,600円(除雪費) 貸室の電気使用料は個別 更新料・更新事務手数料:共に新賃料の0.5ヶ月分
    エネルギー消費性能
    断熱性能
    目安光熱費
    バス・トイレ 共用部分に男女別トイレあり
    キッチン
    設備・サービス 個別空調、ビルトインエアコン
    その他
    契約期間 2年 条件等
    引渡可能時期 相談 現況
    仲介手数料 1ヶ月    
    更新料 新賃料 0.5ヶ月 物件番号 6979992622
    情報公開日 2023年9月6日 次回更新予定日 2025年12月25日
    ケータイ用バーコード

    QRコード

    スマートフォンでこの物件を見る
    スマートフォンからもこの物件をご覧になれます。
    ※「-」と表示されている項目については、情報提供会社にご確認ください。

    この物件の周辺情報

    周辺施設 御所野近隣公園
    距離 743m
    周辺施設 ファミリーマート秋田御所野湯本店
    距離 1136m
    周辺施設 秋田市立御所野小学校
    距離 1425m
    周辺施設 ジェイマルエー御所野店
    距離 1570m
    周辺施設 フレスポ御所野
    距離 1710m
    周辺施設 秋田テルサ
    距離 1657m
    周辺施設 TOHOシネマズ秋田
    距離 1845m
    周辺施設 イオンモール秋田
    距離 1879m

    クイックお問い合わせ

    ここから簡単にお問い合わせをすることができます。
    (SSLでの暗号化での送信を希望されるお客さまは こちら よりお問い合わせください)

    お問い合わせ内容(必須)
    物件のお問い合わせ理由(必須)
    お名前・ご担当者様名(必須) 姓  名 
    メールアドレス(必須)
    ※携帯電話のメールアドレスをご入力される方はこちらをご確認ください
    電話番号(必須)
    - -
    備考欄 希望条件、物件案内希望日、質問などがございましたらご記入ください。
    お問い合わせを行う前に「個人情報の取り扱いについて」を必ずお読みください。
    「個人情報の取り扱いについて」に同意いただいた場合は「上記にご同意の上 確認画面へ進む」のボタンをクリックしてください。

    個人情報の取り扱いについて

    皆さまが送付された個人情報はアットホーム(株)のサーバを経由し、お問い合わせ先の不動産会社にメールまたはFAXにて転送されるためアットホーム(株)にも保管されます。アットホーム(株)で保管された個人情報の取り扱いについては、【こちら】をご覧ください。
    また、本画面でご記入いただいた個人情報は、お問い合わせ先の不動産会社でも保管します。 お問い合わせ先の不動産会社が保管する個人情報の取り扱いについては、不動産会社に直接お問い合わせください。

    情報提供会社

    情報提供会社

    ユーアイ・トータルプランニング(株)

    秋田県知事免許(9)第1282号

    交通:
    JR奥羽本線/秋田駅 徒歩30分 【バス】 県庁第2庁舎前 停歩1分
    秋田県秋田市山王2丁目1-57 
    TEL:
    018-866-4333
    FAX:
    018-866-4353
    所属団体:
    (公社)秋田県宅地建物取引業協会会員
    東北地区不動産公正取引協議会加盟

    取引態様:仲介

    • 会社情報
    • 20002587
    スマートフォンで
    この不動産会社を見る
    QRコード
    • お問い合わせ
    • 提携サイト等より掲載されている物件情報につきましては、不動産会社詳細情報にリンクされていないものがあります。
    • 物件に関するお問合せは、物件詳細ページの「情報提供会社」に表示されている不動産会社へ直接お願いいたします。
    • 間取図は、現況を優先させていただきます。
    • 映像は物件の一部を撮影したものです。物件の契約にあたっての最終判断はご自身の判断に基づいて行ってください。
    • 仲介手数料について仲介手数料

    アットホームは物件情報の適正化に努めております。 内容に誤りがある場合にはこちらへご連絡ください。


    物件画像: