賃貸や不動産はアットホーム-賃貸マンション・賃貸物件・不動産なら アットホーム

東京都港区浜松町1丁目(大門駅)の貸事務所:物件詳細

  • 物件詳細
  • 情報の見方
  • 印刷用画面
交通
所在地
駅徒歩 賃料
管理費等
敷金/保証金
礼金
使用部分面積
坪数/坪単価
物件種目
築年月

都営大江戸線/大門

東京都港区浜松町1丁目

1分

18.15万円

46,200円

なし / 7ヶ月

なし

46.67m²

14.11坪/1.2857万円

貸事務所

1982年4月(築43年9ヶ月)

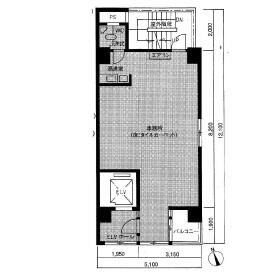
間取図

間取図

外観

外観

その他の画像
    • お問い合わせ
    交通

    都営大江戸線 大門駅 徒歩1分

    その他の交通

    JR山手線 浜松町駅 徒歩2分

    所在地 東京都港区浜松町1丁目
    物件種目 貸事務所
    賃料 18.15万円 管理費等 46,200円
    敷金 / 保証金 なし / 7ヶ月 礼金 なし
    敷引 1ヶ月 坪単価 1.2857万円
    保証金償却 権利金
    造作譲渡 その他一時金
    維持費等 保険等
    使用部分面積 46.67m² 坪数 14.11坪
    築年月 1982年4月(築43年9ヶ月) 階建 / 階 7階建 / 2階
    駐車場 バイク置き場
    駐輪場 土地面積
    接道状況 用途地域
    間取り 建物構造 RC
    アピールポイント 大門駅より徒歩1分
    建物名・部屋番号 コシバビル 2階
    リフォーム履歴
    リノベーション履歴
    特記事項 飲食店不可、1フロア1テナント、角部屋
    備考
    管理形態/管理員の勤務形態:-/-
    ワンフロアにワンテナントのコンパクトオフィス!
    1階には三菱UFJ銀行ATM
    大門駅より徒歩1分
    エネルギー消費性能
    断熱性能
    目安光熱費
    バス・トイレ 専有部分にトイレあり
    キッチン
    設備・サービス エアコン、インターネット対応
    その他
    契約期間 2年 条件等
    引渡可能時期 2025年12月下旬予定 現況 居住中
    仲介手数料 1.1ヶ月    
    更新料 新賃料 1ヶ月 物件番号 6979614923
    情報公開日 2025年11月20日 次回更新予定日 2025年12月19日
    ケータイ用バーコード

    QRコード

    スマートフォンでこの物件を見る
    スマートフォンからもこの物件をご覧になれます。
    ※「-」と表示されている項目については、情報提供会社にご確認ください。

    この物件の周辺情報

    周辺施設 まいばすけっと浜松町1丁目店
    距離 324m
    周辺施設 マルエツ浜松町二丁目店
    距離 453m
    周辺施設 ファミリーマート浜松町一丁目店
    距離 124m
    周辺施設 ドトールコーヒーショップ浜松町1丁目店
    距離 10m
    周辺施設 トモズ浜松町店
    距離 44m
    周辺施設 私立慶應義塾大学薬学部
    距離 470m
    周辺施設 東京慈恵会医科大学附属病院
    距離 1200m
    周辺施設 港浜松町郵便局
    距離 154m

    クイックお問い合わせ

    ここから簡単にお問い合わせをすることができます。
    (SSLでの暗号化での送信を希望されるお客さまは こちら よりお問い合わせください)

    お問い合わせ内容(必須)
    物件のお問い合わせ理由(必須)
    お名前・ご担当者様名(必須) 姓  名 
    メールアドレス(必須)
    ※携帯電話のメールアドレスをご入力される方はこちらをご確認ください
    電話番号(必須)
    - -
    備考欄 希望条件、物件案内希望日、質問などがございましたらご記入ください。
    お問い合わせを行う前に「個人情報の取り扱いについて」を必ずお読みください。
    「個人情報の取り扱いについて」に同意いただいた場合は「上記にご同意の上 確認画面へ進む」のボタンをクリックしてください。

    個人情報の取り扱いについて

    皆さまが送付された個人情報はアットホーム(株)のサーバを経由し、お問い合わせ先の不動産会社にメールまたはFAXにて転送されるためアットホーム(株)にも保管されます。アットホーム(株)で保管された個人情報の取り扱いについては、【こちら】をご覧ください。
    また、本画面でご記入いただいた個人情報は、お問い合わせ先の不動産会社でも保管します。 お問い合わせ先の不動産会社が保管する個人情報の取り扱いについては、不動産会社に直接お問い合わせください。

    情報提供会社

    情報提供会社

    鈴与三和建物(株) 不動産部

    国土交通大臣免許(16)第157号

    交通:
    JR山手線/浜松町駅 徒歩8分
    東京都港区海岸2丁目1-16 鈴与浜松町ビル6F
    TEL:
    03-5419-2501
    FAX:
    03-5419-2506
    所属団体:
    (公社)東京都宅地建物取引業協会会員
    不動産公正取引協議会加盟

    取引態様:仲介

    • 会社情報
    • 00213201
    スマートフォンで
    この不動産会社を見る
    QRコード
    • お問い合わせ
    • 提携サイト等より掲載されている物件情報につきましては、不動産会社詳細情報にリンクされていないものがあります。
    • 物件に関するお問合せは、物件詳細ページの「情報提供会社」に表示されている不動産会社へ直接お願いいたします。
    • 間取図は、現況を優先させていただきます。
    • 映像は物件の一部を撮影したものです。物件の契約にあたっての最終判断はご自身の判断に基づいて行ってください。
    • 仲介手数料について仲介手数料

    アットホームは物件情報の適正化に努めております。 内容に誤りがある場合にはこちらへご連絡ください。


    物件画像: