賃貸や不動産はアットホーム-賃貸マンション・賃貸物件・不動産なら アットホーム

埼玉県川越市新富町2丁目(本川越駅)の貸事務所:物件詳細

  • 物件詳細
  • 情報の見方
  • 印刷用画面
交通
所在地
駅徒歩 賃料
管理費等
敷金/保証金
礼金
使用部分面積
坪数/坪単価
物件種目
築年月

西武新宿線/本川越

埼玉県川越市新富町2丁目

2分

100.375万円

308,000円

6ヶ月 / なし

1ヶ月

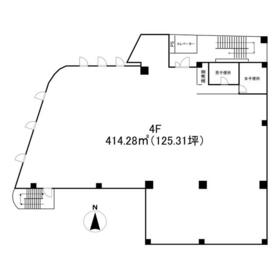
414.28m²

125.31坪/0.801万円

貸事務所

1988年3月(築37年9ヶ月)

間取図

間取図

<
その他の画像
>
    • お問い合わせ
    交通

    西武新宿線 本川越駅 徒歩2分

    所在地 埼玉県川越市新富町2丁目
    物件種目 貸事務所
    賃料 100.375万円 管理費等 308,000円
    敷金 / 保証金 6ヶ月 / なし 礼金 1ヶ月
    敷引 1ヶ月 坪単価 0.801万円
    保証金償却 権利金
    造作譲渡 その他一時金
    維持費等 看板使用料(税込み):10,000円/月 保険等
    使用部分面積 414.28m² 坪数 125.31坪
    築年月 1988年3月(築37年9ヶ月) 階建 / 階 地上5階地下1階建 / 4階
    駐車場 有 33,000円/月(空き7台)
    ※敷地内タワーパーキング 制限→全高1550mm・全幅1850mm・全長5050mm・自重1600kg
    バイク置き場
    駐輪場 土地面積
    接道状況 北西 15.1m 公道 ・ 東 2.9m 用途地域 商業地域
    間取り 建物構造 RC
    建物名・部屋番号  
    リフォーム履歴
    リノベーション履歴
    特記事項 土曜日利用可、1フロア1テナント
    備考
    賃貸保証等:加入要(初回:賃料等合計額のの100% 年間保証料:賃料等合計額の10%)
    管理形態/管理員の勤務形態:-/-
    原状変更工事は管理会社と要打ち合わせ。分割貸し可能。共用部分(給湯室・トイレ等)の清掃(月~金)・ペーパー準備・エアコンフィルター清掃(月1回)等・専用部LED電球交換は貸主負担。
    エネルギー消費性能
    断熱性能
    目安光熱費
    バス・トイレ 専有部分に男女別トイレあり
    キッチン
    設備・サービス エアコン
    その他 エレベーター
    契約期間 3年 条件等
    引渡可能時期 相談 現況
    更新料 新賃料 1ヶ月 物件番号 6977589161
    情報公開日 2025年1月27日 次回更新予定日 2025年11月18日
    ケータイ用バーコード

    QRコード

    スマートフォンでこの物件を見る
    スマートフォンからもこの物件をご覧になれます。
    ※「-」と表示されている項目については、情報提供会社にご確認ください。

    クイックお問い合わせ

    ここから簡単にお問い合わせをすることができます。
    (SSLでの暗号化での送信を希望されるお客さまは こちら よりお問い合わせください)

    お問い合わせ内容(必須)
    物件のお問い合わせ理由(必須)
    お名前・ご担当者様名(必須) 姓  名 
    メールアドレス(必須)
    ※携帯電話のメールアドレスをご入力される方はこちらをご確認ください
    電話番号(必須)
    - -
    備考欄 希望条件、物件案内希望日、質問などがございましたらご記入ください。
    お問い合わせを行う前に「個人情報の取り扱いについて」を必ずお読みください。
    「個人情報の取り扱いについて」に同意いただいた場合は「上記にご同意の上 確認画面へ進む」のボタンをクリックしてください。

    個人情報の取り扱いについて

    皆さまが送付された個人情報はアットホーム(株)のサーバを経由し、お問い合わせ先の不動産会社にメールまたはFAXにて転送されるためアットホーム(株)にも保管されます。アットホーム(株)で保管された個人情報の取り扱いについては、【こちら】をご覧ください。
    また、本画面でご記入いただいた個人情報は、お問い合わせ先の不動産会社でも保管します。 お問い合わせ先の不動産会社が保管する個人情報の取り扱いについては、不動産会社に直接お問い合わせください。

    情報提供会社

    情報提供会社

    三光物産(株) 総合本部

    埼玉県知事免許(4)第21799号

    交通:
    西武新宿線/本川越駅 徒歩5分
    埼玉県川越市新富町1丁目9-1 
    TEL:
    049-226-3535
    FAX:
    049-226-3566
    所属団体:
    (公社)埼玉県宅地建物取引業協会会員
    (公社)首都圏不動産公正取引協議会加盟

    取引態様:仲介

    • 会社情報
    • 00983220
    スマートフォンで
    この不動産会社を見る
    QRコード
    • お問い合わせ
    • 提携サイト等より掲載されている物件情報につきましては、不動産会社詳細情報にリンクされていないものがあります。
    • 物件に関するお問合せは、物件詳細ページの「情報提供会社」に表示されている不動産会社へ直接お願いいたします。
    • 間取図は、現況を優先させていただきます。
    • 映像は物件の一部を撮影したものです。物件の契約にあたっての最終判断はご自身の判断に基づいて行ってください。
    • 仲介手数料について仲介手数料

    アットホームは物件情報の適正化に努めております。 内容に誤りがある場合にはこちらへご連絡ください。


    物件画像: