賃貸や不動産はアットホーム-賃貸マンション・賃貸物件・不動産なら アットホーム

東京都新宿区西新宿6丁目(西新宿駅)の貸事務所:物件詳細

  • 物件詳細
  • 情報の見方
  • 印刷用画面
交通
所在地
駅徒歩 賃料
管理費等
敷金/保証金
礼金
使用部分面積
坪数/坪単価
物件種目
築年月

東京メトロ丸ノ内線/西新宿

東京都新宿区西新宿6丁目

5分

93.34万円

186,692円

10ヶ月 / なし

なし

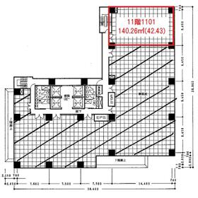
140.26m²

42.42坪/2.20万円

貸事務所

1996年6月(築29年11ヶ月)

おすすめコメント  スタッフ: 鈴木 啓一郎

◆貸主と直接交渉!(物元)【男女別トイレ!】■24時間利用可!■24時間利用可!■OAフロア!●丸ノ内線西新宿駅徒歩3分、新宿駅からも徒歩圏内●黒川紀章設計全面ガラス張りのブランドインテリジェントビル

間取図

間取図

<
その他の画像
  • ショッピング施設
  • ショッピング施設
  • コンビニ
  • 飲食店
  • 病院
  • 郵便局
  • 警察署、交番
>
    • お問い合わせ
    交通

    東京メトロ丸ノ内線 西新宿駅 徒歩5分

    その他の交通

    JR山手線 新宿駅 徒歩15分

    都営大江戸線 都庁前駅 徒歩7分

    所在地 東京都新宿区西新宿6丁目
    物件種目 貸事務所
    賃料 93.34万円 管理費等 186,692円
    敷金 / 保証金 10ヶ月 / なし 礼金 なし
    敷引 坪単価 2.20万円
    保証金償却 権利金
    造作譲渡 その他一時金
    維持費等 保険等 要 2年
    使用部分面積 140.26m² 坪数 42.42坪
    築年月 1996年6月(築29年11ヶ月) 階建 / 階 地上13階地下2階建 / 11階
    駐車場 有 44,000円/月
    ■駐車場:40,000円~45,000円(税別)/月及び保証金2ヶ月
    バイク置き場
    駐輪場 土地面積
    接道状況 用途地域
    間取り 建物構造 RC
    アピールポイント 【物件名】パークウエスト(PARKWEST)1101
    【所在地】東京都新宿区西新宿6丁目12-1

    ・男女別トイレ!
    ・24時間利用可!
    ・OAフロア!

    ■物件詳細
    ●丸ノ内線西新宿駅徒歩3分、新宿駅からも徒歩圏内です。 
    ●黒川紀章設計全面ガラス張りのブランドビルです。 
    ●事務所ビルの立ち並ぶ西新宿エリアに一際目立つインテリジェントビルです。
    ●格式高いエントランス!1階りそな銀行、地下駐車場空いております。
     
    パークウエスト(PARKWEST)のお問い合わせは、
    事業用不動産専門の株式会社エンジンテラスまで!
    建物名・部屋番号 パークウエスト(PARKWEST) 1101
    リフォーム履歴
    リノベーション履歴
    特記事項 24時間利用可、OAフロア、24時間セキュリティー、天井高2.5M以上
    備考
    賃貸保証等:加入要(契約プランに基づく)
    管理形態/管理員の勤務形態:-/-
    ■天井高2.7M
    ■管理人(日勤)
    ■ミニキッチン(共用)
    ■超耐震設計
    ■契約期間相談
    ■エントランス開放時間:月~土7:00~20:00/日・祝7:00~19:00
    ■キャンペーン実施中(2026年4月末まで)分割可能・礼金なし・償却なし・再契約料なし 

    エネルギー消費性能
    断熱性能
    目安光熱費
    バス・トイレ 共用部分に男女別トイレあり
    キッチン
    設備・サービス 個別空調、エアコン
    その他 エレベーター2基以上、エレベーター
    契約期間 2年 条件等 定期借家定期借家
    引渡可能時期 2026年3月下旬予定 現況 使用中
    仲介手数料 1ヶ月    
    更新料 物件番号 6974969724
    情報公開日 2025年11月12日 次回更新予定日 2026年4月15日
    ケータイ用バーコード

    QRコード

    スマートフォンでこの物件を見る
    スマートフォンからもこの物件をご覧になれます。
    ※「-」と表示されている項目については、情報提供会社にご確認ください。

    この物件の周辺情報

    周辺施設 新宿オークシティ
    距離 216m
    周辺施設 マルエツプチ西新宿六丁目店
    距離 357m
    周辺施設 ファミリーマート日土地西新宿ビル店
    距離 243m
    周辺施設 タリーズコーヒー新宿オークタワー店
    距離 307m
    周辺施設 東京医科大学病院
    距離 511m
    周辺施設 新宿アイタウン郵便局
    距離 311m
    周辺施設 東京都庁
    距離 628m
    周辺施設 新宿警察署
    距離 598m

    クイックお問い合わせ

    ここから簡単にお問い合わせをすることができます。
    (SSLでの暗号化での送信を希望されるお客さまは こちら よりお問い合わせください)

    お問い合わせ内容(必須)
    物件のお問い合わせ理由(必須)
    お名前・ご担当者様名(必須) 姓  名 
    メールアドレス(必須)
    ※携帯電話のメールアドレスをご入力される方はこちらをご確認ください
    電話番号(必須)
    - -
    備考欄 希望条件、物件案内希望日、質問などがございましたらご記入ください。
    お問い合わせを行う前に「個人情報の取り扱いについて」を必ずお読みください。
    「個人情報の取り扱いについて」に同意いただいた場合は「上記にご同意の上 確認画面へ進む」のボタンをクリックしてください。

    個人情報の取り扱いについて

    皆さまが送付された個人情報はアットホーム(株)のサーバを経由し、お問い合わせ先の不動産会社にメールまたはFAXにて転送されるためアットホーム(株)にも保管されます。アットホーム(株)で保管された個人情報の取り扱いについては、【こちら】をご覧ください。
    また、本画面でご記入いただいた個人情報は、お問い合わせ先の不動産会社でも保管します。 お問い合わせ先の不動産会社が保管する個人情報の取り扱いについては、不動産会社に直接お問い合わせください。

    情報提供会社

    情報提供会社

    (株)エンジンテラス 新宿店

    東京都知事免許(3)第94555号

    交通:
    JR山手線/新宿駅 徒歩4分
    東京都渋谷区代々木2丁目15-12 クランツ南新宿203
    TEL:
    03-5302-1885
    FAX:
    03-5302-1886
    所属団体:
    (公社)全日本不動産協会会員
    (公社)首都圏不動産公正取引協議会加盟

    取引態様:仲介

    • 会社情報
    • 00107309
    スマートフォンで
    この不動産会社を見る
    QRコード
    • お問い合わせ
    • 提携サイト等より掲載されている物件情報につきましては、不動産会社詳細情報にリンクされていないものがあります。
    • 物件に関するお問合せは、物件詳細ページの「情報提供会社」に表示されている不動産会社へ直接お願いいたします。
    • 間取図は、現況を優先させていただきます。
    • 映像は物件の一部を撮影したものです。物件の契約にあたっての最終判断はご自身の判断に基づいて行ってください。
    • 仲介手数料について仲介手数料

    アットホームは物件情報の適正化に努めております。 内容に誤りがある場合にはこちらへご連絡ください。


    物件画像: