賃貸や不動産はアットホーム-賃貸マンション・賃貸物件・不動産なら アットホーム

広島県広島市中区本川町2丁目(本川町駅)の貸事務所:物件詳細

  • 物件詳細
  • 情報の見方
  • 印刷用画面
交通
所在地
駅徒歩 賃料
管理費等
敷金/保証金
礼金
使用部分面積
坪数/坪単価
物件種目
築年月

広島電鉄本線/本川町 新着

広島県広島市中区本川町2丁目

1分

要確認

要確認

62.84m²

19.00坪/要確認

貸事務所

1979年3月(築46年9ヶ月)

おすすめコメント

◆ ・市電『本川町電停』近く ・リニューアル済み ・機械警備 ・貸会議室有 ◆

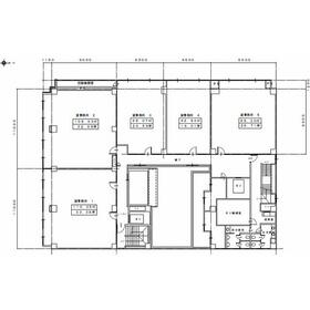
間取図

間取図

外観

外観

その他の画像
  • エントランス
    • お問い合わせ
    交通

    広島電鉄本線 本川町駅 徒歩1分

    その他の交通

    広島電鉄本線 十日市町駅 徒歩5分

    広島電鉄本線 紙屋町西駅 徒歩8分

    所在地 広島県広島市中区本川町2丁目
    物件種目 貸事務所
    賃料 要確認 管理費等 要確認
    敷金 / 保証金 要確認 礼金 要確認
    敷引 要確認 坪単価 要確認
    保証金償却 要確認 権利金
    造作譲渡 その他一時金
    維持費等 保険等
    使用部分面積 62.84m² 坪数 19.00坪
    築年月 1979年3月(築46年9ヶ月) 階建 / 階 11階建 / 5階
    駐車場 バイク置き場
    駐輪場 土地面積
    接道状況 用途地域 商業地域
    間取り 建物構造 SRC
    アピールポイント ■□■□■□■□■□■□■□■□■□■□■□■□■□■□■
     広島市内、協力店各社のネットワークにて物件をご用意して
     おります。

     また、電話やメールでの資料請求も随時、受付しております。
     お気軽にご相談ください。
    ■□■□■□■□■□■□■□■□■□■□■□■□■□■□■
    建物名・部屋番号  
    リフォーム履歴
    リノベーション履歴
    特記事項 24時間セキュリティー
    備考
    管理形態/管理員の勤務形態:-/-
    施設内会議室あり:・使用料など詳細についてはお問合せください。
    エネルギー消費性能
    断熱性能
    目安光熱費
    バス・トイレ 共用部分に男女別トイレあり
    キッチン
    設備・サービス 個別空調、オートロック、防犯カメラ、エアコン、光ファイバー
    その他 エレベーター2基以上、エレベーター
    契約期間 2年 条件等 定期借家定期借家
    引渡可能時期 相談 現況
    更新料 要確認 物件番号 6973988780
    情報公開日 2025年11月4日 次回更新予定日 2025年11月18日
    ケータイ用バーコード

    QRコード

    スマートフォンでこの物件を見る
    スマートフォンからもこの物件をご覧になれます。
    ※「-」と表示されている項目については、情報提供会社にご確認ください。

    クイックお問い合わせ

    ここから簡単にお問い合わせをすることができます。
    (SSLでの暗号化での送信を希望されるお客さまは こちら よりお問い合わせください)

    お問い合わせ内容(必須)
    物件のお問い合わせ理由(必須)
    お名前・ご担当者様名(必須) 姓  名 
    メールアドレス(必須)
    ※携帯電話のメールアドレスをご入力される方はこちらをご確認ください
    電話番号(必須)
    - -
    備考欄 希望条件、物件案内希望日、質問などがございましたらご記入ください。
    お問い合わせを行う前に「個人情報の取り扱いについて」を必ずお読みください。
    「個人情報の取り扱いについて」に同意いただいた場合は「上記にご同意の上 確認画面へ進む」のボタンをクリックしてください。

    個人情報の取り扱いについて

    皆さまが送付された個人情報はアットホーム(株)のサーバを経由し、お問い合わせ先の不動産会社にメールまたはFAXにて転送されるためアットホーム(株)にも保管されます。アットホーム(株)で保管された個人情報の取り扱いについては、【こちら】をご覧ください。
    また、本画面でご記入いただいた個人情報は、お問い合わせ先の不動産会社でも保管します。 お問い合わせ先の不動産会社が保管する個人情報の取り扱いについては、不動産会社に直接お問い合わせください。

    情報提供会社

    情報提供会社

    (株)シティホーム テナント課

    国土交通大臣免許(6)第5598号

    交通:
    広島電鉄本線/八丁堀駅 徒歩1分
    広島県広島市中区八丁堀15-10 セントラルビル4階
    TEL:
    082-962-6800
    FAX:
    082-962-4448
    所属団体:
    (公社)全日本不動産協会会員
    中国地区不動産公正取引協議会加盟

    取引態様:仲介

    • 会社情報
    • 50026843
    スマートフォンで
    この不動産会社を見る
    QRコード
    • お問い合わせ
    • 提携サイト等より掲載されている物件情報につきましては、不動産会社詳細情報にリンクされていないものがあります。
    • 物件に関するお問合せは、物件詳細ページの「情報提供会社」に表示されている不動産会社へ直接お願いいたします。
    • 間取図は、現況を優先させていただきます。
    • 映像は物件の一部を撮影したものです。物件の契約にあたっての最終判断はご自身の判断に基づいて行ってください。
    • 仲介手数料について仲介手数料

    アットホームは物件情報の適正化に努めております。 内容に誤りがある場合にはこちらへご連絡ください。


    物件画像: