賃貸や不動産はアットホーム-賃貸マンション・賃貸物件・不動産なら アットホーム

静岡県静岡市葵区錦町(新静岡駅)の貸事務所:物件詳細

  • 物件詳細
  • 情報の見方
  • 印刷用画面
交通
所在地
駅徒歩 賃料
管理費等
敷金/保証金
礼金
使用部分面積
坪数/坪単価
物件種目
築年月

静岡鉄道静岡清水線/新静岡 新着

静岡県静岡市葵区錦町

18分

19.8万円

3ヶ月 / なし

なし

84.44m²

25.54坪/0.7752万円

貸事務所

1999年1月(築27年4ヶ月)

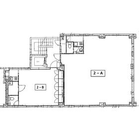
間取図

間取図

<
その他の画像
>
    • お問い合わせ
    交通

    静岡鉄道静岡清水線 新静岡駅 徒歩18分

    その他の交通

    東海道本線 静岡駅 徒歩21分

    所在地 静岡県静岡市葵区錦町
    物件種目 貸事務所
    賃料 19.8万円 管理費等
    敷金 / 保証金 3ヶ月 / なし 礼金 なし
    敷引 坪単価 0.7752万円
    保証金償却 権利金
    造作譲渡 その他一時金
    維持費等 保険等
    使用部分面積 84.44m² 坪数 25.54坪
    築年月 1999年1月(築27年4ヶ月) 階建 / 階 4階建 / 2階
    駐車場 バイク置き場
    駐輪場 有 無料 土地面積
    接道状況 用途地域
    間取り 建物構造 RC
    建物名・部屋番号 インナーコート 2-A
    リフォーム履歴
    リノベーション履歴
    特記事項 OAフロア、飲食店不可、角部屋
    備考
    賃貸保証等:利用可(賃料の100% 更新毎年賃料の10%~)
    管理形態/管理員の勤務形態:-/-
    エネルギー消費性能
    断熱性能
    目安光熱費
    バス・トイレ 専有部分にトイレあり、多機能トイレ
    キッチン オープンキッチン
    設備・サービス 収納スペース、エアコン
    その他 エレベーター
    契約期間 2年 条件等
    引渡可能時期 相談 現況
    仲介手数料 1ヶ月    
    更新料 なし 物件番号 6972022839
    情報公開日 2026年4月9日 次回更新予定日 2026年4月24日
    ケータイ用バーコード

    QRコード

    スマートフォンでこの物件を見る
    スマートフォンからもこの物件をご覧になれます。
    ※「-」と表示されている項目については、情報提供会社にご確認ください。

    この物件の周辺情報

    周辺施設 静岡伊勢丹
    距離 673m
    周辺施設 ファミリーマート静岡車町店
    距離 374m
    周辺施設 デニーズ静岡二番町店
    距離 281m
    周辺施設 ほっともっと静岡安西通り店
    距離 466m
    周辺施設 マツモトキヨシ安西店
    距離 355m
    周辺施設 静清信用金庫研屋町支店
    距離 190m
    周辺施設 静岡銀行本店
    距離 458m
    周辺施設 静岡市役所
    距離 913m

    クイックお問い合わせ

    ここから簡単にお問い合わせをすることができます。
    (SSLでの暗号化での送信を希望されるお客さまは こちら よりお問い合わせください)

    お問い合わせ内容(必須)
    物件のお問い合わせ理由(必須)
    お名前・ご担当者様名(必須) 姓  名 
    メールアドレス(必須)
    ※携帯電話のメールアドレスをご入力される方はこちらをご確認ください
    電話番号(必須)
    - -
    備考欄 希望条件、物件案内希望日、質問などがございましたらご記入ください。
    お問い合わせを行う前に「個人情報の取り扱いについて」を必ずお読みください。
    「個人情報の取り扱いについて」に同意いただいた場合は「上記にご同意の上 確認画面へ進む」のボタンをクリックしてください。

    個人情報の取り扱いについて

    皆さまが送付された個人情報はアットホーム(株)のサーバを経由し、お問い合わせ先の不動産会社にメールまたはFAXにて転送されるためアットホーム(株)にも保管されます。アットホーム(株)で保管された個人情報の取り扱いについては、【こちら】をご覧ください。
    また、本画面でご記入いただいた個人情報は、お問い合わせ先の不動産会社でも保管します。 お問い合わせ先の不動産会社が保管する個人情報の取り扱いについては、不動産会社に直接お問い合わせください。

    情報提供会社

    情報提供会社

    (株)英和不動産

    静岡県知事免許(10)第6103号

    交通:
    東海道本線/静岡駅 徒歩16分 【バス】5分 八千代町 停歩3分
    静岡県静岡市葵区茶町2丁目18 
    TEL:
    054-255-4855
    FAX:
    054-251-1573
    所属団体:
    (公社)静岡県宅地建物取引業協会会員
    東海不動産公正取引協議会加盟

    取引態様:仲介

    • 会社情報
    • 40200204
    スマートフォンで
    この不動産会社を見る
    QRコード
    • お問い合わせ
    • 提携サイト等より掲載されている物件情報につきましては、不動産会社詳細情報にリンクされていないものがあります。
    • 物件に関するお問合せは、物件詳細ページの「情報提供会社」に表示されている不動産会社へ直接お願いいたします。
    • 間取図は、現況を優先させていただきます。
    • 映像は物件の一部を撮影したものです。物件の契約にあたっての最終判断はご自身の判断に基づいて行ってください。
    • 仲介手数料について仲介手数料

    アットホームは物件情報の適正化に努めております。 内容に誤りがある場合にはこちらへご連絡ください。


    物件画像: