賃貸や不動産はアットホーム-賃貸マンション・賃貸物件・不動産なら アットホーム

大分県日田市淡窓1丁目(日田駅)の貸事務所:物件詳細

  • 物件詳細
  • 情報の見方
  • 印刷用画面
交通
所在地
駅徒歩 賃料
管理費等
敷金/保証金
礼金
使用部分面積
坪数/坪単価
物件種目
築年月

JR久大本線/日田

大分県日田市淡窓1丁目

11分

15万円

2,000円

2ヶ月 / なし

なし

207.98m²

62.91坪/0.2385万円

貸事務所

2003年4月(築22年9ヶ月)

おすすめコメント  スタッフ: 伊藤 干樹

日田市中心部にあるテナントです!(^^)!駐車場10台以上利用可!床面積約63坪!多目的に利用できる広さあり!

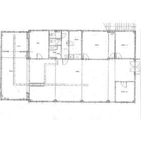
間取図

間取図

外観

外観

<
その他の画像
  • エントランス
  • 室内
  • 室内
  • 室内
  • 室内
  • 室内
  • 室内
  • 室内
  • 室内
  • 室内
  • 室内
  • 室内
  • 室内
  • 室内
  • 室内
  • キッチン
  • キッチン
  • 室内
  • トイレ
  • トイレ
  • トイレ
  • 収納
  • 外観
  • 外観
  • 外観
  • 外観
  • 駐車場
  • 駐車場
  • 役所
  • 警察署、交番
  • 図書館
  • 郵便局
  • コンビニ
  • ショッピング施設
  • 小学校
  • 病院
>
    • お問い合わせ
    交通

    JR久大本線 日田駅 徒歩11分

    その他の交通

    JR久大本線 光岡駅 徒歩28分

    JR久大本線 豊後三芳駅 徒歩36分

    所在地 大分県日田市淡窓1丁目
    物件種目 貸事務所
    賃料 15万円 管理費等 2,000円
    敷金 / 保証金 2ヶ月 / なし 礼金 なし
    敷引 坪単価 0.2385万円
    保証金償却 権利金
    造作譲渡 その他一時金
    維持費等 保険等 要 2年 22,500円 全管協共済会
    クレジットカード決済 初期費用可 賃料可
    使用部分面積 207.98m² 坪数 62.91坪
    築年月 2003年4月(築22年9ヶ月) 階建 / 階 2階建 / 1階
    駐車場 有 無料(空き13台) バイク置き場 有 無料
    駐輪場 有 無料 土地面積
    接道状況 南 ・ 東 ・ 二方道路 用途地域 2種中高
    間取り 建物構造 鉄骨造
    建物名・部屋番号 AYBLDG 1F
    リフォーム履歴
    リノベーション履歴
    特記事項 土曜日利用可、土日・祝日利用可、飲食店不可、1フロア1テナント、駐車場3台分以上、24時間換気システム、IT重説対応物件
    備考
    賃貸保証等:加入要(ジェイリース 初回保証料:月額合計賃料の100%(初回のみ))
    管理形態/管理員の勤務形態:-/-
    主要採光面:南向き
    IT重説対応物件
    エネルギー消費性能
    断熱性能
    目安光熱費
    バス・トイレ トイレ2ヶ所、専有部分に男女別トイレあり
    キッチン
    設備・サービス エアコン2台以上、給湯、プロパンガス、動力あり、ビルトインエアコン、エアコン、暖房、冷房
    その他
    契約期間 2年 条件等
    引渡可能時期 2026年2月下旬予定 現況 居住中
    仲介手数料 1.1ヶ月    
    更新料 11,000円 物件番号 6957350264
    情報公開日 2025年11月8日 次回更新予定日 2025年12月22日
    ケータイ用バーコード

    QRコード

    スマートフォンでこの物件を見る
    スマートフォンからもこの物件をご覧になれます。
    ※「-」と表示されている項目については、情報提供会社にご確認ください。

    この物件の周辺情報

    周辺施設 日田市役所
    距離 361m
    周辺施設 日田警察署
    距離 308m
    周辺施設 日田市立淡窓図書館
    距離 316m
    周辺施設 日田田島郵便局
    距離 192m
    周辺施設 ファミリーマート日田淡窓店
    距離 362m
    周辺施設 イオン日田店
    距離 1148m
    周辺施設 日田市立咸宜小学校
    距離 498m
    周辺施設 医療法人咸宜会日田中央病院
    距離 560m

    クイックお問い合わせ

    ここから簡単にお問い合わせをすることができます。
    (SSLでの暗号化での送信を希望されるお客さまは こちら よりお問い合わせください)

    お問い合わせ内容(必須)
    物件のお問い合わせ理由(必須)
    お名前・ご担当者様名(必須) 姓  名 
    メールアドレス(必須)
    ※携帯電話のメールアドレスをご入力される方はこちらをご確認ください
    電話番号(必須)
    - -
    備考欄 希望条件、物件案内希望日、質問などがございましたらご記入ください。
    お問い合わせを行う前に「個人情報の取り扱いについて」を必ずお読みください。
    「個人情報の取り扱いについて」に同意いただいた場合は「上記にご同意の上 確認画面へ進む」のボタンをクリックしてください。

    個人情報の取り扱いについて

    皆さまが送付された個人情報はアットホーム(株)のサーバを経由し、お問い合わせ先の不動産会社にメールまたはFAXにて転送されるためアットホーム(株)にも保管されます。アットホーム(株)で保管された個人情報の取り扱いについては、【こちら】をご覧ください。
    また、本画面でご記入いただいた個人情報は、お問い合わせ先の不動産会社でも保管します。 お問い合わせ先の不動産会社が保管する個人情報の取り扱いについては、不動産会社に直接お問い合わせください。

    情報提供会社

    情報提供会社

    (株)伊藤不動産

    大分県知事免許(4)第2981号

    交通:
    JR久大本線/光岡駅 徒歩14分 【バス】3分 吹上公民館前 停歩6分
    大分県日田市大字十二町玉川町3-1459-1 
    TEL:
    0973-22-4034
    FAX:
    0973-23-7736
    所属団体:
    (公社)大分県宅地建物取引業協会会員
    (公財)日本賃貸住宅管理協会会員
    (一社)九州不動産公正取引協議会加盟

    取引態様:仲介

    • 会社情報
    • 80400850
    スマートフォンで
    この不動産会社を見る
    QRコード
    • お問い合わせ
    • 提携サイト等より掲載されている物件情報につきましては、不動産会社詳細情報にリンクされていないものがあります。
    • 物件に関するお問合せは、物件詳細ページの「情報提供会社」に表示されている不動産会社へ直接お願いいたします。
    • 間取図は、現況を優先させていただきます。
    • 映像は物件の一部を撮影したものです。物件の契約にあたっての最終判断はご自身の判断に基づいて行ってください。
    • 仲介手数料について仲介手数料

    アットホームは物件情報の適正化に努めております。 内容に誤りがある場合にはこちらへご連絡ください。


    物件画像: