賃貸や不動産はアットホーム-賃貸マンション・賃貸物件・不動産なら アットホーム

埼玉県さいたま市大宮区吉敷町1丁目(大宮駅)の貸事務所:物件詳細

  • 物件詳細
  • 情報の見方
  • 印刷用画面
交通
所在地
駅徒歩 賃料
管理費等
敷金/保証金
礼金
使用部分面積
坪数/坪単価
物件種目
築年月

JR京浜東北線/大宮 新着

埼玉県さいたま市大宮区吉敷町1丁目

10分

20.0401万円

65,299円

なし / 128.961万円

なし

67.67m²

20.47坪/0.979万円

貸事務所

1974年1月(築52年)

おすすめコメント

事務所でのご紹介です。大宮駅徒歩圏内 駐車場あり。内見可能日など事前にご相談ください。2026.4上旬以降に使用可能です。

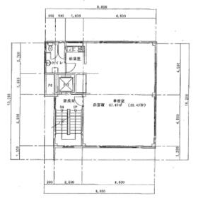
間取図

間取図

外観

外観

  • お問い合わせ
交通

JR京浜東北線 大宮駅 徒歩10分

その他の交通

JR東北本線 さいたま新都心駅 徒歩17分

JR埼京線 北与野駅 徒歩17分

所在地 埼玉県さいたま市大宮区吉敷町1丁目
物件種目 貸事務所
賃料 20.0401万円 管理費等 65,299円
敷金 / 保証金 なし / 128.961万円 礼金 なし
敷引 坪単価 0.979万円
保証金償却 権利金
造作譲渡 その他一時金
維持費等 保険等
使用部分面積 67.67m² 坪数 20.47坪
築年月 1974年1月(築52年) 階建 / 階 5階建 / 3階
駐車場 有 33,000円/月(空き8台)
立体駐車場 空き確認2025.12時点 ◆敷金1か月、契約手数料1か月あり◆
バイク置き場
駐輪場 土地面積
接道状況 用途地域
間取り 建物構造 鉄骨造
アピールポイント 事務所でのご紹介です。大宮駅徒歩圏内 駐車場あり。内見可能日など
事前にご相談ください。2026.4上旬以降に使用可能です。
建物名・部屋番号 橋本第二ビル 3F
リフォーム履歴
リノベーション履歴
特記事項 飲食店不可、1フロア1テナント
備考
管理形態/管理員の勤務形態:-/-
解約予告6ヶ月前 電気料金、水道料金、ガス料金、清掃費等は
別途ご負担いただきます。
看板設置等については別途打ち合わせの上決定。
エネルギー消費性能
断熱性能
目安光熱費
バス・トイレ トイレ
キッチン
設備・サービス 個別空調、給湯、都市ガス、動力あり、エアコン
その他 エレベーター
契約期間 2年 条件等
引渡可能時期 2026年4月上旬予定 現況 使用中
仲介手数料 1ヶ月    
更新料 なし 物件番号 6925677401
情報公開日 2025年12月20日 次回更新予定日 2026年1月3日
ケータイ用バーコード

QRコード

スマートフォンでこの物件を見る
スマートフォンからもこの物件をご覧になれます。
※「-」と表示されている項目については、情報提供会社にご確認ください。

この物件の周辺情報

周辺施設 角上魚類ホームズさいたま中央店
距離 715m
周辺施設 セブンイレブンさいたま吉敷町1丁目店
距離 254m
周辺施設 エ・プロント大宮区役所店
距離 449m
周辺施設 与野上落合郵便局
距離 430m
周辺施設 常陽銀行さいたま支店
距離 438m
周辺施設 さいたま市立大宮図書館
距離 384m

クイックお問い合わせ

ここから簡単にお問い合わせをすることができます。
(SSLでの暗号化での送信を希望されるお客さまは こちら よりお問い合わせください)

お問い合わせ内容(必須)
物件のお問い合わせ理由(必須)
お名前・ご担当者様名(必須) 姓  名 
メールアドレス(必須)
※携帯電話のメールアドレスをご入力される方はこちらをご確認ください
電話番号(必須)
- -
備考欄 希望条件、物件案内希望日、質問などがございましたらご記入ください。
お問い合わせを行う前に「個人情報の取り扱いについて」を必ずお読みください。
「個人情報の取り扱いについて」に同意いただいた場合は「上記にご同意の上 確認画面へ進む」のボタンをクリックしてください。

個人情報の取り扱いについて

皆さまが送付された個人情報はアットホーム(株)のサーバを経由し、お問い合わせ先の不動産会社にメールまたはFAXにて転送されるためアットホーム(株)にも保管されます。アットホーム(株)で保管された個人情報の取り扱いについては、【こちら】をご覧ください。
また、本画面でご記入いただいた個人情報は、お問い合わせ先の不動産会社でも保管します。 お問い合わせ先の不動産会社が保管する個人情報の取り扱いについては、不動産会社に直接お問い合わせください。

情報提供会社

情報提供会社

(株)アップル テナント店

国土交通大臣免許(5)第6971号

交通:
JR京浜東北線/大宮駅 徒歩1分
埼玉県さいたま市大宮区桜木町1丁目1-2 橋本ビル2F
TEL:
048-650-5333
FAX:
048-650-3353
所属団体:
(公社)埼玉県宅地建物取引業協会会員
不動産公正取引協議会加盟

取引態様:仲介

  • 会社情報
  • 00013239
スマートフォンで
この不動産会社を見る
QRコード
  • お問い合わせ
  • 提携サイト等より掲載されている物件情報につきましては、不動産会社詳細情報にリンクされていないものがあります。
  • 物件に関するお問合せは、物件詳細ページの「情報提供会社」に表示されている不動産会社へ直接お願いいたします。
  • 間取図は、現況を優先させていただきます。
  • 映像は物件の一部を撮影したものです。物件の契約にあたっての最終判断はご自身の判断に基づいて行ってください。
  • 仲介手数料について仲介手数料

アットホームは物件情報の適正化に努めております。 内容に誤りがある場合にはこちらへご連絡ください。


物件画像: