賃貸や不動産はアットホーム-賃貸マンション・賃貸物件・不動産なら アットホーム

愛知県名古屋市港区大西1丁目(戸田駅)の貸事務所:物件詳細

  • 物件詳細
  • 情報の見方
  • 印刷用画面
交通
所在地
駅徒歩 賃料
管理費等
敷金/保証金
礼金
使用部分面積
坪数/坪単価
物件種目
築年月

近鉄名古屋線/戸田 新着

愛知県名古屋市港区大西1丁目

29分

16万円

なし

なし / 48万円

なし

73.10m²

22.11坪/0.7236万円

貸事務所(建物一括)

2025年11月(新築)

おすすめコメント

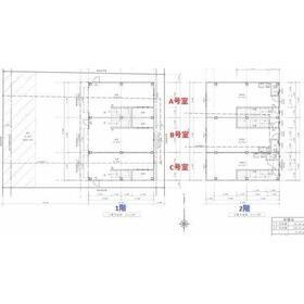
内見可能☆事務所はOAフロア☆ 1F34.4㎡、2F38.7㎡ ]☆2025年11月完成の新築☆内見可能☆事務所はOAフロア☆ 1F34.4㎡、2F38.7㎡ ]☆2025年11月完成の新築☆

間取図

間取図

外観

外観

<
その他の画像
  • 外観
  • 外観
  • 室内
  • 室内
  • 室内
  • 室内
  • 室内
  • 室内
  • 室内
  • キッチン
  • トイレ
  • 外観
  • その他
  • その他
  • その他
  • 販売店
  • 販売店
>
    • お問い合わせ
    交通

    近鉄名古屋線 戸田駅 徒歩29分

    その他の交通

    近鉄名古屋線 近鉄蟹江駅 徒歩51分

    近鉄名古屋線 伏屋駅 徒歩56分

    所在地 愛知県名古屋市港区大西1丁目
    物件種目 貸事務所(建物一括)
    賃料 16万円 管理費等 なし
    敷金 / 保証金 なし / 48万円 礼金 なし
    敷引 坪単価 0.7236万円
    保証金償却 解約時26.40万円 権利金
    造作譲渡 その他一時金 なし
    維持費等 保険等
    使用部分面積 73.10m² 坪数 22.11坪
    築年月 2025年11月(新築) 階建 / 階 2階建 / 1階~2階部分
    駐車場 有 無料 バイク置き場
    駐輪場 土地面積
    接道状況 用途地域
    間取り 建物構造 鉄骨造
    建物名・部屋番号 港区大西倉庫付き事務所
    リフォーム履歴
    リノベーション履歴
    特記事項 OAフロア、最上階
    備考
    賃貸保証等:加入要(Casa 初回保証料:総賃料100%、更新保証料:総賃料10%/年)
    管理形態/管理員の勤務形態:-/-
    エネルギー消費性能
    断熱性能
    目安光熱費
    バス・トイレ シャワー、トイレ
    キッチン
    設備・サービス 防犯カメラ、電動シャッター、シャッター雨戸、給湯、プロパンガス、エアコン
    その他
    契約期間 2年 条件等
    引渡可能時期 2025年11月中旬予定 現況
    更新料 物件番号 1171560407
    情報公開日 2025年11月4日 次回更新予定日 2025年11月18日
    ケータイ用バーコード

    QRコード

    スマートフォンでこの物件を見る
    スマートフォンからもこの物件をご覧になれます。
    ※「-」と表示されている項目については、情報提供会社にご確認ください。

    この物件の周辺情報

    周辺施設 イオン 南陽店
    距離 973m
    周辺施設 ザ・ビッグエクスプレス 南陽店
    距離 1255m

    クイックお問い合わせ

    ここから簡単にお問い合わせをすることができます。
    (SSLでの暗号化での送信を希望されるお客さまは こちら よりお問い合わせください)

    お問い合わせ内容(必須)
    物件のお問い合わせ理由(必須)
    お名前・ご担当者様名(必須) 姓  名 
    メールアドレス(必須)
    ※携帯電話のメールアドレスをご入力される方はこちらをご確認ください
    電話番号(必須)
    - -
    備考欄 希望条件、物件案内希望日、質問などがございましたらご記入ください。
    お問い合わせを行う前に「個人情報の取り扱いについて」を必ずお読みください。
    「個人情報の取り扱いについて」に同意いただいた場合は「上記にご同意の上 確認画面へ進む」のボタンをクリックしてください。

    個人情報の取り扱いについて

    皆さまが送付された個人情報はアットホーム(株)のサーバを経由し、お問い合わせ先の不動産会社にメールまたはFAXにて転送されるためアットホーム(株)にも保管されます。アットホーム(株)で保管された個人情報の取り扱いについては、【こちら】をご覧ください。
    また、本画面でご記入いただいた個人情報は、お問い合わせ先の不動産会社でも保管します。 お問い合わせ先の不動産会社が保管する個人情報の取り扱いについては、不動産会社に直接お問い合わせください。

    情報提供会社

    情報提供会社

    ホームメイトFC緑鳴海店(株)名古屋緑不動産

    愛知県知事免許(1)第25204号

    交通:
    名鉄名古屋本線/鳴海駅 徒歩6分
    愛知県名古屋市緑区鳴海町字花井町39-5 
    TEL:
    052-875-7922
    FAX:
    052-875-7927
    所属団体:
    (公社)愛知県宅地建物取引業協会会員
    東海不動産公正取引協議会加盟

    取引態様:仲介

    • 会社情報
    • 40410423
    スマートフォンで
    この不動産会社を見る
    QRコード
    • お問い合わせ
    • 提携サイト等より掲載されている物件情報につきましては、不動産会社詳細情報にリンクされていないものがあります。
    • 物件に関するお問合せは、物件詳細ページの「情報提供会社」に表示されている不動産会社へ直接お願いいたします。
    • 間取図は、現況を優先させていただきます。
    • 映像は物件の一部を撮影したものです。物件の契約にあたっての最終判断はご自身の判断に基づいて行ってください。
    • 仲介手数料について仲介手数料

    アットホームは物件情報の適正化に努めております。 内容に誤りがある場合にはこちらへご連絡ください。


    物件画像: