賃貸や不動産はアットホーム-賃貸マンション・賃貸物件・不動産なら アットホーム

大阪府大阪市中央区南船場2丁目(長堀橋駅)の貸事務所:物件詳細

  • 物件詳細
  • 情報の見方
  • 印刷用画面
交通
所在地
駅徒歩 賃料
管理費等
敷金/保証金
礼金
使用部分面積
坪数/坪単価
物件種目
築年月

地下鉄堺筋線/長堀橋

大阪府大阪市中央区南船場2丁目

1分

32.483万円

81,208円

なし / 10ヶ月

なし

97.61m²

29.52坪/1.1002万円

貸事務所

1966年10月(築59年5ヶ月)

おすすめコメント  スタッフ: 三宮 清孝

地下鉄長堀橋駅直結。 セキュリティ、個別空調も完備。

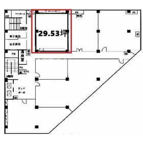
間取図

間取図

長堀プラザビル 間取り

外観

外観

長堀プラザビル 外観

<
その他の画像
  • エントランス
  • 共有部分
  • 共有部分
  • 駐車場
  • 郵便局
  • コンビニ
  • コンビニ
  • 販売店
  • 販売店
  • 販売店
  • 飲食店
  • 警察署、交番
>
    • お問い合わせ
    交通

    地下鉄堺筋線 長堀橋駅 徒歩1分

    その他の交通

    地下鉄御堂筋線 心斎橋駅 徒歩5分

    地下鉄中央線 堺筋本町駅 徒歩10分

    所在地 大阪府大阪市中央区南船場2丁目
    物件種目 貸事務所
    賃料 32.483万円 管理費等 81,208円
    敷金 / 保証金 なし / 10ヶ月 礼金 なし
    敷引 坪単価 1.1002万円
    保証金償却 権利金
    造作譲渡 その他一時金 なし
    維持費等 保険等
    使用部分面積 97.61m² 坪数 29.52坪
    築年月 1966年10月(築59年5ヶ月) 階建 / 階 地上9階地下3階建 / 5階
    駐車場 有 33,000円/月(空き1台) バイク置き場 近有
    駐輪場 近有 土地面積
    接道状況 用途地域
    間取り 建物構造 SRC
    アピールポイント ★当店では大阪初となるサロン型店舗です。
    お客様一人一人のご要望を丁寧にお聞きしオーダーメイドのご提案をさせていただきす。
    ★個室のプライベート空間で24時間換気を行いながらご提案をさせていただきます。 
    ★予約制なので他のお客様と同じ空間にいることがほとんどありません。 
    ★キッズルームも完備しておりますのでお子様を連れてのご来店も大歓迎です。 
    ★賃貸・売買双方を専門としておりますので、最良のご提案をさせていただきます。
    ★LINEお問い合わせが比較的早急にご対応出来ます!
    ★AFLOであれば、他社様の掲載物件でもまとめてご内覧・ご紹介可能です。
    建物名・部屋番号  
    リフォーム履歴
    リノベーション履歴
    特記事項 角部屋
    備考
    賃貸保証等:加入要(都度お問い合わせ下さい。)
    管理形態/管理員の勤務形態:-/-
    物件より徒歩圏内に当社営業店がございます。
    事務所物件をはじめ、飲食・美容・物販などの様々な業種のニーズに応じて店舗物件をご紹介しております。
    尚、弊社ではおとり広告は一切おこなっておりません。現地での内覧お待ち合わせ等も可能です。
    お問い合わせ頂いた物件は勿論のこと、インターネットに掲載していないオススメ物件多数ございます。
    ご相談も含めお気軽にお申し付け下さいませ。
    物件より徒歩圏内に当社営業店がございます。内覧等・ご相談はお気軽にご連絡下さいませ。
    現地でのお待ち合わせ希望などにもご対応させていただいております。
    06-6578-2223
    エネルギー消費性能
    断熱性能
    目安光熱費
    バス・トイレ 男女別トイレ、トイレ2ヶ所、トイレ
    キッチン
    設備・サービス 個別空調、防犯カメラ、エアコン、冷房、インターネット対応、光ファイバー
    その他 エレベーター2基以上、エレベーター
    契約期間 2年 条件等
    引渡可能時期 即時 現況
    更新料 物件番号 1171458007
    情報公開日 2025年10月25日 次回更新予定日 2026年2月23日
    ケータイ用バーコード

    QRコード

    スマートフォンでこの物件を見る
    スマートフォンからもこの物件をご覧になれます。
    ※「-」と表示されている項目については、情報提供会社にご確認ください。

    この物件の周辺情報

    周辺施設 大阪南船場一郵便局
    距離 297m
    周辺施設 ローソン 南船場二丁目店
    距離 144m
    周辺施設 セブンイレブン 大阪長堀心斎橋店
    距離 147m
    周辺施設 KoKuMiN クリスタ長堀店
    距離 273m
    周辺施設 MISUGIYA+クリスタ長堀店
    距離 323m
    周辺施設 はんこ屋さん21 心斎橋店
    距離 343m
    周辺施設 珈琲館大阪本店
    距離 341m
    周辺施設 南警察署
    距離 454m

    クイックお問い合わせ

    ここから簡単にお問い合わせをすることができます。
    (SSLでの暗号化での送信を希望されるお客さまは こちら よりお問い合わせください)

    お問い合わせ内容(必須)
    物件のお問い合わせ理由(必須)
    お名前・ご担当者様名(必須) 姓  名 
    メールアドレス(必須)
    ※携帯電話のメールアドレスをご入力される方はこちらをご確認ください
    電話番号(必須)
    - -
    備考欄 希望条件、物件案内希望日、質問などがございましたらご記入ください。
    お問い合わせを行う前に「個人情報の取り扱いについて」を必ずお読みください。
    「個人情報の取り扱いについて」に同意いただいた場合は「上記にご同意の上 確認画面へ進む」のボタンをクリックしてください。

    個人情報の取り扱いについて

    皆さまが送付された個人情報はアットホーム(株)のサーバを経由し、お問い合わせ先の不動産会社にメールまたはFAXにて転送されるためアットホーム(株)にも保管されます。アットホーム(株)で保管された個人情報の取り扱いについては、【こちら】をご覧ください。
    また、本画面でご記入いただいた個人情報は、お問い合わせ先の不動産会社でも保管します。 お問い合わせ先の不動産会社が保管する個人情報の取り扱いについては、不動産会社に直接お問い合わせください。

    情報提供会社

    情報提供会社

    (株)アフロ テナント事業部

    大阪府知事免許(3)第58557号

    交通:
    地下鉄四つ橋線/四ツ橋駅 徒歩1分
    大阪府大阪市西区北堀江1丁目2-19 アステリオ北堀江ザ・メトロタワー3F
    TEL:
    06-6578-2223
    FAX:
    06-6578-2228
    所属団体:
    (公社)全日本不動産協会会員
    (公社)近畿地区不動産公正取引協議会加盟

    取引態様:仲介

    • 会社情報
    • 50109899
    スマートフォンで
    この不動産会社を見る
    QRコード
    • お問い合わせ
    • 提携サイト等より掲載されている物件情報につきましては、不動産会社詳細情報にリンクされていないものがあります。
    • 物件に関するお問合せは、物件詳細ページの「情報提供会社」に表示されている不動産会社へ直接お願いいたします。
    • 間取図は、現況を優先させていただきます。
    • 映像は物件の一部を撮影したものです。物件の契約にあたっての最終判断はご自身の判断に基づいて行ってください。
    • 仲介手数料について仲介手数料

    アットホームは物件情報の適正化に努めております。 内容に誤りがある場合にはこちらへご連絡ください。


    物件画像: