賃貸や不動産はアットホーム-賃貸マンション・賃貸物件・不動産なら アットホーム

大阪府大阪市中央区大手通2丁目(天満橋駅)の貸事務所:物件詳細

  • 物件詳細
  • 情報の見方
  • 印刷用画面
交通
所在地
駅徒歩 賃料
管理費等
敷金/保証金
礼金
使用部分面積
坪数/坪単価
物件種目
築年月

地下鉄谷町線/天満橋

大阪府大阪市中央区大手通2丁目

6分

41.239万円

なし

224.94万円 / なし

なし

123.93m²

37.48坪/1.1001万円

貸事務所

1992年1月(築34年2ヶ月)

おすすめコメント

【業種不可:就労支援・飲食・民泊・レンタルオフィス・会議室・トランクルーム】それ以外のサロンや来店型オフィス利用についてはお問い合わせください。

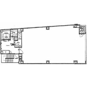
間取図

間取図

外観

外観

<
その他の画像
  • 外観
  • 外観
  • 共有部分
  • 共有部分
  • 共有部分
  • 室内
  • 設備
  • 設備
  • 設備
  • 設備
  • 共有部分
  • 共有部分
  • 共有部分
  • 共有部分
  • 共有部分
  • 共有部分
  • 共有部分
  • 共有部分
  • 共有部分
  • 共有部分
  • 共有部分
  • 室内
  • 室内
>
    • お問い合わせ
    交通

    地下鉄谷町線 天満橋駅 徒歩6分

    その他の交通

    地下鉄中央線 谷町四丁目駅 徒歩7分

    地下鉄谷町線 谷町四丁目駅 徒歩7分

    所在地 大阪府大阪市中央区大手通2丁目
    物件種目 貸事務所
    賃料 41.239万円 管理費等 なし
    敷金 / 保証金 224.94万円 / なし 礼金 なし
    敷引 坪単価 1.1001万円
    保証金償却 権利金
    造作譲渡 その他一時金 なし
    維持費等 保険等
    使用部分面積 123.93m² 坪数 37.48坪
    築年月 1992年1月(築34年2ヶ月) 階建 / 階 地上8階地下1階建 / 5階
    駐車場 空無 バイク置き場
    駐輪場 土地面積
    接道状況 用途地域
    間取り 建物構造 鉄骨造
    建物名・部屋番号  
    リフォーム履歴
    リノベーション履歴
    特記事項 24時間利用可、OAフロア
    備考
    管理形態/管理員の勤務形態:-/-
    【業種不可:就労支援・飲食・民泊・レンタルオフィス・会議室・トランクルーム】それ以外のサロンや来店型オフィス利用についてはお問い合わせください。また、オフィス街の主要な物件は全て網羅しておりますので掲載物件以外に非公開物件からもご紹介可能です。
    エネルギー消費性能
    断熱性能
    目安光熱費
    バス・トイレ 男女別トイレ
    キッチン
    設備・サービス インターネット対応、光ファイバー
    その他 エレベーター
    契約期間 2年 条件等
    引渡可能時期 相談 現況
    仲介手数料 1.1ヶ月    
    更新料 物件番号 1148187813
    情報公開日 2025年11月4日 次回更新予定日 2026年2月20日
    ケータイ用バーコード

    QRコード

    スマートフォンでこの物件を見る
    スマートフォンからもこの物件をご覧になれます。
    ※「-」と表示されている項目については、情報提供会社にご確認ください。

    クイックお問い合わせ

    ここから簡単にお問い合わせをすることができます。
    (SSLでの暗号化での送信を希望されるお客さまは こちら よりお問い合わせください)

    お問い合わせ内容(必須)
    物件のお問い合わせ理由(必須)
    お名前・ご担当者様名(必須) 姓  名 
    メールアドレス(必須)
    ※携帯電話のメールアドレスをご入力される方はこちらをご確認ください
    電話番号(必須)
    - -
    備考欄 希望条件、物件案内希望日、質問などがございましたらご記入ください。
    お問い合わせを行う前に「個人情報の取り扱いについて」を必ずお読みください。
    「個人情報の取り扱いについて」に同意いただいた場合は「上記にご同意の上 確認画面へ進む」のボタンをクリックしてください。

    個人情報の取り扱いについて

    皆さまが送付された個人情報はアットホーム(株)のサーバを経由し、お問い合わせ先の不動産会社にメールまたはFAXにて転送されるためアットホーム(株)にも保管されます。アットホーム(株)で保管された個人情報の取り扱いについては、【こちら】をご覧ください。
    また、本画面でご記入いただいた個人情報は、お問い合わせ先の不動産会社でも保管します。 お問い合わせ先の不動産会社が保管する個人情報の取り扱いについては、不動産会社に直接お問い合わせください。

    情報提供会社

    情報提供会社

    (株)エステートエージェンシー

    国土交通大臣免許(1)第9977号

    交通:
    地下鉄御堂筋線/本町駅 徒歩1分
    大阪府大阪市中央区南本町4丁目5-7 東亜ビル5階
    TEL:
    06-6226-8411
    FAX:
    06-6226-8412
    所属団体:
    (一社)大阪府宅地建物取引業協会会員
    (公社)近畿地区不動産公正取引協議会加盟

    取引態様:仲介

    • 会社情報
    • 50027209
    スマートフォンで
    この不動産会社を見る
    QRコード
    • お問い合わせ
    • 提携サイト等より掲載されている物件情報につきましては、不動産会社詳細情報にリンクされていないものがあります。
    • 物件に関するお問合せは、物件詳細ページの「情報提供会社」に表示されている不動産会社へ直接お願いいたします。
    • 間取図は、現況を優先させていただきます。
    • 映像は物件の一部を撮影したものです。物件の契約にあたっての最終判断はご自身の判断に基づいて行ってください。
    • 仲介手数料について仲介手数料

    アットホームは物件情報の適正化に努めております。 内容に誤りがある場合にはこちらへご連絡ください。


    物件画像: