賃貸や不動産はアットホーム-賃貸マンション・賃貸物件・不動産なら アットホーム

福岡県福岡市博多区山王1丁目(東比恵駅)の貸事務所:物件詳細

  • 物件詳細
  • 情報の見方
  • 印刷用画面
交通
所在地
駅徒歩 賃料
管理費等
敷金/保証金
礼金
使用部分面積
坪数/坪単価
物件種目
築年月

地下鉄空港線/東比恵

福岡県福岡市博多区山王1丁目

13分

22.0275万円

20,559円

6ヶ月 / なし

なし

88.26m²

26.69坪/0.8251万円

貸事務所

1980年2月(築45年11ヶ月)

おすすめコメント

【ご内覧は現地集合で来店不要です】日程調整等はお電話頂くか、メールでのお問い合わせ後にLINE登録されるとスムーズです!追加特典もありますので詳細はお気軽にお問い合わせ下さい♪

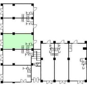
間取図

間取図

外観

外観

  • お問い合わせ
交通

地下鉄空港線 東比恵駅 徒歩13分

その他の交通

JR鹿児島本線 竹下駅 徒歩17分

JR博多南線 博多駅 徒歩20分

所在地 福岡県福岡市博多区山王1丁目
物件種目 貸事務所
賃料 22.0275万円 管理費等 20,559円
敷金 / 保証金 6ヶ月 / なし 礼金 なし
敷引 坪単価 0.8251万円
保証金償却 権利金
造作譲渡 その他一時金 入居時鍵交換代:44,000円、入居時ハウスクリーニング:55,000円
維持費等 保険等
使用部分面積 88.26m² 坪数 26.69坪
築年月 1980年2月(築45年11ヶ月) 階建 / 階 7階建 / 1階
駐車場 有 無料
駐車場1台無料
バイク置き場
駐輪場 土地面積
接道状況 用途地域
間取り 建物構造 RC
アピールポイント 株式会社tsunagutoです。
弊社は福岡市中央区警固に事務所を構えており、
事業用賃貸物件・テナント・居抜き売却・
貸事務所を主に取り扱う不動産仲介店です。
居住用のお部屋探しもベテランスタッフが
対応させて頂きますのでご相談ください。
福岡県内の物件、ほぼお取り扱い可能ですので、
気になる物件あればお問い合わせ下さい♪
初期費用に関してもご相談ください!
出来る限り喜んでもらえるよう尽力致します。
どうぞよろしくお願い致します!!
建物名・部屋番号 第3よしみビル
リフォーム履歴
リノベーション履歴
特記事項
備考
管理形態/管理員の勤務形態:-/-
エネルギー消費性能
断熱性能
目安光熱費
バス・トイレ バス・トイレ別、トイレ
キッチン
設備・サービス 都市ガス、エアコン、冷房
その他 エレベーター
契約期間 5年 条件等 定期借家定期借家
引渡可能時期 即時 現況
仲介手数料 1.1ヶ月    
更新料 物件番号 1148147913
情報公開日 2025年10月27日 次回更新予定日 2025年12月24日
ケータイ用バーコード

QRコード

スマートフォンでこの物件を見る
スマートフォンからもこの物件をご覧になれます。
※「-」と表示されている項目については、情報提供会社にご確認ください。

クイックお問い合わせ

ここから簡単にお問い合わせをすることができます。
(SSLでの暗号化での送信を希望されるお客さまは こちら よりお問い合わせください)

お問い合わせ内容(必須)
物件のお問い合わせ理由(必須)
お名前・ご担当者様名(必須) 姓  名 
メールアドレス(必須)
※携帯電話のメールアドレスをご入力される方はこちらをご確認ください
電話番号(必須)
- -
備考欄 希望条件、物件案内希望日、質問などがございましたらご記入ください。
お問い合わせを行う前に「個人情報の取り扱いについて」を必ずお読みください。
「個人情報の取り扱いについて」に同意いただいた場合は「上記にご同意の上 確認画面へ進む」のボタンをクリックしてください。

個人情報の取り扱いについて

皆さまが送付された個人情報はアットホーム(株)のサーバを経由し、お問い合わせ先の不動産会社にメールまたはFAXにて転送されるためアットホーム(株)にも保管されます。アットホーム(株)で保管された個人情報の取り扱いについては、【こちら】をご覧ください。
また、本画面でご記入いただいた個人情報は、お問い合わせ先の不動産会社でも保管します。 お問い合わせ先の不動産会社が保管する個人情報の取り扱いについては、不動産会社に直接お問い合わせください。

情報提供会社

情報提供会社

(株)tsunaguto

福岡県知事免許(1)第20460号

交通:
地下鉄空港線/赤坂駅 徒歩8分
福岡県福岡市中央区警固2丁目13-16 藤野興産ビル202号
TEL:
092-600-2136
所属団体:
(公社)福岡県宅地建物取引業協会会員
(一社)九州不動産公正取引協議会加盟

取引態様:仲介

  • 会社情報
  • 80507366
スマートフォンで
この不動産会社を見る
QRコード
  • お問い合わせ
  • 提携サイト等より掲載されている物件情報につきましては、不動産会社詳細情報にリンクされていないものがあります。
  • 物件に関するお問合せは、物件詳細ページの「情報提供会社」に表示されている不動産会社へ直接お願いいたします。
  • 間取図は、現況を優先させていただきます。
  • 映像は物件の一部を撮影したものです。物件の契約にあたっての最終判断はご自身の判断に基づいて行ってください。
  • 仲介手数料について仲介手数料

アットホームは物件情報の適正化に努めております。 内容に誤りがある場合にはこちらへご連絡ください。


物件画像: