賃貸や不動産はアットホーム-賃貸マンション・賃貸物件・不動産なら アットホーム

東京都港区南青山5丁目(表参道駅)の貸事務所:物件詳細

  • 物件詳細
  • 情報の見方
  • 印刷用画面
交通
所在地
駅徒歩 賃料
管理費等
敷金/保証金
礼金
使用部分面積
坪数/坪単価
物件種目
築年月

東京メトロ銀座線/表参道 新着

東京都港区南青山5丁目

5分

25.85万円

なし

8ヶ月 / なし

なし

31.07m²

9.39坪/2.7505万円

貸事務所

1986年4月(築39年11ヶ月)

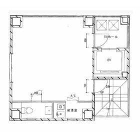
間取図

間取図

外観

外観

その他の画像
  • エントランス
  • エントランス
    • お問い合わせ
    交通

    東京メトロ銀座線 表参道駅 徒歩5分

    その他の交通

    JR山手線 渋谷駅 徒歩8分

    東京メトロ千代田線 表参道駅 徒歩5分

    所在地 東京都港区南青山5丁目
    物件種目 貸事務所
    賃料 25.85万円 管理費等 なし
    敷金 / 保証金 8ヶ月 / なし 礼金 なし
    敷引 坪単価 2.7505万円
    保証金償却 解約時10% 権利金
    造作譲渡 その他一時金 なし
    維持費等 保険等
    使用部分面積 31.07m² 坪数 9.39坪
    築年月 1986年4月(築39年11ヶ月) 階建 / 階 9階建 / 6階
    駐車場 バイク置き場
    駐輪場 土地面積
    接道状況 用途地域
    間取り 建物構造 鉄骨造
    建物名・部屋番号  
    リフォーム履歴
    リノベーション履歴
    特記事項 1フロア1テナント、耐震構造(新耐震基準)、IT重説対応物件
    備考
    管理形態/管理員の勤務形態:-/-
    IT重説対応物件
    骨董通りに面した視認性が高い物件です。事務所利用限定ですが、当該エリアにてこの面積帯でお探しなら、テナント入居中につき、内覧には日程調整が必要になります。内覧ご希望の場合は、ご希望の日程をお知らせ頂ければ調整致します。
    ・新耐震基準・個別空調・エレベーター・防犯カメラ・給湯設備・24時間利用可
    エネルギー消費性能
    断熱性能
    目安光熱費
    バス・トイレ トイレ
    キッチン
    設備・サービス 個別空調、防犯カメラ、給湯、ビルトインエアコン、エアコン、暖房、火災警報器(報知機)
    その他 エレベーター
    契約期間 2年 条件等
    引渡可能時期 2026年3月上旬予定 現況 使用中
    更新料 新賃料 1ヶ月 物件番号 1131078115
    情報公開日 2026年2月20日 次回更新予定日 2026年3月6日
    ケータイ用バーコード

    QRコード

    スマートフォンでこの物件を見る
    スマートフォンからもこの物件をご覧になれます。
    ※「-」と表示されている項目については、情報提供会社にご確認ください。

    クイックお問い合わせ

    ここから簡単にお問い合わせをすることができます。
    (SSLでの暗号化での送信を希望されるお客さまは こちら よりお問い合わせください)

    お問い合わせ内容(必須)
    物件のお問い合わせ理由(必須)
    お名前・ご担当者様名(必須) 姓  名 
    メールアドレス(必須)
    ※携帯電話のメールアドレスをご入力される方はこちらをご確認ください
    電話番号(必須)
    - -
    備考欄 希望条件、物件案内希望日、質問などがございましたらご記入ください。
    お問い合わせを行う前に「個人情報の取り扱いについて」を必ずお読みください。
    「個人情報の取り扱いについて」に同意いただいた場合は「上記にご同意の上 確認画面へ進む」のボタンをクリックしてください。

    個人情報の取り扱いについて

    皆さまが送付された個人情報はアットホーム(株)のサーバを経由し、お問い合わせ先の不動産会社にメールまたはFAXにて転送されるためアットホーム(株)にも保管されます。アットホーム(株)で保管された個人情報の取り扱いについては、【こちら】をご覧ください。
    また、本画面でご記入いただいた個人情報は、お問い合わせ先の不動産会社でも保管します。 お問い合わせ先の不動産会社が保管する個人情報の取り扱いについては、不動産会社に直接お問い合わせください。

    情報提供会社

    情報提供会社

    トップクォーター(株)

    東京都知事免許(7)第70546号

    交通:
    JR山手線/東京駅 徒歩9分
    東京都中央区日本橋兜町3-3 兜町平和ビル6F
    TEL:
    03-3669-9000
    FAX:
    03-3669-9001
    所属団体:
    (公社)全日本不動産協会会員
    (公社)首都圏不動産公正取引協議会加盟

    取引態様:仲介

    • 会社情報
    • 00065869
    スマートフォンで
    この不動産会社を見る
    QRコード
    • お問い合わせ
    • 提携サイト等より掲載されている物件情報につきましては、不動産会社詳細情報にリンクされていないものがあります。
    • 物件に関するお問合せは、物件詳細ページの「情報提供会社」に表示されている不動産会社へ直接お願いいたします。
    • 間取図は、現況を優先させていただきます。
    • 映像は物件の一部を撮影したものです。物件の契約にあたっての最終判断はご自身の判断に基づいて行ってください。
    • 仲介手数料について仲介手数料

    アットホームは物件情報の適正化に努めております。 内容に誤りがある場合にはこちらへご連絡ください。


    物件画像: