賃貸や不動産はアットホーム-賃貸マンション・賃貸物件・不動産なら アットホーム

熊本県熊本市中央区辛島町(辛島町駅)の貸事務所:物件詳細

  • 物件詳細
  • 情報の見方
  • 印刷用画面
交通
所在地
駅徒歩 賃料
管理費等
敷金/保証金
礼金
使用部分面積
坪数/坪単価
物件種目
築年月

熊本市電健軍線/辛島町

熊本県熊本市中央区辛島町

3分

55.75万円

185,856円

6ヶ月 / なし

なし

186.18m²

56.31坪/0.9899万円

貸事務所

1977年5月(築48年10ヶ月)

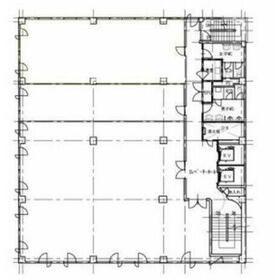
間取図

間取図

外観

外観

<
その他の画像
  • 共有部分
  • 共有部分
  • 共有部分
  • 共有部分
  • 共有部分
  • その他
  • 眺望
  • 室内
  • 共有部分
  • 共有部分
  • 共有部分
  • 外観
>
    • お問い合わせ
    交通

    熊本市電健軍線 辛島町駅 徒歩3分

    その他の交通

    熊本市電健軍線 慶徳校前駅 徒歩3分

    所在地 熊本県熊本市中央区辛島町
    物件種目 貸事務所
    賃料 55.75万円 管理費等 185,856円
    敷金 / 保証金 6ヶ月 / なし 礼金 なし
    敷引 坪単価 0.9899万円
    保証金償却 権利金
    造作譲渡 その他一時金 なし
    維持費等 保険等
    使用部分面積 186.18m² 坪数 56.31坪
    築年月 1977年5月(築48年10ヶ月) 階建 / 階 地上8階地下1階建 / 3階
    駐車場 有 27,500円/月(空き2台) バイク置き場
    駐輪場 土地面積
    接道状況 用途地域 商業地域
    間取り 建物構造 SRC
    建物名・部屋番号 桜ビル辛島町 301
    リフォーム履歴
    リノベーション履歴
    特記事項 角部屋
    備考
    賃貸保証等:加入要(会社規模により変動致します)
    管理形態/管理員の勤務形態:-/-
    熊本市中心部の56坪のOAフロアです!ビルトインエアコン付き!
    エネルギー消費性能
    断熱性能
    目安光熱費
    バス・トイレ トイレ
    キッチン
    設備・サービス 個別空調、エアコン2台以上、防犯カメラ、電動シャッター、給湯、エアコン
    その他 エレベーター2基以上、エレベーター
    契約期間 2年 条件等
    引渡可能時期 即時 現況
    更新料 物件番号 1130841315
    情報公開日 2026年1月30日 次回更新予定日 2026年2月23日
    ケータイ用バーコード

    QRコード

    スマートフォンでこの物件を見る
    スマートフォンからもこの物件をご覧になれます。
    ※「-」と表示されている項目については、情報提供会社にご確認ください。

    クイックお問い合わせ

    ここから簡単にお問い合わせをすることができます。
    (SSLでの暗号化での送信を希望されるお客さまは こちら よりお問い合わせください)

    お問い合わせ内容(必須)
    物件のお問い合わせ理由(必須)
    お名前・ご担当者様名(必須) 姓  名 
    メールアドレス(必須)
    ※携帯電話のメールアドレスをご入力される方はこちらをご確認ください
    電話番号(必須)
    - -
    備考欄 希望条件、物件案内希望日、質問などがございましたらご記入ください。
    お問い合わせを行う前に「個人情報の取り扱いについて」を必ずお読みください。
    「個人情報の取り扱いについて」に同意いただいた場合は「上記にご同意の上 確認画面へ進む」のボタンをクリックしてください。

    個人情報の取り扱いについて

    皆さまが送付された個人情報はアットホーム(株)のサーバを経由し、お問い合わせ先の不動産会社にメールまたはFAXにて転送されるためアットホーム(株)にも保管されます。アットホーム(株)で保管された個人情報の取り扱いについては、【こちら】をご覧ください。
    また、本画面でご記入いただいた個人情報は、お問い合わせ先の不動産会社でも保管します。 お問い合わせ先の不動産会社が保管する個人情報の取り扱いについては、不動産会社に直接お問い合わせください。

    情報提供会社

    情報提供会社

    (株)COCOプランナーズ

    熊本県知事免許(3)第4996号

    交通:
    JR豊肥本線/東海学園前駅 【バス】10分 京塚 停歩1分
    熊本県熊本市中央区帯山3丁目7-31 
    TEL:
    096-383-4445
    FAX:
    096-383-4446
    所属団体:
    (公社)熊本県宅地建物取引業協会会員
    (一社)九州不動産公正取引協議会加盟

    取引態様:仲介

    • 会社情報
    • 80502008
    スマートフォンで
    この不動産会社を見る
    QRコード
    • お問い合わせ
    • 提携サイト等より掲載されている物件情報につきましては、不動産会社詳細情報にリンクされていないものがあります。
    • 物件に関するお問合せは、物件詳細ページの「情報提供会社」に表示されている不動産会社へ直接お願いいたします。
    • 間取図は、現況を優先させていただきます。
    • 映像は物件の一部を撮影したものです。物件の契約にあたっての最終判断はご自身の判断に基づいて行ってください。
    • 仲介手数料について仲介手数料

    アットホームは物件情報の適正化に努めております。 内容に誤りがある場合にはこちらへご連絡ください。


    物件画像: