賃貸や不動産はアットホーム-賃貸マンション・賃貸物件・不動産なら アットホーム

東京都新宿区大久保2丁目(東新宿駅)の貸事務所:物件詳細

  • 物件詳細
  • 情報の見方
  • 印刷用画面
交通
所在地
駅徒歩 賃料
管理費等
敷金/保証金
礼金
使用部分面積
坪数/坪単価
物件種目
築年月

東京メトロ副都心線/東新宿

東京都新宿区大久保2丁目

1分

49.61万円

55,000円

なし / 6ヶ月

1ヶ月

72.72m²

21.99坪/2.2553万円

貸事務所

1971年12月(築54年1ヶ月)

おすすめコメント  スタッフ: 稲垣

★館内無料会議室あり★明治通り沿い・東新宿駅徒歩1分★共用部男女別トイレのため室内を無駄なく使うことができます!物件の設備に関するご質問やご不明な点がございましたらお気軽にお問い合わせくださいませ。

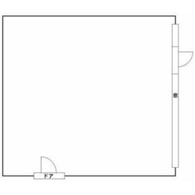
間取図

間取図

外観

外観

その他の画像
  • エントランス
  • 外観
  • 外観
  • エントランス
  • エントランス
  • トイレ
  • トイレ
  • 設備
  • 設備
    • お問い合わせ
    交通

    東京メトロ副都心線 東新宿駅 徒歩1分

    その他の交通

    都営大江戸線 東新宿駅 徒歩1分

    東京メトロ副都心線 西早稲田駅 徒歩7分

    所在地 東京都新宿区大久保2丁目
    物件種目 貸事務所
    賃料 49.61万円 管理費等 55,000円
    敷金 / 保証金 なし / 6ヶ月 礼金 1ヶ月
    敷引 坪単価 2.2553万円
    保証金償却 解約時2ヶ月 権利金
    造作譲渡 その他一時金 なし
    維持費等 保険等
    使用部分面積 72.72m² 坪数 21.99坪
    築年月 1971年12月(築54年1ヶ月) 階建 / 階 地上14階地下1階建 / 6階
    駐車場 バイク置き場
    駐輪場 土地面積
    接道状況 用途地域
    間取り 建物構造 RC
    建物名・部屋番号 プラザ新大樹ビル 605号室
    リフォーム履歴
    リノベーション履歴
    特記事項 OAフロア、飲食店不可
    備考
    管理形態/管理員の勤務形態:-/-
    貸主指定の保証会社と保証委託契約を締結して頂く場合がございます
    貸会議室あり
    退去日:2026年2月末(前倒し相談可)
    店舗利用の場合、保証金・償却は変更の可能性がございます
    エネルギー消費性能
    断熱性能
    目安光熱費
    バス・トイレ 男女別トイレ、トイレ2ヶ所、トイレ
    キッチン
    設備・サービス 個別空調、オートロック、エアコン
    その他 エレベーター
    契約期間 2年 条件等 定期借家定期借家
    引渡可能時期 相談 現況 使用中
    更新料 新賃料 1ヶ月 物件番号 1130373815
    情報公開日 2025年12月9日 次回更新予定日 2025年12月23日
    ケータイ用バーコード

    QRコード

    スマートフォンでこの物件を見る
    スマートフォンからもこの物件をご覧になれます。
    ※「-」と表示されている項目については、情報提供会社にご確認ください。

    クイックお問い合わせ

    ここから簡単にお問い合わせをすることができます。
    (SSLでの暗号化での送信を希望されるお客さまは こちら よりお問い合わせください)

    お問い合わせ内容(必須)
    物件のお問い合わせ理由(必須)
    お名前・ご担当者様名(必須) 姓  名 
    メールアドレス(必須)
    ※携帯電話のメールアドレスをご入力される方はこちらをご確認ください
    電話番号(必須)
    - -
    備考欄 希望条件、物件案内希望日、質問などがございましたらご記入ください。
    お問い合わせを行う前に「個人情報の取り扱いについて」を必ずお読みください。
    「個人情報の取り扱いについて」に同意いただいた場合は「上記にご同意の上 確認画面へ進む」のボタンをクリックしてください。

    個人情報の取り扱いについて

    皆さまが送付された個人情報はアットホーム(株)のサーバを経由し、お問い合わせ先の不動産会社にメールまたはFAXにて転送されるためアットホーム(株)にも保管されます。アットホーム(株)で保管された個人情報の取り扱いについては、【こちら】をご覧ください。
    また、本画面でご記入いただいた個人情報は、お問い合わせ先の不動産会社でも保管します。 お問い合わせ先の不動産会社が保管する個人情報の取り扱いについては、不動産会社に直接お問い合わせください。

    情報提供会社

    情報提供会社

    (株)シンキング

    東京都知事免許(2)第99049号

    交通:
    東京メトロ丸ノ内線/新宿三丁目駅 徒歩3分
    東京都新宿区新宿5丁目11-25 アソルティ新宿5丁目 2階
    TEL:
    03-6274-8181
    FAX:
    03-6274-8182
    所属団体:
    (公社)東京都宅地建物取引業協会会員
    (公社)首都圏不動産公正取引協議会加盟

    取引態様:仲介

    • 会社情報
    • 00260858
    スマートフォンで
    この不動産会社を見る
    QRコード
    • お問い合わせ
    • 提携サイト等より掲載されている物件情報につきましては、不動産会社詳細情報にリンクされていないものがあります。
    • 物件に関するお問合せは、物件詳細ページの「情報提供会社」に表示されている不動産会社へ直接お願いいたします。
    • 間取図は、現況を優先させていただきます。
    • 映像は物件の一部を撮影したものです。物件の契約にあたっての最終判断はご自身の判断に基づいて行ってください。
    • 仲介手数料について仲介手数料

    アットホームは物件情報の適正化に努めております。 内容に誤りがある場合にはこちらへご連絡ください。


    物件画像: