賃貸や不動産はアットホーム-賃貸マンション・賃貸物件・不動産なら アットホーム

愛知県安城市百石町2丁目(南安城駅)の貸事務所:物件詳細

  • 物件詳細
  • 情報の見方
  • 印刷用画面
交通
所在地
駅徒歩 賃料
管理費等
敷金/保証金
礼金
使用部分面積
坪数/坪単価
物件種目
築年月

名鉄西尾線/南安城
[バス利用可] バス 5分 昭林公園東 停歩5分

愛知県安城市百石町2丁目

25分

44万円

なし

なし / 3ヶ月

1ヶ月

164.83m²

49.86坪/0.8825万円

貸事務所(建物一括)

2009年4月(築16年11ヶ月)

おすすめコメント  スタッフ: 事業用専門不動産

◆テンポアップ◆安城市百石町1-2階貸事務所◆7台駐車場有!♪業種の確認・ご相談などお気軽お問合せ下さい!!

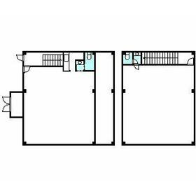
間取図

間取図

外観

外観

その他の画像
  • 外観
  • 外観
  • 周辺環境
  • 周辺環境
    • お問い合わせ
    交通

    名鉄西尾線 南安城駅 徒歩25分
    [バス利用可] バス 5分 昭林公園東 停歩5分

    その他の交通

    東海道本線 安城駅 徒歩28分
    [バス利用可] バス 6分 昭林公園東 停歩5分

    名鉄西尾線 碧海古井駅 徒歩29分
    [バス利用可] バス 11分 南中学校(安城市) 停歩2分

    所在地 愛知県安城市百石町2丁目
    物件種目 貸事務所(建物一括)
    賃料 44万円 管理費等 なし
    敷金 / 保証金 なし / 3ヶ月 礼金 1ヶ月
    敷引 坪単価 0.8825万円
    保証金償却 権利金
    造作譲渡 その他一時金 なし
    維持費等 保険等
    使用部分面積 164.83m² 坪数 49.86坪
    築年月 2009年4月(築16年11ヶ月) 階建 / 階 2階建 / 1階~2階部分
    駐車場 有 無料(空き7台) バイク置き場
    駐輪場 土地面積 226.51m²
    接道状況 用途地域 1種中高
    間取り 建物構造 鉄骨造
    アピールポイント 【TENPOUP】
    TENPOUP(テンポアップ)は家主様お客様と共に街づくり・街おこしを行い
    社会貢献及び経済活性化の為、事業用物件の仲介に特化した不動産会社になります!!

    店舗・事務所・倉庫・工場・借地の仲介を専門としお客様の繁盛店へのスタートのお手伝いを全力でサポートさせて頂きます。

    【店舗探しはテンポよく!】をモットーにお客様に迅速且つ的確な物件紹介、
    オープン・移転までの提携会社(内装業者、火災保険会社、インターネット回線、ガス会社等)の斡旋、オープン後のトラブル対応などお客様の商売がより繁盛できるサポート体制も準備しています。
    お客様の商売繁盛の為、家主様とお客様の橋渡しに真剣に取り組んでいます。
    是非街づくり・街おこしのお手伝いをお任せくださいませ。

    また弊社ホームページにて多種多様な物件情報を掲載しております。
    弊社にしかない自社管理物件情報・専任物件情報もございますので、ぜひ一度ご覧ください。

    店舗探しはテンポよく!!
    ぜひ事業用(店舗・事務所等)の物件探しはTENPOUPへお問い合わせください!!
    建物名・部屋番号 百石町2丁目貸事務所 1
    リフォーム履歴
    リノベーション履歴
    特記事項 IT重説対応物件
    備考
    賃貸保証等:加入要(ジェイリース 家賃保証会社加入(初回100%、更新料あり))
    管理形態/管理員の勤務形態:-/-
    都市計画:市街化区域
    IT重説対応物件
    1F 94.83㎡(約28.69坪) 2F 70.00㎡(約21.18坪)
    駐車場:小型車等も含めて7台程度駐車可
    エネルギー消費性能
    断熱性能
    目安光熱費
    バス・トイレ トイレ
    キッチン
    設備・サービス プロパンガス
    その他
    契約期間 3年 条件等
    引渡可能時期 即時 現況
    更新料 物件番号 1130177515
    情報公開日 2025年11月29日 次回更新予定日 2026年2月27日
    ケータイ用バーコード

    QRコード

    スマートフォンでこの物件を見る
    スマートフォンからもこの物件をご覧になれます。
    ※「-」と表示されている項目については、情報提供会社にご確認ください。

    クイックお問い合わせ

    ここから簡単にお問い合わせをすることができます。
    (SSLでの暗号化での送信を希望されるお客さまは こちら よりお問い合わせください)

    お問い合わせ内容(必須)
    物件のお問い合わせ理由(必須)
    お名前・ご担当者様名(必須) 姓  名 
    メールアドレス(必須)
    ※携帯電話のメールアドレスをご入力される方はこちらをご確認ください
    電話番号(必須)
    - -
    備考欄 希望条件、物件案内希望日、質問などがございましたらご記入ください。
    お問い合わせを行う前に「個人情報の取り扱いについて」を必ずお読みください。
    「個人情報の取り扱いについて」に同意いただいた場合は「上記にご同意の上 確認画面へ進む」のボタンをクリックしてください。

    個人情報の取り扱いについて

    皆さまが送付された個人情報はアットホーム(株)のサーバを経由し、お問い合わせ先の不動産会社にメールまたはFAXにて転送されるためアットホーム(株)にも保管されます。アットホーム(株)で保管された個人情報の取り扱いについては、【こちら】をご覧ください。
    また、本画面でご記入いただいた個人情報は、お問い合わせ先の不動産会社でも保管します。 お問い合わせ先の不動産会社が保管する個人情報の取り扱いについては、不動産会社に直接お問い合わせください。

    情報提供会社

    情報提供会社

    (株)TENPOUP

    愛知県知事免許(3)第22991号

    交通:
    名鉄名古屋本線/東岡崎駅 徒歩19分
    愛知県岡崎市上六名3丁目11番地2 
    TEL:
    0120-122-601
    FAX:
    0564-71-3566
    所属団体:
    (公社)愛知県宅地建物取引業協会会員
    東海不動産公正取引協議会加盟

    取引態様:仲介

    • 会社情報
    • 40404947
    スマートフォンで
    この不動産会社を見る
    QRコード
    • お問い合わせ
    • 提携サイト等より掲載されている物件情報につきましては、不動産会社詳細情報にリンクされていないものがあります。
    • 物件に関するお問合せは、物件詳細ページの「情報提供会社」に表示されている不動産会社へ直接お願いいたします。
    • 間取図は、現況を優先させていただきます。
    • 映像は物件の一部を撮影したものです。物件の契約にあたっての最終判断はご自身の判断に基づいて行ってください。
    • 仲介手数料について仲介手数料

    アットホームは物件情報の適正化に努めております。 内容に誤りがある場合にはこちらへご連絡ください。


    物件画像: