賃貸や不動産はアットホーム-賃貸マンション・賃貸物件・不動産なら アットホーム

大阪府大阪市西区新町1丁目(四ツ橋駅)の貸事務所:物件詳細

  • 物件詳細
  • 情報の見方
  • 印刷用画面
交通
所在地
駅徒歩 賃料
管理費等
敷金/保証金
礼金
使用部分面積
坪数/坪単価
物件種目
築年月

地下鉄四つ橋線/四ツ橋

大阪府大阪市西区新町1丁目

3分

22.7227万円

なし

8ヶ月 / なし

なし

71.77m²

21.71坪/1.0467万円

貸事務所

1989年10月(築36年3ヶ月)

おすすめコメント

24時間利用可!施設内会議室あり:無料!施設内喫煙所!

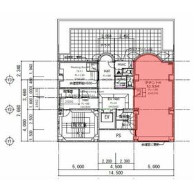
間取図

間取図

CT四ツ橋ビル 間取り

外観

外観

CT四ツ橋ビル 外観

その他の画像
  • エントランス
  • 共有部分
  • 室内
  • コンビニ
  • 販売店
  • 販売店
  • 販売店
  • 銀行
  • 郵便局
    • お問い合わせ
    交通

    地下鉄四つ橋線 四ツ橋駅 徒歩3分

    その他の交通

    地下鉄長堀鶴見緑地線 西大橋駅 徒歩5分

    地下鉄御堂筋線 心斎橋駅 徒歩6分

    所在地 大阪府大阪市西区新町1丁目
    物件種目 貸事務所
    賃料 22.7227万円 管理費等 なし
    敷金 / 保証金 8ヶ月 / なし 礼金 なし
    敷引 坪単価 1.0467万円
    保証金償却 権利金
    造作譲渡 その他一時金 なし
    維持費等 保険等
    使用部分面積 71.77m² 坪数 21.71坪
    築年月 1989年10月(築36年3ヶ月) 階建 / 階 地上7階地下1階建 / 7階
    駐車場 近有 33,000円/月 バイク置き場
    駐輪場 土地面積
    接道状況 用途地域
    間取り 建物構造 SRC
    アピールポイント 周辺には、徒歩3分で利用できる駅があります。IT向けに造られているので商業施設が多くありますよ。近くに駐車場がありますので、駐車スペースの心配は要りません。駐車場までの距離は300mです。賃料は95.3524万円です。店舗移転におススメですが、重飲食不可です。何でもそろっているのでIT向けとなっているんですよ。
    建物名・部屋番号 CT四ツ橋ビル
    リフォーム履歴
    リノベーション履歴
    特記事項 最上階
    備考
    管理形態/管理員の勤務形態:-/-
    当物件ご案内の際、現地でのお待ち合わせ等も可能です。
    お問い合わせ頂いた物件は勿論のこと、インターネットに掲載していないオススメ物件多数ございます。
    当店では、PayPayアプリや全物件ポイント・マイルが貯まるクレジットカード決済が可能です。 また、分割支払いも可能です。お気軽にお申し付け下さいませ。
    アフログループは大阪市内を中心に9店舗を展開している地域密着の不動産会社です。
    弊社ならではの、インターネットに掲載していないおすすめの物件も多数ございます。
    大阪府内全域のお部屋探しは、当店にお任せください。
    不動産経験の豊富な社員が、責任を持って対応させていただきます。
    また、賃貸・売買双方を専門に取り扱っており、幅広い視野でお客様にご提案させて頂きます。
    それぞれのメリット・デメリットをご説明させて頂き最良のご提案をさせて頂きます。
    お客さまの想像される1歩先を行き、常に感動を与え続けていけるようなサービスに取り組んでおります。
    そして、弊社の経営理念でもあります、『アフターフォロー』には特に力を入れております、ご契約後もしっかりとサポートさせて頂きます
    エネルギー消費性能
    断熱性能
    目安光熱費
    バス・トイレ 男女別トイレ、トイレ
    キッチン
    設備・サービス インターネット対応
    その他 エレベーター
    契約期間 2年 条件等
    引渡可能時期 即時 現況
    更新料 物件番号 1130035015
    情報公開日 2025年11月10日 次回更新予定日 2025年12月25日
    ケータイ用バーコード

    QRコード

    スマートフォンでこの物件を見る
    スマートフォンからもこの物件をご覧になれます。
    ※「-」と表示されている項目については、情報提供会社にご確認ください。

    この物件の周辺情報

    周辺施設 ローソン 西区新町1丁目店
    距離 80m
    周辺施設 セリア クリスタ長堀店
    距離 350m
    周辺施設 スギドラッグ 四ツ橋店
    距離 120m
    周辺施設 ザ・ダイソー DAISO 心斎橋店
    距離 520m
    周辺施設 みずほ銀行四ツ橋支店
    距離 240m
    周辺施設 大阪新町郵便局
    距離 80m

    クイックお問い合わせ

    ここから簡単にお問い合わせをすることができます。
    (SSLでの暗号化での送信を希望されるお客さまは こちら よりお問い合わせください)

    お問い合わせ内容(必須)
    物件のお問い合わせ理由(必須)
    お名前・ご担当者様名(必須) 姓  名 
    メールアドレス(必須)
    ※携帯電話のメールアドレスをご入力される方はこちらをご確認ください
    電話番号(必須)
    - -
    備考欄 希望条件、物件案内希望日、質問などがございましたらご記入ください。
    お問い合わせを行う前に「個人情報の取り扱いについて」を必ずお読みください。
    「個人情報の取り扱いについて」に同意いただいた場合は「上記にご同意の上 確認画面へ進む」のボタンをクリックしてください。

    個人情報の取り扱いについて

    皆さまが送付された個人情報はアットホーム(株)のサーバを経由し、お問い合わせ先の不動産会社にメールまたはFAXにて転送されるためアットホーム(株)にも保管されます。アットホーム(株)で保管された個人情報の取り扱いについては、【こちら】をご覧ください。
    また、本画面でご記入いただいた個人情報は、お問い合わせ先の不動産会社でも保管します。 お問い合わせ先の不動産会社が保管する個人情報の取り扱いについては、不動産会社に直接お問い合わせください。

    情報提供会社

    情報提供会社

    (株)アフロ AFLO西大橋堀江店

    大阪府知事免許(3)第58557号

    交通:
    地下鉄長堀鶴見緑地線/西大橋駅 徒歩1分
    大阪府大阪市西区北堀江2丁目1-15 気海ビル
    TEL:
    06-6536-5556
    FAX:
    06-6536-5557
    所属団体:
    (公社)全日本不動産協会会員
    (公社)近畿地区不動産公正取引協議会加盟

    取引態様:仲介

    • 会社情報
    • 50107915
    スマートフォンで
    この不動産会社を見る
    QRコード
    • お問い合わせ
    • 提携サイト等より掲載されている物件情報につきましては、不動産会社詳細情報にリンクされていないものがあります。
    • 物件に関するお問合せは、物件詳細ページの「情報提供会社」に表示されている不動産会社へ直接お願いいたします。
    • 間取図は、現況を優先させていただきます。
    • 映像は物件の一部を撮影したものです。物件の契約にあたっての最終判断はご自身の判断に基づいて行ってください。
    • 仲介手数料について仲介手数料

    アットホームは物件情報の適正化に努めております。 内容に誤りがある場合にはこちらへご連絡ください。


    物件画像: