賃貸や不動産はアットホーム-賃貸マンション・賃貸物件・不動産なら アットホーム

東京都新宿区西新宿6丁目(西新宿五丁目駅)の貸事務所:物件詳細

  • 物件詳細
  • 情報の見方
  • 印刷用画面
交通
所在地
駅徒歩 賃料
管理費等
敷金/保証金
礼金
使用部分面積
坪数/坪単価
物件種目
築年月

都営大江戸線/西新宿五丁目 新着

東京都新宿区西新宿6丁目

5分

35.0581万円

48,356円

6ヶ月 / なし

なし

72.67m²

21.98坪/1.5949万円

貸事務所

1985年4月(築40年9ヶ月)

おすすめコメント

アットホーム未掲載物件を多数掲載★0120-620-213★ ライヴェックスホームページで毎日更新、掲載物件数48000件!

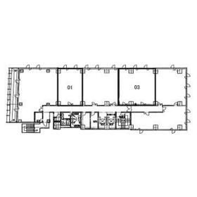
間取図

間取図

外観

外観

その他の画像
  • エントランス
  • 外観
    • お問い合わせ
    交通

    都営大江戸線 西新宿五丁目駅 徒歩5分

    その他の交通

    東京メトロ丸ノ内線 西新宿駅 徒歩6分

    JR山手線 新宿駅 徒歩15分

    所在地 東京都新宿区西新宿6丁目
    物件種目 貸事務所
    賃料 35.0581万円 管理費等 48,356円
    敷金 / 保証金 6ヶ月 / なし 礼金 なし
    敷引 坪単価 1.5949万円
    保証金償却 解約時1ヶ月 権利金
    造作譲渡 その他一時金 なし
    維持費等 保険等
    使用部分面積 72.67m² 坪数 21.98坪
    築年月 1985年4月(築40年9ヶ月) 階建 / 階 11階建 / 11階
    駐車場 バイク置き場
    駐輪場 土地面積
    接道状況 用途地域
    間取り 建物構造 RC
    建物名・部屋番号 新宿タツミ
    リフォーム履歴
    リノベーション履歴
    特記事項 最上階、IT重説対応物件
    備考
    管理形態/管理員の勤務形態:-/-
    IT重説対応物件
    店舗・保育園・介護施設・フィットネス・ト
    民泊・保育園・介護施設・フィットネス・トランクルーム・貸会議室などの物件は掲載しておりませんので、お問い合わせはお控えください。また、掲載物件以外にも多くの物件がご紹介可能です。契約後の内装工事・引越・什器などワンストップでご案内可能です。
    エネルギー消費性能
    断熱性能
    目安光熱費
    バス・トイレ
    キッチン
    設備・サービス
    その他 エレベーター
    契約期間 3年 条件等 定期借家定期借家
    引渡可能時期 即時 現況
    更新料 物件番号 1127578605
    情報公開日 2025年12月11日 次回更新予定日 2025年12月25日
    ケータイ用バーコード

    QRコード

    スマートフォンでこの物件を見る
    スマートフォンからもこの物件をご覧になれます。
    ※「-」と表示されている項目については、情報提供会社にご確認ください。

    クイックお問い合わせ

    ここから簡単にお問い合わせをすることができます。
    (SSLでの暗号化での送信を希望されるお客さまは こちら よりお問い合わせください)

    お問い合わせ内容(必須)
    物件のお問い合わせ理由(必須)
    お名前・ご担当者様名(必須) 姓  名 
    メールアドレス(必須)
    ※携帯電話のメールアドレスをご入力される方はこちらをご確認ください
    電話番号(必須)
    - -
    備考欄 希望条件、物件案内希望日、質問などがございましたらご記入ください。
    お問い合わせを行う前に「個人情報の取り扱いについて」を必ずお読みください。
    「個人情報の取り扱いについて」に同意いただいた場合は「上記にご同意の上 確認画面へ進む」のボタンをクリックしてください。

    個人情報の取り扱いについて

    皆さまが送付された個人情報はアットホーム(株)のサーバを経由し、お問い合わせ先の不動産会社にメールまたはFAXにて転送されるためアットホーム(株)にも保管されます。アットホーム(株)で保管された個人情報の取り扱いについては、【こちら】をご覧ください。
    また、本画面でご記入いただいた個人情報は、お問い合わせ先の不動産会社でも保管します。 お問い合わせ先の不動産会社が保管する個人情報の取り扱いについては、不動産会社に直接お問い合わせください。

    情報提供会社

    情報提供会社

    (株)ライヴェックス

    東京都知事免許(5)第83956号

    交通:
    東京メトロ日比谷線/小伝馬町駅 徒歩3分
    東京都中央区日本橋大伝馬町3-2 Daiwa小伝馬町ビル8F
    TEL:
    03-5847-7200
    FAX:
    03-5847-7170
    所属団体:
    (公社)東京都宅地建物取引業協会会員
    (公社)首都圏不動産公正取引協議会加盟

    取引態様:仲介

    • 会社情報
    • 00810483
    スマートフォンで
    この不動産会社を見る
    QRコード
    • お問い合わせ
    • 提携サイト等より掲載されている物件情報につきましては、不動産会社詳細情報にリンクされていないものがあります。
    • 物件に関するお問合せは、物件詳細ページの「情報提供会社」に表示されている不動産会社へ直接お願いいたします。
    • 間取図は、現況を優先させていただきます。
    • 映像は物件の一部を撮影したものです。物件の契約にあたっての最終判断はご自身の判断に基づいて行ってください。
    • 仲介手数料について仲介手数料

    アットホームは物件情報の適正化に努めております。 内容に誤りがある場合にはこちらへご連絡ください。


    物件画像: