賃貸や不動産はアットホーム-賃貸マンション・賃貸物件・不動産なら アットホーム

東京都千代田区神田和泉町(秋葉原駅)の貸事務所:物件詳細

  • 物件詳細
  • 情報の見方
  • 印刷用画面
交通
所在地
駅徒歩 賃料
管理費等
敷金/保証金
礼金
使用部分面積
坪数/坪単価
物件種目
築年月

JR山手線/秋葉原

東京都千代田区神田和泉町

4分

39.0699万円

101,292円

355.181万円 / なし

なし

86.97m²

26.30坪/1.4851万円

貸事務所

1983年9月(築42年4ヶ月)

おすすめコメント

こちらの物件は【飲食・トランクルーム・貸会議室・福祉サービス等は不可となっております】

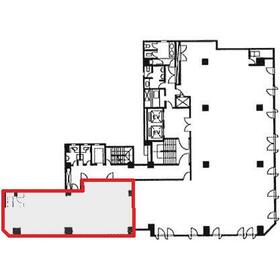
間取図

間取図

外観

外観

その他の画像
  • 外観
  • 外観
  • 共有部分
    • お問い合わせ
    交通

    JR山手線 秋葉原駅 徒歩4分

    その他の交通

    東京メトロ銀座線 末広町駅 徒歩6分

    つくばエクスプレス 秋葉原駅 徒歩3分

    所在地 東京都千代田区神田和泉町
    物件種目 貸事務所
    賃料 39.0699万円 管理費等 101,292円
    敷金 / 保証金 355.181万円 / なし 礼金 なし
    敷引 坪単価 1.4851万円
    保証金償却 権利金
    造作譲渡 その他一時金 なし
    維持費等 保険等
    使用部分面積 86.97m² 坪数 26.30坪
    築年月 1983年9月(築42年4ヶ月) 階建 / 階 9階建 / 8階
    駐車場 空無 バイク置き場
    駐輪場 土地面積
    接道状況 用途地域
    間取り 建物構造 SRC
    建物名・部屋番号  
    リフォーム履歴
    リノベーション履歴
    特記事項 24時間利用可、OAフロア
    備考
    管理形態/管理員の勤務形態:-/-
    当社掲載の物件は原則事務所用途となっております【飲食・トランクルーム・貸会議室・レンタルオフィス・福祉サービス等の業種不可となります】⇒それ以外の店舗用途の物件のご相談についてはお問い合わせください また、オフィス街の主要な物件は全て網羅しておりますので掲載物件以外に非公開物件からもご紹介可能です。
    エネルギー消費性能
    断熱性能
    目安光熱費
    バス・トイレ 男女別トイレ
    キッチン
    設備・サービス インターネット対応、光ファイバー
    その他 エレベーター2基以上、エレベーター
    契約期間 2年 条件等
    引渡可能時期 即時 現況
    仲介手数料 1.1ヶ月    
    更新料 物件番号 1100008416
    情報公開日 2025年11月4日 次回更新予定日 2025年12月19日
    ケータイ用バーコード

    QRコード

    スマートフォンでこの物件を見る
    スマートフォンからもこの物件をご覧になれます。
    ※「-」と表示されている項目については、情報提供会社にご確認ください。

    クイックお問い合わせ

    ここから簡単にお問い合わせをすることができます。
    (SSLでの暗号化での送信を希望されるお客さまは こちら よりお問い合わせください)

    お問い合わせ内容(必須)
    物件のお問い合わせ理由(必須)
    お名前・ご担当者様名(必須) 姓  名 
    メールアドレス(必須)
    ※携帯電話のメールアドレスをご入力される方はこちらをご確認ください
    電話番号(必須)
    - -
    備考欄 希望条件、物件案内希望日、質問などがございましたらご記入ください。
    お問い合わせを行う前に「個人情報の取り扱いについて」を必ずお読みください。
    「個人情報の取り扱いについて」に同意いただいた場合は「上記にご同意の上 確認画面へ進む」のボタンをクリックしてください。

    個人情報の取り扱いについて

    皆さまが送付された個人情報はアットホーム(株)のサーバを経由し、お問い合わせ先の不動産会社にメールまたはFAXにて転送されるためアットホーム(株)にも保管されます。アットホーム(株)で保管された個人情報の取り扱いについては、【こちら】をご覧ください。
    また、本画面でご記入いただいた個人情報は、お問い合わせ先の不動産会社でも保管します。 お問い合わせ先の不動産会社が保管する個人情報の取り扱いについては、不動産会社に直接お問い合わせください。

    情報提供会社

    情報提供会社

    (株)エステートエージェンシー 東京支店

    国土交通大臣免許(1)第9977号

    交通:
    JR山手線/神田駅 徒歩2分
    東京都千代田区神田鍛冶町3丁目3-9 喜助新千代田ビル 3階
    TEL:
    03-4400-6636
    FAX:
    03-6629-4664
    所属団体:
    (公社)東京都宅地建物取引業協会会員
    (公社)首都圏不動産公正取引協議会加盟

    取引態様:仲介

    • 会社情報
    • 00271191
    スマートフォンで
    この不動産会社を見る
    QRコード
    • お問い合わせ
    • 提携サイト等より掲載されている物件情報につきましては、不動産会社詳細情報にリンクされていないものがあります。
    • 物件に関するお問合せは、物件詳細ページの「情報提供会社」に表示されている不動産会社へ直接お願いいたします。
    • 間取図は、現況を優先させていただきます。
    • 映像は物件の一部を撮影したものです。物件の契約にあたっての最終判断はご自身の判断に基づいて行ってください。
    • 仲介手数料について仲介手数料

    アットホームは物件情報の適正化に努めております。 内容に誤りがある場合にはこちらへご連絡ください。


    物件画像: