賃貸や不動産はアットホーム-賃貸マンション・賃貸物件・不動産なら アットホーム

東京都港区芝浦2丁目(田町駅)の貸事務所:物件詳細

  • 物件詳細
  • 情報の見方
  • 印刷用画面
交通
所在地
駅徒歩 賃料
管理費等
敷金/保証金
礼金
使用部分面積
坪数/坪単価
物件種目
築年月

JR山手線/田町 新着

東京都港区芝浦2丁目

7分

172.315万円

なし

なし / 10ヶ月

なし

207.14m²

62.65坪/2.7501万円

貸事務所

1984年7月(築41年6ヶ月)

おすすめコメント

ケン・コーポレーションは支店や営業所の開設、本社の拡大・統合など、ビジネスを促進させるためのオフィス移転をプロフェッショナルなサービスでサポートします。

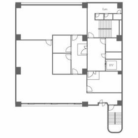
間取図

間取図

間取図

外観

外観

外観ほか

<
その他の画像
  • 外観
  • 外観
  • 外観
  • 外観
  • 外観
  • 室内
  • 室内
  • 室内
  • 室内
  • 室内
  • 室内
  • 室内
>
    • お問い合わせ
    交通

    JR山手線 田町駅 徒歩7分

    その他の交通

    都営三田線 三田駅 徒歩10分

    新交通ゆりかもめ 芝浦ふ頭駅 徒歩10分

    所在地 東京都港区芝浦2丁目
    物件種目 貸事務所
    賃料 172.315万円 管理費等 なし
    敷金 / 保証金 なし / 10ヶ月 礼金 なし
    敷引 坪単価 2.7501万円
    保証金償却 権利金
    造作譲渡 その他一時金 なし
    維持費等 保険等
    使用部分面積 207.14m² 坪数 62.65坪
    築年月 1984年7月(築41年6ヶ月) 階建 / 階 6階建 / 2階
    駐車場 バイク置き場
    駐輪場 土地面積
    接道状況 用途地域
    間取り 建物構造 SRC
    建物名・部屋番号 第四田町ビル
    リフォーム履歴
    リノベーション履歴
    特記事項 飲食店不可
    備考
    管理形態/管理員の勤務形態:-/-
    所属階2階。
    エネルギー消費性能
    断熱性能
    目安光熱費
    バス・トイレ 共用部分に男女別トイレあり
    キッチン
    設備・サービス 個別空調、エアコン
    その他 エレベーター
    契約期間 2年 条件等 定期借家定期借家
    引渡可能時期 2026年4月上旬予定 現況 使用中
    更新料 なし 物件番号 1082369440
    情報公開日 2025年12月17日 次回更新予定日 2025年12月31日
    ケータイ用バーコード

    QRコード

    スマートフォンでこの物件を見る
    スマートフォンからもこの物件をご覧になれます。
    ※「-」と表示されている項目については、情報提供会社にご確認ください。

    クイックお問い合わせ

    ここから簡単にお問い合わせをすることができます。
    (SSLでの暗号化での送信を希望されるお客さまは こちら よりお問い合わせください)

    お問い合わせ内容(必須)
    物件のお問い合わせ理由(必須)
    お名前・ご担当者様名(必須) 姓  名 
    メールアドレス(必須)
    ※携帯電話のメールアドレスをご入力される方はこちらをご確認ください
    電話番号(必須)
    - -
    備考欄 希望条件、物件案内希望日、質問などがございましたらご記入ください。
    お問い合わせを行う前に「個人情報の取り扱いについて」を必ずお読みください。
    「個人情報の取り扱いについて」に同意いただいた場合は「上記にご同意の上 確認画面へ進む」のボタンをクリックしてください。

    個人情報の取り扱いについて

    皆さまが送付された個人情報はアットホーム(株)のサーバを経由し、お問い合わせ先の不動産会社にメールまたはFAXにて転送されるためアットホーム(株)にも保管されます。アットホーム(株)で保管された個人情報の取り扱いについては、【こちら】をご覧ください。
    また、本画面でご記入いただいた個人情報は、お問い合わせ先の不動産会社でも保管します。 お問い合わせ先の不動産会社が保管する個人情報の取り扱いについては、不動産会社に直接お問い合わせください。

    情報提供会社

    情報提供会社

    (株)ケン・コーポレーション ビル営業部

    国土交通大臣免許(8)第4372号

    交通:
    東京メトロ日比谷線/六本木駅 徒歩3分
    東京都港区西麻布1丁目2-7 KN127ビル9F
    TEL:
    03-5413-5613
    FAX:
    03-5413-5610
    所属団体:
    (一社)不動産流通経営協会会員
    (公社)首都圏不動産公正取引協議会加盟

    取引態様:仲介

    • 会社情報
    • 00140337
    スマートフォンで
    この不動産会社を見る
    QRコード
    • お問い合わせ
    • 提携サイト等より掲載されている物件情報につきましては、不動産会社詳細情報にリンクされていないものがあります。
    • 物件に関するお問合せは、物件詳細ページの「情報提供会社」に表示されている不動産会社へ直接お願いいたします。
    • 間取図は、現況を優先させていただきます。
    • 映像は物件の一部を撮影したものです。物件の契約にあたっての最終判断はご自身の判断に基づいて行ってください。
    • 仲介手数料について仲介手数料

    アットホームは物件情報の適正化に努めております。 内容に誤りがある場合にはこちらへご連絡ください。


    物件画像: