賃貸や不動産はアットホーム-賃貸マンション・賃貸物件・不動産なら アットホーム

山形県山形市本町2丁目(山形駅)の貸事務所:物件詳細

  • 物件詳細
  • 情報の見方
  • 印刷用画面
交通
所在地
駅徒歩 賃料
管理費等
敷金/保証金
礼金
使用部分面積
坪数/坪単価
物件種目
築年月

JR奥羽本線/山形

山形県山形市本町2丁目

10分

24.68万円

なし

3ヶ月 / なし

なし

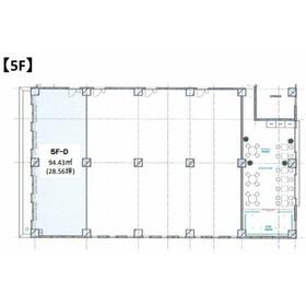
94.44m²

28.56坪/0.864万円

貸事務所

1984年1月(築41年11ヶ月)

おすすめコメント  スタッフ: 今野 喜秋

シックに仕上げた内装♪心落ち着くリフレッシュルーム新設!!

間取図

間取図

外観

外観

<
その他の画像
  • 室内
  • 室内
  • 室内
  • 室内
  • 共有部分
  • 共有部分
  • 共有部分
  • 共有部分
  • 共有部分
  • 共有部分
  • 共有部分
  • 共有部分
  • 共有部分
  • 共有部分
  • 共有部分
  • 駐車場
  • 駐車場
  • 外観
>
    • お問い合わせ
    交通

    JR奥羽本線 山形駅 徒歩10分

    所在地 山形県山形市本町2丁目
    物件種目 貸事務所
    賃料 24.68万円 管理費等 なし
    敷金 / 保証金 3ヶ月 / なし 礼金 なし
    敷引 坪単価 0.864万円
    保証金償却 権利金
    造作譲渡 その他一時金 なし
    維持費等 保険等
    使用部分面積 94.44m² 坪数 28.56坪
    築年月 1984年1月(築41年11ヶ月) 階建 / 階 6階建 / 5階
    駐車場 空無 バイク置き場
    駐輪場 土地面積
    接道状況 用途地域
    間取り 建物構造 SRC
    建物名・部屋番号 山形本町ビル 5F
    リフォーム履歴
    リノベーション履歴
    特記事項 OAフロア、飲食店不可、天井高2.5M以上、IT重説対応物件
    備考
    管理形態/管理員の勤務形態:-/-
    IT重説対応物件
    2018年リノベーションのキレイなオフィスビル♪リフレッシュルームや喫煙ルームなど共用施設も充実♪
    水道光熱費別途請求 
    5階にリフレッシュルーム設置
    エネルギー消費性能
    断熱性能
    目安光熱費
    バス・トイレ 男女別トイレ、トイレ
    キッチン
    設備・サービス 個別空調、エアコン、インターネット対応、光ファイバー
    その他 エレベーター2基以上、エレベーター
    契約期間 2年 条件等
    引渡可能時期 相談 現況 使用中
    仲介手数料 1ヶ月    
    更新料 物件番号 1077680486
    情報公開日 2025年4月27日 次回更新予定日 2025年11月14日
    ケータイ用バーコード

    QRコード

    スマートフォンでこの物件を見る
    スマートフォンからもこの物件をご覧になれます。
    ※「-」と表示されている項目については、情報提供会社にご確認ください。

    クイックお問い合わせ

    ここから簡単にお問い合わせをすることができます。
    (SSLでの暗号化での送信を希望されるお客さまは こちら よりお問い合わせください)

    お問い合わせ内容(必須)
    物件のお問い合わせ理由(必須)
    お名前・ご担当者様名(必須) 姓  名 
    メールアドレス(必須)
    ※携帯電話のメールアドレスをご入力される方はこちらをご確認ください
    電話番号(必須)
    - -
    備考欄 希望条件、物件案内希望日、質問などがございましたらご記入ください。
    お問い合わせを行う前に「個人情報の取り扱いについて」を必ずお読みください。
    「個人情報の取り扱いについて」に同意いただいた場合は「上記にご同意の上 確認画面へ進む」のボタンをクリックしてください。

    個人情報の取り扱いについて

    皆さまが送付された個人情報はアットホーム(株)のサーバを経由し、お問い合わせ先の不動産会社にメールまたはFAXにて転送されるためアットホーム(株)にも保管されます。アットホーム(株)で保管された個人情報の取り扱いについては、【こちら】をご覧ください。
    また、本画面でご記入いただいた個人情報は、お問い合わせ先の不動産会社でも保管します。 お問い合わせ先の不動産会社が保管する個人情報の取り扱いについては、不動産会社に直接お問い合わせください。

    情報提供会社

    情報提供会社

    (株)エンタツ

    宮城県知事免許(9)第3195号

    交通:
    仙台市南北線/仙台駅 徒歩1分
    宮城県仙台市青葉区中央3丁目7-1 エンタツパーキングビル1F
    TEL:
    022-224-2011
    FAX:
    022-224-2012
    所属団体:
    (公社)宮城県宅地建物取引業協会会員
    東北地区不動産公正取引協議会加盟

    取引態様:仲介

    • 会社情報
    • 20000205
    スマートフォンで
    この不動産会社を見る
    QRコード
    • お問い合わせ
    • 提携サイト等より掲載されている物件情報につきましては、不動産会社詳細情報にリンクされていないものがあります。
    • 物件に関するお問合せは、物件詳細ページの「情報提供会社」に表示されている不動産会社へ直接お願いいたします。
    • 間取図は、現況を優先させていただきます。
    • 映像は物件の一部を撮影したものです。物件の契約にあたっての最終判断はご自身の判断に基づいて行ってください。
    • 仲介手数料について仲介手数料

    アットホームは物件情報の適正化に努めております。 内容に誤りがある場合にはこちらへご連絡ください。


    物件画像: