賃貸や不動産はアットホーム-賃貸マンション・賃貸物件・不動産なら アットホーム

東京都渋谷区笹塚1丁目(笹塚駅)の貸事務所:物件詳細

  • 物件詳細
  • 情報の見方
  • 印刷用画面
交通
所在地
駅徒歩 賃料
管理費等
敷金/保証金
礼金
使用部分面積
坪数/坪単価
物件種目
築年月

京王線/笹塚

東京都渋谷区笹塚1丁目

1分

18.26万円

5,500円

3ヶ月 / なし

1ヶ月

36.70m²

11.10坪/1.6448万円

貸事務所

1986年2月(築39年10ヶ月)

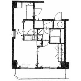
間取図

間取図

外観

外観

その他の画像
  • エントランス
  • 共有部分
  • 共有部分
  • 共有部分
  • 共有部分
  • 共有部分
  • 共有部分
    • お問い合わせ
    交通

    京王線 笹塚駅 徒歩1分

    その他の交通

    京王線 代田橋駅 徒歩10分

    京王線 幡ヶ谷駅 徒歩11分

    所在地 東京都渋谷区笹塚1丁目
    物件種目 貸事務所
    賃料 18.26万円 管理費等 5,500円
    敷金 / 保証金 3ヶ月 / なし 礼金 1ヶ月
    敷引 坪単価 1.6448万円
    保証金償却 権利金
    造作譲渡 その他一時金 なし
    維持費等 保険等
    使用部分面積 36.70m² 坪数 11.10坪
    築年月 1986年2月(築39年10ヶ月) 階建 / 階 11階建 / 7階
    駐車場 バイク置き場
    駐輪場 土地面積
    接道状況 用途地域
    間取り 建物構造 SRC
    建物名・部屋番号  
    リフォーム履歴
    リノベーション履歴
    特記事項
    備考
    管理形態/管理員の勤務形態:-/-
    笹塚駅前の好立地にある物件です。
    新耐震・エレベーター・全室エアコン付・機械警備・光ファイバー・別途ルームクリーニング代、エアコンクリーニング代、鍵交換代等あり・(再契約料)新賃料の1ヶ月分
    エネルギー消費性能
    断熱性能
    目安光熱費
    バス・トイレ トイレ
    キッチン
    設備・サービス 個別空調、エアコン、インターネット対応、光ファイバー
    その他 エレベーター
    契約期間 2年 条件等 定期借家定期借家
    引渡可能時期 即時 現況
    更新料 物件番号 1076780982
    情報公開日 2025年7月12日 次回更新予定日 2025年11月10日
    ケータイ用バーコード

    QRコード

    スマートフォンでこの物件を見る
    スマートフォンからもこの物件をご覧になれます。
    ※「-」と表示されている項目については、情報提供会社にご確認ください。

    クイックお問い合わせ

    ここから簡単にお問い合わせをすることができます。
    (SSLでの暗号化での送信を希望されるお客さまは こちら よりお問い合わせください)

    お問い合わせ内容(必須)
    物件のお問い合わせ理由(必須)
    お名前・ご担当者様名(必須) 姓  名 
    メールアドレス(必須)
    ※携帯電話のメールアドレスをご入力される方はこちらをご確認ください
    電話番号(必須)
    - -
    備考欄 希望条件、物件案内希望日、質問などがございましたらご記入ください。
    お問い合わせを行う前に「個人情報の取り扱いについて」を必ずお読みください。
    「個人情報の取り扱いについて」に同意いただいた場合は「上記にご同意の上 確認画面へ進む」のボタンをクリックしてください。

    個人情報の取り扱いについて

    皆さまが送付された個人情報はアットホーム(株)のサーバを経由し、お問い合わせ先の不動産会社にメールまたはFAXにて転送されるためアットホーム(株)にも保管されます。アットホーム(株)で保管された個人情報の取り扱いについては、【こちら】をご覧ください。
    また、本画面でご記入いただいた個人情報は、お問い合わせ先の不動産会社でも保管します。 お問い合わせ先の不動産会社が保管する個人情報の取り扱いについては、不動産会社に直接お問い合わせください。

    情報提供会社

    情報提供会社

    トップクォーター(株)

    東京都知事免許(7)第70546号

    交通:
    JR山手線/東京駅 徒歩9分
    東京都中央区日本橋兜町3-3 兜町平和ビル6F
    TEL:
    03-3669-9000
    FAX:
    03-3669-9001
    所属団体:
    (公社)全日本不動産協会会員
    (公社)首都圏不動産公正取引協議会加盟

    取引態様:仲介

    • 会社情報
    • 00065869
    スマートフォンで
    この不動産会社を見る
    QRコード
    • お問い合わせ
    • 提携サイト等より掲載されている物件情報につきましては、不動産会社詳細情報にリンクされていないものがあります。
    • 物件に関するお問合せは、物件詳細ページの「情報提供会社」に表示されている不動産会社へ直接お願いいたします。
    • 間取図は、現況を優先させていただきます。
    • 映像は物件の一部を撮影したものです。物件の契約にあたっての最終判断はご自身の判断に基づいて行ってください。
    • 仲介手数料について仲介手数料

    アットホームは物件情報の適正化に努めております。 内容に誤りがある場合にはこちらへご連絡ください。


    物件画像: