賃貸や不動産はアットホーム-賃貸マンション・賃貸物件・不動産なら アットホーム

愛知県名古屋市中川区荒子5丁目(高畑駅)の貸事務所:物件詳細

  • 物件詳細
  • 情報の見方
  • 印刷用画面
交通
所在地
駅徒歩 賃料
管理費等
敷金/保証金
礼金
使用部分面積
坪数/坪単価
物件種目
築年月

名古屋市東山線/高畑

愛知県名古屋市中川区荒子5丁目

13分

19.25万円

1,100円

4ヶ月 / なし

なし

120.96m²

36.59坪/0.5261万円

貸事務所

1991年6月(築34年7ヶ月)

おすすめコメント

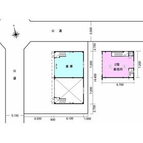
1階は倉庫、2階は事務所。

間取図

間取図

外観

外観

<
その他の画像
  • 玄関
  • キッチン
  • その他
  • その他
  • その他
  • 洗面
  • その他
  • その他
  • 収納
  • 駐車場
  • 設備
  • トイレ
  • コンビニ
  • コンビニ
  • ショッピング施設
  • その他
  • 飲食店
  • 販売店
>
    • お問い合わせ
    交通

    名古屋市東山線 高畑駅 徒歩13分

    所在地 愛知県名古屋市中川区荒子5丁目
    物件種目 貸事務所
    賃料 19.25万円 管理費等 1,100円
    敷金 / 保証金 4ヶ月 / なし 礼金 なし
    敷引 坪単価 0.5261万円
    保証金償却 権利金
    造作譲渡 その他一時金 なし
    維持費等 保険等
    使用部分面積 120.96m² 坪数 36.59坪
    築年月 1991年6月(築34年7ヶ月) 階建 / 階 2階建 / 1階
    駐車場 バイク置き場
    駐輪場 土地面積
    接道状況 用途地域 1種住居
    間取り 建物構造 鉄骨造
    建物名・部屋番号 荒子5丁目倉庫付事務所 101
    リフォーム履歴
    リノベーション履歴
    特記事項
    備考
    賃貸保証等:加入要(契約時保証委託料:賃料総額の50%/月額保証委託料:賃料総額の2%)
    管理形態/管理員の勤務形態:-/-
    都市計画:市街化区域
    賃料等月額を口座引落としでお支払いいただく場合は、収納手数料 170円がかかります。貸主インボイス登録あり
    エネルギー消費性能
    断熱性能
    目安光熱費
    バス・トイレ
    キッチン
    設備・サービス プロパンガス、エアコン
    その他
    契約期間 3年 条件等
    引渡可能時期 即時 現況
    更新料 なし 物件番号 1056358430
    情報公開日 2025年12月6日 次回更新予定日 2025年12月20日
    ケータイ用バーコード

    QRコード

    スマートフォンでこの物件を見る
    スマートフォンからもこの物件をご覧になれます。
    ※「-」と表示されている項目については、情報提供会社にご確認ください。

    この物件の周辺情報

    周辺施設 ローソン
    距離 200m
    周辺施設 セブンイレブン
    距離 370m
    周辺施設 ヤマナカフランテ・エディオン
    距離 650m
    周辺施設 ツタヤ
    距離 800m
    周辺施設 マクドナルド
    距離 850m
    周辺施設 スギ薬局
    距離 1100m

    クイックお問い合わせ

    ここから簡単にお問い合わせをすることができます。
    (SSLでの暗号化での送信を希望されるお客さまは こちら よりお問い合わせください)

    お問い合わせ内容(必須)
    物件のお問い合わせ理由(必須)
    お名前・ご担当者様名(必須) 姓  名 
    メールアドレス(必須)
    ※携帯電話のメールアドレスをご入力される方はこちらをご確認ください
    電話番号(必須)
    - -
    備考欄 希望条件、物件案内希望日、質問などがございましたらご記入ください。
    お問い合わせを行う前に「個人情報の取り扱いについて」を必ずお読みください。
    「個人情報の取り扱いについて」に同意いただいた場合は「上記にご同意の上 確認画面へ進む」のボタンをクリックしてください。

    個人情報の取り扱いについて

    皆さまが送付された個人情報はアットホーム(株)のサーバを経由し、お問い合わせ先の不動産会社にメールまたはFAXにて転送されるためアットホーム(株)にも保管されます。アットホーム(株)で保管された個人情報の取り扱いについては、【こちら】をご覧ください。
    また、本画面でご記入いただいた個人情報は、お問い合わせ先の不動産会社でも保管します。 お問い合わせ先の不動産会社が保管する個人情報の取り扱いについては、不動産会社に直接お問い合わせください。

    情報提供会社

    情報提供会社

    大東建託リーシング(株) 高畑店

    国土交通大臣免許(2)第9120号

    交通:
    名古屋市東山線/高畑駅 徒歩6分
    愛知県名古屋市中川区高畑2丁目359 
    TEL:
    052-352-9414
    FAX:
    052-352-9415
    所属団体:
    (公財)日本賃貸住宅管理協会会員
    (一社)全国住宅産業協会会員
    (公社)首都圏不動産公正取引協議会加盟

    取引態様:仲介

    • 会社情報
    • 40007405
    スマートフォンで
    この不動産会社を見る
    QRコード
    • お問い合わせ
    • 提携サイト等より掲載されている物件情報につきましては、不動産会社詳細情報にリンクされていないものがあります。
    • 物件に関するお問合せは、物件詳細ページの「情報提供会社」に表示されている不動産会社へ直接お願いいたします。
    • 間取図は、現況を優先させていただきます。
    • 映像は物件の一部を撮影したものです。物件の契約にあたっての最終判断はご自身の判断に基づいて行ってください。
    • 仲介手数料について仲介手数料

    アットホームは物件情報の適正化に努めております。 内容に誤りがある場合にはこちらへご連絡ください。


    物件画像: