賃貸や不動産はアットホーム-賃貸マンション・賃貸物件・不動産なら アットホーム

東京都品川区西五反田7丁目(大崎広小路駅)の貸事務所:物件詳細

  • 物件詳細
  • 情報の見方
  • 印刷用画面
交通
所在地
駅徒歩 賃料
管理費等
敷金/保証金
礼金
使用部分面積
坪数/坪単価
物件種目
築年月

東急池上線/大崎広小路

東京都品川区西五反田7丁目

4分

36.696万円

61,160円

6ヶ月 / なし

なし

91.90m²

27.79坪/1.3201万円

貸事務所

1970年12月(築55年5ヶ月)

おすすめコメント  スタッフ: 矢冨

ご希望物件のご提案から現地へのご案内、ご契約まで、業務に精通したスタッフがきめ細かく対応いたします。何なりとご相談ください。

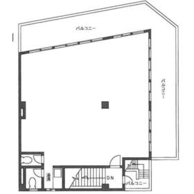
間取図

間取図

間取り

外観

外観

外観

その他の画像
  • 外観
  • 外観
  • エントランス
  • 外観
  • エントランス
  • エントランス
  • 外観
  • エントランス
    • お問い合わせ
    交通

    東急池上線 大崎広小路駅 徒歩4分

    その他の交通

    JR山手線 五反田駅 徒歩5分

    東急目黒線 不動前駅 徒歩10分

    所在地 東京都品川区西五反田7丁目
    物件種目 貸事務所
    賃料 36.696万円 管理費等 61,160円
    敷金 / 保証金 6ヶ月 / なし 礼金 なし
    敷引 実費 坪単価 1.3201万円
    保証金償却 権利金
    造作譲渡 その他一時金 なし
    維持費等 保険等
    使用部分面積 91.90m² 坪数 27.79坪
    築年月 1970年12月(築55年5ヶ月) 階建 / 階 4階建 / 4階
    駐車場 バイク置き場
    駐輪場 土地面積
    接道状況 用途地域
    間取り 建物構造 RC
    建物名・部屋番号 第三花田 4F
    リフォーム履歴
    リノベーション履歴
    特記事項 最上階
    備考
    管理形態/管理員の勤務形態:-/-
    エネルギー消費性能
    断熱性能
    目安光熱費
    バス・トイレ
    キッチン
    設備・サービス エアコン
    その他 エレベーター
    契約期間 2年 条件等
    引渡可能時期 即時 現況
    更新料 物件番号 1041605444
    情報公開日 2025年12月13日 次回更新予定日 2026年4月13日
    ケータイ用バーコード

    QRコード

    スマートフォンでこの物件を見る
    スマートフォンからもこの物件をご覧になれます。
    ※「-」と表示されている項目については、情報提供会社にご確認ください。

    クイックお問い合わせ

    ここから簡単にお問い合わせをすることができます。
    (SSLでの暗号化での送信を希望されるお客さまは こちら よりお問い合わせください)

    お問い合わせ内容(必須)
    物件のお問い合わせ理由(必須)
    お名前・ご担当者様名(必須) 姓  名 
    メールアドレス(必須)
    ※携帯電話のメールアドレスをご入力される方はこちらをご確認ください
    電話番号(必須)
    - -
    備考欄 希望条件、物件案内希望日、質問などがございましたらご記入ください。
    お問い合わせを行う前に「個人情報の取り扱いについて」を必ずお読みください。
    「個人情報の取り扱いについて」に同意いただいた場合は「上記にご同意の上 確認画面へ進む」のボタンをクリックしてください。

    個人情報の取り扱いについて

    皆さまが送付された個人情報はアットホーム(株)のサーバを経由し、お問い合わせ先の不動産会社にメールまたはFAXにて転送されるためアットホーム(株)にも保管されます。アットホーム(株)で保管された個人情報の取り扱いについては、【こちら】をご覧ください。
    また、本画面でご記入いただいた個人情報は、お問い合わせ先の不動産会社でも保管します。 お問い合わせ先の不動産会社が保管する個人情報の取り扱いについては、不動産会社に直接お問い合わせください。

    情報提供会社

    情報提供会社

    (株)アドマイアー

    東京都知事免許(3)第94663号

    交通:
    JR山手線/東京駅 徒歩4分
    東京都中央区日本橋3丁目2-3 ユニバース第1ビル2階
    TEL:
    03-5204-1031
    FAX:
    03-5204-1032
    所属団体:
    (公社)全日本不動産協会会員
    (公社)首都圏不動産公正取引協議会加盟

    取引態様:仲介

    • 会社情報
    • 00019724
    スマートフォンで
    この不動産会社を見る
    QRコード
    • お問い合わせ
    • 提携サイト等より掲載されている物件情報につきましては、不動産会社詳細情報にリンクされていないものがあります。
    • 物件に関するお問合せは、物件詳細ページの「情報提供会社」に表示されている不動産会社へ直接お願いいたします。
    • 間取図は、現況を優先させていただきます。
    • 映像は物件の一部を撮影したものです。物件の契約にあたっての最終判断はご自身の判断に基づいて行ってください。
    • 仲介手数料について仲介手数料

    アットホームは物件情報の適正化に努めております。 内容に誤りがある場合にはこちらへご連絡ください。


    物件画像: