賃貸や不動産はアットホーム-賃貸マンション・賃貸物件・不動産なら アットホーム

愛知県名古屋市千種区末盛通1丁目(覚王山駅)の貸事務所:物件詳細

  • 物件詳細
  • 情報の見方
  • 印刷用画面
交通
所在地
駅徒歩 賃料
管理費等
敷金/保証金
礼金
使用部分面積
坪数/坪単価
物件種目
築年月

名古屋市東山線/覚王山

愛知県名古屋市千種区末盛通1丁目

1分

27.5万円

5,500円

なし / 150万円

なし

115.00m²

34.78坪/0.7906万円

貸事務所

1974年12月(築51年1ヶ月)

おすすめコメント

広小路通り沿いの好立地!事務所・エステ・学習塾におすすめです。

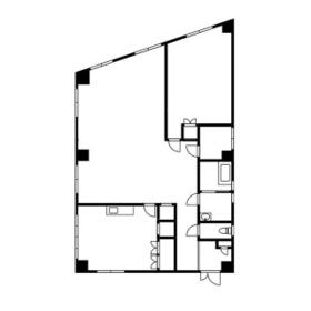
間取図

間取図

外観

外観

<
その他の画像
>
    • お問い合わせ
    交通

    名古屋市東山線 覚王山駅 徒歩1分

    所在地 愛知県名古屋市千種区末盛通1丁目
    物件種目 貸事務所
    賃料 27.5万円 管理費等 5,500円
    敷金 / 保証金 なし / 150万円 礼金 なし
    敷引 坪単価 0.7906万円
    保証金償却 権利金
    造作譲渡 その他一時金 なし
    維持費等 保険等
    使用部分面積 115.00m² 坪数 34.78坪
    築年月 1974年12月(築51年1ヶ月) 階建 / 階 3階建 / 2階
    駐車場 バイク置き場
    駐輪場 土地面積 151.17m²
    接道状況 用途地域
    間取り 建物構造 RC
    アピールポイント 広小路通り沿いで東山線覚王山駅徒歩1分の好立地です!
    事務所・エステ・学習塾におすすめです。
    建物名・部屋番号 川津ビル 002F
    リフォーム履歴
    リノベーション履歴
    特記事項
    備考
    賃貸保証等:加入要(その他 保証金の償却は50%(別途消費税)です。)
    管理形態/管理員の勤務形態:-/-
    エネルギー消費性能
    断熱性能
    目安光熱費
    バス・トイレ
    キッチン
    設備・サービス
    その他
    契約期間 5年 条件等 定期借家定期借家
    引渡可能時期 相談 現況
    仲介手数料 27.5万円    
    更新料 物件番号 1020658577
    情報公開日 2025年12月2日 次回更新予定日 2025年12月16日
    ケータイ用バーコード

    QRコード

    スマートフォンでこの物件を見る
    スマートフォンからもこの物件をご覧になれます。
    ※「-」と表示されている項目については、情報提供会社にご確認ください。

    クイックお問い合わせ

    ここから簡単にお問い合わせをすることができます。
    (SSLでの暗号化での送信を希望されるお客さまは こちら よりお問い合わせください)

    お問い合わせ内容(必須)
    物件のお問い合わせ理由(必須)
    お名前・ご担当者様名(必須) 姓  名 
    メールアドレス(必須)
    ※携帯電話のメールアドレスをご入力される方はこちらをご確認ください
    電話番号(必須)
    - -
    備考欄 希望条件、物件案内希望日、質問などがございましたらご記入ください。
    お問い合わせを行う前に「個人情報の取り扱いについて」を必ずお読みください。
    「個人情報の取り扱いについて」に同意いただいた場合は「上記にご同意の上 確認画面へ進む」のボタンをクリックしてください。

    個人情報の取り扱いについて

    皆さまが送付された個人情報はアットホーム(株)のサーバを経由し、お問い合わせ先の不動産会社にメールまたはFAXにて転送されるためアットホーム(株)にも保管されます。アットホーム(株)で保管された個人情報の取り扱いについては、【こちら】をご覧ください。
    また、本画面でご記入いただいた個人情報は、お問い合わせ先の不動産会社でも保管します。 お問い合わせ先の不動産会社が保管する個人情報の取り扱いについては、不動産会社に直接お問い合わせください。

    情報提供会社

    情報提供会社

    (株)鈴木不動産

    愛知県知事免許(6)第18198号

    交通:
    名古屋市桜通線/高岳駅 徒歩5分
    愛知県名古屋市東区泉2丁目15-20 
    TEL:
    052-931-3000
    FAX:
    052-931-3006
    所属団体:
    (公社)愛知県宅地建物取引業協会会員
    (一社)全国賃貸不動産管理業協会会員
    (公財)日本賃貸住宅管理協会会員
    東海不動産公正取引協議会加盟

    取引態様:代理

    • 会社情報
    • 40000835
    スマートフォンで
    この不動産会社を見る
    QRコード
    • お問い合わせ
    • 提携サイト等より掲載されている物件情報につきましては、不動産会社詳細情報にリンクされていないものがあります。
    • 物件に関するお問合せは、物件詳細ページの「情報提供会社」に表示されている不動産会社へ直接お願いいたします。
    • 間取図は、現況を優先させていただきます。
    • 映像は物件の一部を撮影したものです。物件の契約にあたっての最終判断はご自身の判断に基づいて行ってください。
    • 仲介手数料について仲介手数料

    アットホームは物件情報の適正化に努めております。 内容に誤りがある場合にはこちらへご連絡ください。


    物件画像: