賃貸や不動産はアットホーム-賃貸マンション・賃貸物件・不動産なら アットホーム

東京都中央区銀座8丁目(新橋駅)の貸事務所:物件詳細

  • 物件詳細
  • 情報の見方
  • 印刷用画面
交通
所在地
駅徒歩 賃料
管理費等
敷金/保証金
礼金
使用部分面積
坪数/坪単価
物件種目
築年月

JR山手線/新橋 新着

東京都中央区銀座8丁目

5分

72.6万円

99,000円

なし / 12ヶ月

なし

99.17m²

29.99坪/2.4201万円

貸事務所

1963年6月(築62年11ヶ月)

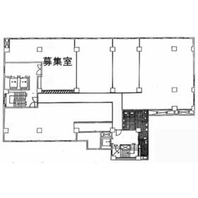
間取図

間取図

その他

その他

その他の画像
  • エントランス
  • エントランス
  • エントランス
  • 共有部分
  • 共有部分
    • お問い合わせ
    交通

    JR山手線 新橋駅 徒歩5分

    その他の交通

    東京メトロ銀座線 銀座駅 徒歩5分

    都営三田線 内幸町駅 徒歩9分

    所在地 東京都中央区銀座8丁目
    物件種目 貸事務所
    賃料 72.6万円 管理費等 99,000円
    敷金 / 保証金 なし / 12ヶ月 礼金 なし
    敷引 坪単価 2.4201万円
    保証金償却 解約時2ヶ月 権利金
    造作譲渡 その他一時金 なし
    維持費等 保険等
    使用部分面積 99.17m² 坪数 29.99坪
    築年月 1963年6月(築62年11ヶ月) 階建 / 階 地上9階地下3階建 / 5階
    駐車場 バイク置き場
    駐輪場 土地面積
    接道状況 用途地域
    間取り 建物構造 SRC
    建物名・部屋番号 中島商事ビル 5階
    リフォーム履歴
    リノベーション履歴
    特記事項 耐震構造(新耐震基準)
    備考
    管理形態/管理員の勤務形態:-/-
    エネルギー消費性能
    断熱性能
    目安光熱費
    バス・トイレ 男女別トイレ、トイレ2ヶ所、トイレ
    キッチン
    設備・サービス 個別空調、エアコン、インターネット対応、光ファイバー
    その他 エレベーター2基以上、エレベーター
    契約期間 8年 条件等 定期借家定期借家
    引渡可能時期 即時 現況
    更新料 物件番号 1013178864
    情報公開日 2025年11月19日 次回更新予定日 2026年4月19日
    ケータイ用バーコード

    QRコード

    スマートフォンでこの物件を見る
    スマートフォンからもこの物件をご覧になれます。
    ※「-」と表示されている項目については、情報提供会社にご確認ください。

    クイックお問い合わせ

    ここから簡単にお問い合わせをすることができます。
    (SSLでの暗号化での送信を希望されるお客さまは こちら よりお問い合わせください)

    お問い合わせ内容(必須)
    物件のお問い合わせ理由(必須)
    お名前・ご担当者様名(必須) 姓  名 
    メールアドレス(必須)
    ※携帯電話のメールアドレスをご入力される方はこちらをご確認ください
    電話番号(必須)
    - -
    備考欄 希望条件、物件案内希望日、質問などがございましたらご記入ください。
    お問い合わせを行う前に「個人情報の取り扱いについて」を必ずお読みください。
    「個人情報の取り扱いについて」に同意いただいた場合は「上記にご同意の上 確認画面へ進む」のボタンをクリックしてください。

    個人情報の取り扱いについて

    皆さまが送付された個人情報はアットホーム(株)のサーバを経由し、お問い合わせ先の不動産会社にメールまたはFAXにて転送されるためアットホーム(株)にも保管されます。アットホーム(株)で保管された個人情報の取り扱いについては、【こちら】をご覧ください。
    また、本画面でご記入いただいた個人情報は、お問い合わせ先の不動産会社でも保管します。 お問い合わせ先の不動産会社が保管する個人情報の取り扱いについては、不動産会社に直接お問い合わせください。

    情報提供会社

    情報提供会社

    スタートライングループ(株) 事業用営業部

    東京都知事免許(6)第76891号

    交通:
    東京メトロ日比谷線/築地駅 徒歩1分
    東京都中央区築地2丁目10-6 Daiwa築地駅前ビル2階
    TEL:
    03-6264-2762
    FAX:
    03-6264-2763
    所属団体:
    (公社)全日本不動産協会会員
    (公社)首都圏不動産公正取引協議会加盟

    取引態様:仲介

    • 会社情報
    • 00272721
    スマートフォンで
    この不動産会社を見る
    QRコード
    • お問い合わせ
    • 提携サイト等より掲載されている物件情報につきましては、不動産会社詳細情報にリンクされていないものがあります。
    • 物件に関するお問合せは、物件詳細ページの「情報提供会社」に表示されている不動産会社へ直接お願いいたします。
    • 間取図は、現況を優先させていただきます。
    • 映像は物件の一部を撮影したものです。物件の契約にあたっての最終判断はご自身の判断に基づいて行ってください。
    • 仲介手数料について仲介手数料

    アットホームは物件情報の適正化に努めております。 内容に誤りがある場合にはこちらへご連絡ください。


    物件画像: