賃貸や不動産はアットホーム-賃貸マンション・賃貸物件・不動産なら アットホーム

東京都渋谷区神宮前5丁目(表参道駅)の貸店舗:物件詳細

  • 物件詳細
  • 情報の見方
  • 印刷用画面
交通
所在地
駅徒歩 賃料
管理費等
敷金/保証金
礼金
使用部分面積
坪数/坪単価
物件種目
築年月

東京メトロ銀座線/表参道 新着

東京都渋谷区神宮前5丁目

7分

88万円

なし / 4ヶ月

1ヶ月

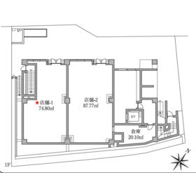
74.80m²

22.62坪/3.8892万円

貸店舗

2025年7月(新築)

間取図

間取図

<
その他の画像
>
    • お問い合わせ
    交通

    東京メトロ銀座線 表参道駅 徒歩7分

    その他の交通

    JR山手線 渋谷駅 徒歩9分

    東京メトロ千代田線 明治神宮前駅 徒歩9分

    所在地 東京都渋谷区神宮前5丁目
    物件種目 貸店舗
    賃料 88万円 管理費等
    敷金 / 保証金 なし / 4ヶ月 礼金 1ヶ月
    敷引 坪単価 3.8892万円
    保証金償却 解約時1ヶ月 権利金
    造作譲渡 その他一時金
    維持費等 保険等 要 2年 34,000円 日本共済テナントプラン
    使用部分面積 74.80m² 坪数 22.62坪
    築年月 2025年7月(新築) 階建 / 階 地上5階地下1階建 / 1階
    駐車場 バイク置き場
    駐輪場 土地面積
    接道状況 用途地域
    間取り 建物構造 RC
    建物名・部屋番号 豊匯ビル
    リフォーム履歴
    リノベーション履歴
    特記事項 スケルトン、フリーレント
    備考
    賃貸保証等:加入要(初回賃料総額の100%、以後1年毎に10%)
    管理形態/管理員の勤務形態:-/-
    主要採光面:北西向き
    フリーレント:1ヶ月
    エネルギー消費性能
    断熱性能
    目安光熱費
    バス・トイレ
    キッチン
    設備・サービス 電気容量(電灯)20KVA
    その他
    契約期間 5年 条件等 定期借家定期借家
    引渡可能時期 即時 現況
    更新料 新賃料 1ヶ月 物件番号 6990274228
    情報公開日 2026年4月10日 次回更新予定日 2026年4月24日
    ケータイ用バーコード

    QRコード

    スマートフォンでこの物件を見る
    スマートフォンからもこの物件をご覧になれます。
    ※「-」と表示されている項目については、情報提供会社にご確認ください。

    クイックお問い合わせ

    ここから簡単にお問い合わせをすることができます。
    (SSLでの暗号化での送信を希望されるお客さまは こちら よりお問い合わせください)

    お問い合わせ内容(必須)
    物件のお問い合わせ理由(必須)
    お名前・ご担当者様名(必須) 姓  名 
    メールアドレス(必須)
    ※携帯電話のメールアドレスをご入力される方はこちらをご確認ください
    電話番号(必須)
    - -
    備考欄 希望条件、物件案内希望日、質問などがございましたらご記入ください。
    お問い合わせを行う前に「個人情報の取り扱いについて」を必ずお読みください。
    「個人情報の取り扱いについて」に同意いただいた場合は「上記にご同意の上 確認画面へ進む」のボタンをクリックしてください。

    個人情報の取り扱いについて

    皆さまが送付された個人情報はアットホーム(株)のサーバを経由し、お問い合わせ先の不動産会社にメールまたはFAXにて転送されるためアットホーム(株)にも保管されます。アットホーム(株)で保管された個人情報の取り扱いについては、【こちら】をご覧ください。
    また、本画面でご記入いただいた個人情報は、お問い合わせ先の不動産会社でも保管します。 お問い合わせ先の不動産会社が保管する個人情報の取り扱いについては、不動産会社に直接お問い合わせください。

    情報提供会社

    情報提供会社

    (株)アイ・エステート

    東京都知事免許(5)第84376号

    交通:
    京王線/府中駅 徒歩5分
    東京都府中市府中町2丁目14-2 オプティマルレジデンス1F
    TEL:
    042-352-0300
    FAX:
    042-352-0301
    所属団体:
    (公社)全日本不動産協会会員
    (公財)日本賃貸住宅管理協会会員
    (一社)全国不動産協会会員
    (公社)首都圏不動産公正取引協議会加盟

    取引態様:仲介

    • 会社情報
    • 00013603
    スマートフォンで
    この不動産会社を見る
    QRコード
    • お問い合わせ
    • 提携サイト等より掲載されている物件情報につきましては、不動産会社詳細情報にリンクされていないものがあります。
    • 物件に関するお問合せは、物件詳細ページの「情報提供会社」に表示されている不動産会社へ直接お願いいたします。
    • 間取図は、現況を優先させていただきます。
    • 映像は物件の一部を撮影したものです。物件の契約にあたっての最終判断はご自身の判断に基づいて行ってください。
    • 仲介手数料について仲介手数料

    アットホームは物件情報の適正化に努めております。 内容に誤りがある場合にはこちらへご連絡ください。


    物件画像: