賃貸や不動産はアットホーム-賃貸マンション・賃貸物件・不動産なら アットホーム

千葉県四街道市鹿渡(四街道駅)の貸店舗:物件詳細

  • 物件詳細
  • 情報の見方
  • 印刷用画面
交通
所在地
駅徒歩 賃料
管理費等
敷金/保証金
礼金
使用部分面積
坪数/坪単価
物件種目
築年月

JR総武本線/四街道 新着

千葉県四街道市鹿渡

1分

54.89万円

なし / 8ヶ月

2ヶ月

97.19m²

29.39坪/1.8671万円

貸店舗

1987年11月(築38年6ヶ月)

おすすめコメント

四街道駅徒歩1分!広々ファサードで視認性◎約30坪の居酒屋居抜き物件!

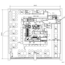
間取図

間取図

その他の画像
    • お問い合わせ
    交通

    JR総武本線 四街道駅 徒歩1分

    所在地 千葉県四街道市鹿渡
    物件種目 貸店舗
    賃料 54.89万円 管理費等
    敷金 / 保証金 なし / 8ヶ月 礼金 2ヶ月
    敷引 坪単価 1.8671万円
    保証金償却 解約時30% 権利金
    造作譲渡 その他一時金
    維持費等 保険等
    使用部分面積 97.19m² 坪数 29.39坪
    築年月 1987年11月(築38年6ヶ月) 階建 / 階 4階建 / 1階
    駐車場 バイク置き場
    駐輪場 土地面積
    接道状況 用途地域
    間取り 建物構造 鉄骨造
    アピールポイント ■■オススメポイント!■■
    ①四街道駅徒歩1分!
    ②広々ファサードで視認性◎
    ③居酒屋居抜き物件
    ④約30坪広々店内
    建物名・部屋番号  
    リフォーム履歴
    リノベーション履歴
    特記事項 居抜き、飲食店可
    備考
    管理形態/管理員の勤務形態:-/-
    ※初回更新日 2029年6月1日
    ※グリストラップ及び排水管洗浄、指定業者有
    ※図面と相違ある場合は現状を優先
    ※当社指定保証会社要加入
    ※指定火災保険加入要
    ※取引形態:貸主
    エネルギー消費性能
    断熱性能
    目安光熱費
    バス・トイレ
    キッチン
    設備・サービス
    その他
    契約期間 3年 条件等
    引渡可能時期 相談 現況 使用中
    更新料 新賃料 1.5ヶ月 物件番号 6990261839
    情報公開日 2026年4月9日 次回更新予定日 2026年4月23日
    ケータイ用バーコード

    QRコード

    スマートフォンでこの物件を見る
    スマートフォンからもこの物件をご覧になれます。
    ※「-」と表示されている項目については、情報提供会社にご確認ください。

    この物件の周辺情報

    周辺施設 イトーヨーカドー四街道店
    距離 497m
    周辺施設 セブンイレブン四街道鹿渡店
    距離 61m
    周辺施設 ファミリーマート四街道駅北口店
    距離 86m
    周辺施設 中華食堂日高屋四街道北口店
    距離 6m
    周辺施設 CoCo壱番屋JR四街道駅北口店
    距離 106m
    周辺施設 キッチンオリジン四街道駅前店
    距離 115m
    周辺施設 マツモトキヨシフォーレ四街道店
    距離 122m
    周辺施設 (有)大和屋書店
    距離 230m

    クイックお問い合わせ

    ここから簡単にお問い合わせをすることができます。
    (SSLでの暗号化での送信を希望されるお客さまは こちら よりお問い合わせください)

    お問い合わせ内容(必須)
    物件のお問い合わせ理由(必須)
    お名前・ご担当者様名(必須) 姓  名 
    メールアドレス(必須)
    ※携帯電話のメールアドレスをご入力される方はこちらをご確認ください
    電話番号(必須)
    - -
    備考欄 希望条件、物件案内希望日、質問などがございましたらご記入ください。
    お問い合わせを行う前に「個人情報の取り扱いについて」を必ずお読みください。
    「個人情報の取り扱いについて」に同意いただいた場合は「上記にご同意の上 確認画面へ進む」のボタンをクリックしてください。

    個人情報の取り扱いについて

    皆さまが送付された個人情報はアットホーム(株)のサーバを経由し、お問い合わせ先の不動産会社にメールまたはFAXにて転送されるためアットホーム(株)にも保管されます。アットホーム(株)で保管された個人情報の取り扱いについては、【こちら】をご覧ください。
    また、本画面でご記入いただいた個人情報は、お問い合わせ先の不動産会社でも保管します。 お問い合わせ先の不動産会社が保管する個人情報の取り扱いについては、不動産会社に直接お問い合わせください。

    情報提供会社

    情報提供会社

    店舗流通ネット(株)

    国土交通大臣免許(3)第8529号

    交通:
    JR山手線/浜松町駅 徒歩2分
    東京都港区海岸1丁目2-3 汐留芝離宮ビルディング20F
    TEL:
    0120-694-280
    FAX:
    03-5777-6585
    所属団体:
    (公社)東京都宅地建物取引業協会会員
    (公社)首都圏不動産公正取引協議会加盟

    取引態様:貸主

    • 会社情報
    • 00109846
    スマートフォンで
    この不動産会社を見る
    QRコード
    • お問い合わせ
    • 提携サイト等より掲載されている物件情報につきましては、不動産会社詳細情報にリンクされていないものがあります。
    • 物件に関するお問合せは、物件詳細ページの「情報提供会社」に表示されている不動産会社へ直接お願いいたします。
    • 間取図は、現況を優先させていただきます。
    • 映像は物件の一部を撮影したものです。物件の契約にあたっての最終判断はご自身の判断に基づいて行ってください。
    • 仲介手数料について仲介手数料

    アットホームは物件情報の適正化に努めております。 内容に誤りがある場合にはこちらへご連絡ください。


    物件画像: