賃貸や不動産はアットホーム-賃貸マンション・賃貸物件・不動産なら アットホーム

大阪府大阪市中央区東心斎橋2丁目(心斎橋駅)の貸店舗:物件詳細

  • 物件詳細
  • 情報の見方
  • 印刷用画面
交通
所在地
駅徒歩 賃料
管理費等
敷金/保証金
礼金
使用部分面積
坪数/坪単価
物件種目
築年月

地下鉄御堂筋線/心斎橋 新着

大阪府大阪市中央区東心斎橋2丁目

6分

22万円

22,000円

なし / 30万円

220万円

30.08m²

9.09坪/2.4179万円

貸店舗

1991年2月(築35年3ヶ月)

おすすめコメント

東心斎橋のど真ん中に位置する、即営業可能なバーの居抜き物件です 。造作譲渡金は無料で、カウンター完備のお洒落な内装が魅力 。心斎橋駅から徒歩7分と好立地で、すぐに理想の店を始めたい方に最適です 。

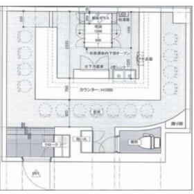
間取図

間取図

外観

外観

その他の画像
  • 室内
  • 周辺環境
  • 周辺環境
  • その他
  • その他
    • お問い合わせ
    交通

    地下鉄御堂筋線 心斎橋駅 徒歩6分

    その他の交通

    地下鉄千日前線 なんば駅 徒歩6分

    地下鉄千日前線 日本橋駅 徒歩7分

    所在地 大阪府大阪市中央区東心斎橋2丁目
    物件種目 貸店舗
    賃料 22万円 管理費等 22,000円
    敷金 / 保証金 なし / 30万円 礼金 220万円
    敷引 坪単価 2.4179万円
    保証金償却 権利金
    造作譲渡 造作譲渡無償 その他一時金 鍵交換代(希望者のみ):33,000円
    維持費等 保険等 要 2年 30,000円 火災および家財
    使用部分面積 30.08m² 坪数 9.09坪
    築年月 1991年2月(築35年3ヶ月) 階建 / 階 7階建 / 4階
    駐車場 バイク置き場
    駐輪場 土地面積
    接道状況 用途地域
    間取り 建物構造 鉄骨造
    アピールポイント 東心斎橋のど真ん中に位置する、即営業可能なバーの居抜き物件です 。造作譲渡金は無料で、カウンター完備のお洒落な内装が魅力 。心斎橋駅から徒歩7分と好立地で、すぐに理想の店を始めたい方に最適です 。
    建物名・部屋番号 日宝 笠屋町ビル 4階3号
    リフォーム履歴
    リノベーション履歴
    特記事項 居抜き、飲食店可
    備考
    賃貸保証等:加入要(貸主指定)
    管理形態/管理員の勤務形態:-/-
    居抜き物件ですぐに営業可能です。

    なんでもご相談ください!
    エネルギー消費性能
    断熱性能
    目安光熱費
    バス・トイレ トイレ
    キッチン オープンキッチン
    設備・サービス 収納スペース、給湯、都市ガス、エアコン、暖房、冷房、火災警報器(報知機)、インターネット対応
    その他
    契約期間 2年 条件等
    引渡可能時期 即時 現況
    更新料 286,000円 物件番号 6990256660
    情報公開日 2026年4月9日 次回更新予定日 2026年4月23日
    ケータイ用バーコード

    QRコード

    スマートフォンでこの物件を見る
    スマートフォンからもこの物件をご覧になれます。
    ※「-」と表示されている項目については、情報提供会社にご確認ください。

    この物件の周辺情報

    周辺施設 岩伸パーキング
    距離 70m
    周辺施設 ぷれじでんと千房南店
    距離 188m
    周辺施設 宗右衛門町Superjpm2
    距離 80m
    周辺施設 リップル八幡筋モータープール
    距離 173m
    周辺施設 ホリデイ・イン大阪難波駐車場
    距離 97m
    周辺施設 ファミリーマート難波玉屋町店
    距離 124m
    周辺施設 ダイソー心斎橋筋2丁目店
    距離 187m
    周辺施設 ツルハドラッグ心斎橋筋2丁目店
    距離 195m

    クイックお問い合わせ

    ここから簡単にお問い合わせをすることができます。
    (SSLでの暗号化での送信を希望されるお客さまは こちら よりお問い合わせください)

    お問い合わせ内容(必須)
    物件のお問い合わせ理由(必須)
    お名前・ご担当者様名(必須) 姓  名 
    メールアドレス(必須)
    ※携帯電話のメールアドレスをご入力される方はこちらをご確認ください
    電話番号(必須)
    - -
    備考欄 希望条件、物件案内希望日、質問などがございましたらご記入ください。
    お問い合わせを行う前に「個人情報の取り扱いについて」を必ずお読みください。
    「個人情報の取り扱いについて」に同意いただいた場合は「上記にご同意の上 確認画面へ進む」のボタンをクリックしてください。

    個人情報の取り扱いについて

    皆さまが送付された個人情報はアットホーム(株)のサーバを経由し、お問い合わせ先の不動産会社にメールまたはFAXにて転送されるためアットホーム(株)にも保管されます。アットホーム(株)で保管された個人情報の取り扱いについては、【こちら】をご覧ください。
    また、本画面でご記入いただいた個人情報は、お問い合わせ先の不動産会社でも保管します。 お問い合わせ先の不動産会社が保管する個人情報の取り扱いについては、不動産会社に直接お問い合わせください。

    情報提供会社

    情報提供会社

    (株)TFC 大阪営業所

    国土交通大臣免許(1)第10868号

    交通:
    地下鉄御堂筋線/本町駅 徒歩3分
    大阪府大阪市中央区久太郎町2丁目5-31 関電不動産船場ビル12階
    TEL:
    06-4256-1755
    FAX:
    06-4256-0761
    所属団体:
    (一社)大阪府宅地建物取引業協会会員
    (公社)近畿地区不動産公正取引協議会加盟

    取引態様:仲介

    • 会社情報
    • 50110973
    スマートフォンで
    この不動産会社を見る
    QRコード
    • お問い合わせ
    • 提携サイト等より掲載されている物件情報につきましては、不動産会社詳細情報にリンクされていないものがあります。
    • 物件に関するお問合せは、物件詳細ページの「情報提供会社」に表示されている不動産会社へ直接お願いいたします。
    • 間取図は、現況を優先させていただきます。
    • 映像は物件の一部を撮影したものです。物件の契約にあたっての最終判断はご自身の判断に基づいて行ってください。
    • 仲介手数料について仲介手数料

    アットホームは物件情報の適正化に努めております。 内容に誤りがある場合にはこちらへご連絡ください。


    物件画像: